5 bedroom detached house for sale
Old Kea, nr Truro

- PROPERTY TYPE
Detached
- BEDROOMS
5
- SIZE
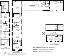
4,798 sq ft
446 sq m
- TENUREDescribes how you own a property. There are different types of tenure - freehold, leasehold, and commonhold.Read more about tenure in our glossary page.
Freehold
Key features
- 4/5 bedrooms
- 4 bathrooms
- 40ft kitchen-dining room
- 4 additional reception rooms
- Detached 1 bedroom cottage
- Private walled gardens
- EPC Trevean D, Little Trevean D
- Council Tax Band Trevean F, Little Trevean B
- Freehold
- Trevean 4138 sqft and Little Trevean 657 sqft
Description
Old Kea is a small hamlet in south Cornwall, set in unspoilt countryside near the city of Truro along the banks of the Truro River - a tributary of the River Fal Estuary.
Steeped in history, it is traditionally believed to be the landing site of Saint Kea, a 5th-century missionary who gave the area its name. Today, Old Kea retains a quiet, rural charm, with a handful of cottages and farmsteads nestled in lush countryside. The remnants of an ancient church still stand, notably the Norman tower, which is preserved alongside a small modern chapel that continues to serve the local community. The area is popular with walkers and those interested in Cornwall's early Christian heritage. A footpath passes by Trevean and leads down to the creek and church.
In this quiet, rural setting it is hard to believe that Truro is so close - with excellent private and state schools and a railway station on the London-Penzance mainline with overnight 'sleeper' service. To the south, the university town and port of Falmouth sits overlooking the entrance to one of the largest natural harbours in the world.
THE TOUR
On approach, the house reveals its vernacular charm, framed by pretty walled gardens. A thatched roof crowns the soft chalky façade, where timber-framed windows with oak lintels punctuate the render, evoking a romantic, rustic French farmhouse character that hints at the spirited interiors within.
Inside, the atmosphere is both immaculate and deeply inviting, with a farmhouse sensibility enhanced by bespoke joinery, soft hues and natural materials. A series of characterful reception rooms flow throughout, each defined by warmth and craftsmanship, with the most spectacular being the voluminous and vaulted kitchen - an open-plan space where full-height glazing stretches across the south-facing wall, flooding the room with light.
Upstairs, the main house offers a spacious principal bedroom with en suite bathroom, along with two further en suite bedrooms. To the south lies an integral one-bedroom annexe with its own walled garden, and beyond this, a charming one-bedroom 'Goldilocks' cottage in the same vernacular style. Together, they provide exceptionally flexible accommodation, with up to five bedrooms in total.
STEP OUTSIDE
Supremely peaceful, the house is exceptionally private, approached via a long, winding driveway that leads to a walled parking area with space for several cars. The property sits prettily within established gardens, where colourful courtyards, a productive vegetable patch, and a magnificent sun-drenched terrace flowing out from the kitchen create a romantic backdrop for entertaining and alfresco dinners.
Wildflower borders look out across neighbouring fields of the Tregothnan Estate, lending a natural, unrestrained beauty, while manicured sections bring vibrant colour. Sweeping lawns are dotted with mature planting, hidden seating areas, and even a flourishing orchard, offering a generous harvest of fruits each year.
AGENTS NOTE
Planning permission has been granted for the addition of a conservatory on Little Trevean. Full details can be found on the Cornwall Council website using reference PA24/08257
SERVICES
Mains electricity, private water via an Aquasource borehole and oil fired central heating. Private drainage with septic tank. FTTP (Fibre To The Premises) broadband.
Please be aware we cannot confirm that all these services comply with current regulations
DISTANCES (all distances approximate)
Truro (main line station) 4 miles, Falmouth 11 miles, Newquay Airport 39 miles
WHAT3WORDS LOCATION
///songbook.gown.runner
EPC
Trevean D, Little Trevean D
COUNCIL TAX BAND
Trevean F, Little Trevean B
Brochures
BrochureOther PropertiesRecent Sales- COUNCIL TAXA payment made to your local authority in order to pay for local services like schools, libraries, and refuse collection. The amount you pay depends on the value of the property.Read more about council Tax in our glossary page.
- Ask agent
- PARKINGDetails of how and where vehicles can be parked, and any associated costs.Read more about parking in our glossary page.
- Yes
- GARDENA property has access to an outdoor space, which could be private or shared.
- Yes
- ACCESSIBILITYHow a property has been adapted to meet the needs of vulnerable or disabled individuals.Read more about accessibility in our glossary page.
- Ask agent
Old Kea, nr Truro
Add an important place to see how long it'd take to get there from our property listings.
__mins driving to your place
Get an instant, personalised result:
- Show sellers you’re serious
- Secure viewings faster with agents
- No impact on your credit score
Your mortgage
Notes
Staying secure when looking for property
Ensure you're up to date with our latest advice on how to avoid fraud or scams when looking for property online.
Visit our security centre to find out moreDisclaimer - Property reference JC25664. The information displayed about this property comprises a property advertisement. Rightmove.co.uk makes no warranty as to the accuracy or completeness of the advertisement or any linked or associated information, and Rightmove has no control over the content. This property advertisement does not constitute property particulars. The information is provided and maintained by Jonathan Cunliffe, Cornwall. Please contact the selling agent or developer directly to obtain any information which may be available under the terms of The Energy Performance of Buildings (Certificates and Inspections) (England and Wales) Regulations 2007 or the Home Report if in relation to a residential property in Scotland.
*This is the average speed from the provider with the fastest broadband package available at this postcode. The average speed displayed is based on the download speeds of at least 50% of customers at peak time (8pm to 10pm). Fibre/cable services at the postcode are subject to availability and may differ between properties within a postcode. Speeds can be affected by a range of technical and environmental factors. The speed at the property may be lower than that listed above. You can check the estimated speed and confirm availability to a property prior to purchasing on the broadband provider's website. Providers may increase charges. The information is provided and maintained by Decision Technologies Limited. **This is indicative only and based on a 2-person household with multiple devices and simultaneous usage. Broadband performance is affected by multiple factors including number of occupants and devices, simultaneous usage, router range etc. For more information speak to your broadband provider.
Map data ©OpenStreetMap contributors.






