
Cinnamon Lane, Cinnamon Brow Fearnhead, Warrington

- PROPERTY TYPE
Semi-Detached
- BEDROOMS
3
- BATHROOMS
2
- SIZE
Ask agent
Key features
- Period Semi Detached
- Two Reception Rooms
- Breakfast Kitchen
- Utility Room
- Cellar
- Conservatory
- Three Double Bedrooms
- Large Rear Garden
- Viewing Recommended
Description
Upon entering, you are greeted by two inviting reception rooms, providing ample space for relaxation and entertaining. These versatile areas can be tailored to suit your lifestyle, whether you envision a cosy sitting room or a vibrant dining space. The natural light that floods through the windows enhances the warm and welcoming atmosphere throughout the property.
The house boasts two bathrooms, ensuring that morning routines run smoothly for all occupants. This feature is particularly advantageous for families or guests, providing convenience and privacy.
Outside, the property offers parking for two vehicles, a valuable asset in this desirable location. The surrounding area is known for its community spirit and accessibility, making it an excellent choice for those looking to settle in a friendly neighbourhood.
This period home combines traditional charm with practical living, making it a wonderful opportunity for anyone looking to establish roots in Warrington. With its spacious layout and convenient amenities, this property is sure to attract interest. Do not miss the chance to make this lovely house your new home.
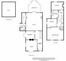
Entrance Porch - Partially glazed entrance door, Tiled floor with inset footwell. Coved and textured ceiling with central light point. Door leading to:
Entrance Hall - Open plan spindle and balustrade staircase with built under storage cupboard. Coved & textured ceiling with decorative corbels and light point. Wall light point and panel radiator. Built in cupboard housing the electric meter. Doors leading to all ground floor accommodation.
Lounge - 13'3 x 14'7 - Spacious lounge, with a large upvc bay window to the front elevation and a upvc window to the side providing maximum natural light. Coved and textured ceiling with central light point. Panel central heating radiator and picture rail. Three wall light points and tv aerial connection. Feature log burning fire installed in the open chimney breast.
Dining Room - 12'1 x 21'9 - UPVC double glazed bay window to the side elevation. Feature fire surround, built in storage and display cabinet. picture rail and panel radiator. Coved ceiling with central light point.
Breakfast Kitchen - 21'9 x 10'2 - Large breakfast kitchen, fitted with a range of matching base and wall units finished in medium oak. 1 ½ bowl sink with chrome finish mixer taps, set into heat resistant work surfaces with tiled splash backs. Stainless steel 6 ring gas hob and double electric oven range cooker, with a stainless steel, chimney style extractor fan and splash back above. Ceramic tiled floor and a textured ceiling with light points. French Doors leading to:
Conservatory - 9'7 x 11'0 - Hexagon shape full UPVC conservatory with leaded pattern glass, overlooking the rear garden. Tiled floor and wall lights. Opening lights and french doors opening out onto the garden.
Utility Room - Ceramic tiled floor, Hardwood Door and UPVC double glazed window to the side elevation. Sliding door leading to downstairs cloakroom and door leading to:
Cellar - 21'8 x 9'8 - The cellar area has been tanked to create a fully usable and functional room. Wall lights. Built in cupboard housing gas meter.
Downstairs Wc - Fitted with a two piece white suite comprising of wash hand basin and low level wc. Fully tiled glass shower enclosure and electric shower. Ceramic tiled floor and splash back. Panel radiator and central light point.
Landing - Split level landing with a spindle balustrade. Large built in storage cupboard and walk in wardrobe with shelving, hanging rail and light. Coved ceiling with light point, smoke alarm and loft access. Doors leading to all first floor accommodation.
Bedroom 1 - 17'7 x 14'9 - Large double bedroom with two Upvc double glazed windows to the front elevation. Coved ceiling with central light point. Panel radiator and wall light.
Bedroom 2 - 12'1 x 11'4 - Double Bedroom with Upvc double glazed window to the side elevation. Coved ceiling with central light point and panel radiator.
Bedroom 3 - 10'4 x 10'3 - Double bedroom with Upvc double glazed window to the rear elevation. Coved ceiling with central light point and panel radiator.
Bathroom - 10'7 x 7'11 - Fully fitted with a matching white three piece suite, with chrome finish fittings, comprising of panel enclosed bath with mixer shower taps and a triton electric shower above. Vanity wash hand basin and low level wc. Glass shower screen, chrome heated towel rail, panel clad ceiling with sunken halogen spot lights and fully tiled walls. Built in shelving and storage unit housing a Worcester central heating boiler. Upvc double glazed window to the side elevation and laminated flooring.
Externally - The property is approached by a paved pathway leading to the front door and a small garden area laid principally to lawn with mature shrubs, enclosed by a brick built wall with wrought iron railings and gates.
To the side is a block paved driveway providing off road parking for two cars and leading to the rear garden.
To the rear is a large garden laid principally to lawn with well stocked borders, crazy paved pathways, a patio area and a pond, all enclosed by a timber panel fence.
Information - Conservation Area
No
Flood Risk
Very low
Floor Area
1,528 ft 2 / 142 m 2
Plot size
0.08 acres
Broadband
Basic
18 Mbps
Superfast
95 Mbps
Ultrafast
1800 Mbps
Satellite / Fibre TV Availability
BT
Sky
Virgin
Disclaimer - THESE PARTICULARS ARE ISSUED IN GOOD FAITH BUT THEY ARE NOT GUARANTEED AND DO NOT FORM ANY PART OF A CONTRACT. NEITHER RIDGEWAY RESIDENTIAL, NOR THE VENDOR OR LESSOR ACCEPT ANY RESPONSIBILITY IN RESPECT OF THESE PARTICULARS, WHICH ARE NOT INTENDED TO BE STATEMENTS OR REPRESENTATION OF FACT AND ANY INTENDING PURCHASER OR LESSOR MUST SATISFY HIMSELF OR OTHERWISE AS TO THE CORRECTNESS OF EACH OF THE STATEMENTS CONTAINED IN THESE PARTICULARS
Council Tax - Band E Payable to Warrington Borough Council
Viewings - Viewings strictly via the selling agents Ridgeway Residential
Tenure - Leasehold - Lease Start Date
12 Oct 1896
Lease End Date
01 Sep 2895
Lease Term
999 years from 1 September 1896
Lease Term Remaining
870 years
Brochures
Cinnamon Lane, Cinnamon Brow Fearnhead, WarringtonBrochure- COUNCIL TAXA payment made to your local authority in order to pay for local services like schools, libraries, and refuse collection. The amount you pay depends on the value of the property.Read more about council Tax in our glossary page.
- Band: E
- PARKINGDetails of how and where vehicles can be parked, and any associated costs.Read more about parking in our glossary page.
- Yes
- GARDENA property has access to an outdoor space, which could be private or shared.
- Yes
- ACCESSIBILITYHow a property has been adapted to meet the needs of vulnerable or disabled individuals.Read more about accessibility in our glossary page.
- Ask agent
Cinnamon Lane, Cinnamon Brow Fearnhead, Warrington
Add an important place to see how long it'd take to get there from our property listings.
__mins driving to your place
Get an instant, personalised result:
- Show sellers you’re serious
- Secure viewings faster with agents
- No impact on your credit score



Your mortgage
Notes
Staying secure when looking for property
Ensure you're up to date with our latest advice on how to avoid fraud or scams when looking for property online.
Visit our security centre to find out moreDisclaimer - Property reference 34030477. The information displayed about this property comprises a property advertisement. Rightmove.co.uk makes no warranty as to the accuracy or completeness of the advertisement or any linked or associated information, and Rightmove has no control over the content. This property advertisement does not constitute property particulars. The information is provided and maintained by Ridgeway Residential Estate Agent, Lymm. Please contact the selling agent or developer directly to obtain any information which may be available under the terms of The Energy Performance of Buildings (Certificates and Inspections) (England and Wales) Regulations 2007 or the Home Report if in relation to a residential property in Scotland.
*This is the average speed from the provider with the fastest broadband package available at this postcode. The average speed displayed is based on the download speeds of at least 50% of customers at peak time (8pm to 10pm). Fibre/cable services at the postcode are subject to availability and may differ between properties within a postcode. Speeds can be affected by a range of technical and environmental factors. The speed at the property may be lower than that listed above. You can check the estimated speed and confirm availability to a property prior to purchasing on the broadband provider's website. Providers may increase charges. The information is provided and maintained by Decision Technologies Limited. **This is indicative only and based on a 2-person household with multiple devices and simultaneous usage. Broadband performance is affected by multiple factors including number of occupants and devices, simultaneous usage, router range etc. For more information speak to your broadband provider.
Map data ©OpenStreetMap contributors.





