St. Clare Street, Penzance

- PROPERTY TYPE
Terraced
- BEDROOMS
3
- BATHROOMS
1
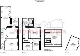
- SIZE
1,054 sq ft
98 sq m
- TENUREDescribes how you own a property. There are different types of tenure - freehold, leasehold, and commonhold.Read more about tenure in our glossary page.
Freehold
Key features
- Characterful family home
- Fully renovated
- Modern kitchen and bathroom
- Light and airy
- Tranquil outside space
- EPC B
- Garage
- Central location
Description
The ground floor features a hallway leading to two reception rooms. These rooms are filled with natural light, providing a great space for living and dining. The dining room leads to a useful utility room which in turn leads to the outside space. The modern kitchen has integrated appliances and ample space for a dining table. with dual aspect windows, this also boasts great natural light.
Upstairs, you'll find two double bedrooms and one single, and a stylish family bathroom. There are also stairs to the attic space, which offers extra storage and is currently used as an additional bedroom.
The private patio garden is a great spot to relax and enjoy the sun. The property also includes a detached garage, which is a significant bonus in this area.
Located close to Penzance town centre, this home is ideal for anyone looking for a convenient and vibrant lifestyle. It's a great opportunity, and early viewings are highly recommended.
This is a freehold property and all mains services are connected. It is heated with Gas Central Heating. The Council Tax is a Band B. The EPC D (60 84). Ofcom suggest ultrafast Broadband is available. There is Fibre to the property. Ofcom also suggests mobile coverage is good on most networks.
Front Elevation -
Kitchen -
Bathroom -
Kitchen/Diner -
Main Bedroom -
2nd Bedroom -
Bedroom Or Office -
Garage -
Courtyard -
Utility Room -
Entrance Hall -
Landing And Stairs -
Rear Entrance -
Lounge -
Dining Room -
View From Rear Bedroom -
Attic Room -
View From Attic -
Brochures
St. Clare Street, PenzanceBrochure- COUNCIL TAXA payment made to your local authority in order to pay for local services like schools, libraries, and refuse collection. The amount you pay depends on the value of the property.Read more about council Tax in our glossary page.
- Band: B
- PARKINGDetails of how and where vehicles can be parked, and any associated costs.Read more about parking in our glossary page.
- Garage
- GARDENA property has access to an outdoor space, which could be private or shared.
- Yes
- ACCESSIBILITYHow a property has been adapted to meet the needs of vulnerable or disabled individuals.Read more about accessibility in our glossary page.
- Ask agent
St. Clare Street, Penzance
Add an important place to see how long it'd take to get there from our property listings.
__mins driving to your place
Get an instant, personalised result:
- Show sellers you’re serious
- Secure viewings faster with agents
- No impact on your credit score
Your mortgage
Notes
Staying secure when looking for property
Ensure you're up to date with our latest advice on how to avoid fraud or scams when looking for property online.
Visit our security centre to find out moreDisclaimer - Property reference 34126363. The information displayed about this property comprises a property advertisement. Rightmove.co.uk makes no warranty as to the accuracy or completeness of the advertisement or any linked or associated information, and Rightmove has no control over the content. This property advertisement does not constitute property particulars. The information is provided and maintained by PRH Estate & Letting Agents, Penzance. Please contact the selling agent or developer directly to obtain any information which may be available under the terms of The Energy Performance of Buildings (Certificates and Inspections) (England and Wales) Regulations 2007 or the Home Report if in relation to a residential property in Scotland.
*This is the average speed from the provider with the fastest broadband package available at this postcode. The average speed displayed is based on the download speeds of at least 50% of customers at peak time (8pm to 10pm). Fibre/cable services at the postcode are subject to availability and may differ between properties within a postcode. Speeds can be affected by a range of technical and environmental factors. The speed at the property may be lower than that listed above. You can check the estimated speed and confirm availability to a property prior to purchasing on the broadband provider's website. Providers may increase charges. The information is provided and maintained by Decision Technologies Limited. **This is indicative only and based on a 2-person household with multiple devices and simultaneous usage. Broadband performance is affected by multiple factors including number of occupants and devices, simultaneous usage, router range etc. For more information speak to your broadband provider.
Map data ©OpenStreetMap contributors.






