High street retail property to lease
97 High Street, Orpington, Kent, BR6
- SIZE AVAILABLE
1,638 sq ft
152 sq m
- SECTOR
High street retail property to lease
- USE CLASSUse class orders: Class E
E
Lease details
- Lease available date:
- Ask agent
- Lease type:
- Long term
- Furnish type:
- Unfurnished
Key features
- Comprises prominent corner retail premises
- Suitable for variety of uses (Class E)
- Available on a new lease with flexible terms
- VAT is applicable to this property
Description
Comprises prominent corner retail premises
Suitable for variety of uses (Class E)
VAT is applicable to this property
Available on a new lease with flexible terms
Prominent corner position at the junction between High Street and Church Hill, with occupiers nearby include Barber`s, Takeaway, Pub, Hair Salon, Pharmacy and more.
Property Description:
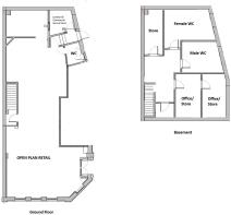
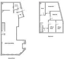
Comprises double fronted retail premises arranged at ground floor and basement. The property has been newly refurbished and provides the following accommodation and dimensions:
Ground Floor: 102 sq m (1,100 sq ft)
Open plan retail, kitchen, wc
Basement: 50 sq m (538 sq ft)
2 rooms, customer wc`s, store
Total GIA: 152 sq m (1,638 sq ft)
Terms:
Available on a new lease with terms to be agreed by negotiation
Rent: £673.08 + VAT per week (PCM: £2,916.66 + VAT)
Deposit: £8,750 (3 Months)
Rateable Value:
Rateable Value - £13,250 p.a.
Rates Payable - £2,800* p.a.
*Note - Small business rates relief available (subject to terms)
EPC:
Certificate and further details available on request.
Location:
Orpington is a prosperous town located some 16 miles to the south of central London and 5 miles from Bromley. The town is adjacent to the A224 and Junctions 3 and 4 of the M25 Motorway and benefits from regular rail services to various London mainline stations. Communications with central London are excellent, with Charing Cross and Cannon Street within 30 minutes' train travel. The property occupies a prominent corner position at the junction between High Street and Church Hill, with occupiers nearby include Barber`s, Takeaway, Pub, Hair Salon, Pharmacy and many more.
Brochures
97 High Street, Orpington, Kent, BR6
NEAREST STATIONS
Distances are straight line measurements from the centre of the postcode- Orpington Station0.7 miles
- St. Mary Cray Station1.1 miles
- Petts Wood Station1.4 miles
Notes
Disclaimer - Property reference 97orpington. The information displayed about this property comprises a property advertisement. Rightmove.co.uk makes no warranty as to the accuracy or completeness of the advertisement or any linked or associated information, and Rightmove has no control over the content. This property advertisement does not constitute property particulars. The information is provided and maintained by Blue Alpine, London. Please contact the selling agent or developer directly to obtain any information which may be available under the terms of The Energy Performance of Buildings (Certificates and Inspections) (England and Wales) Regulations 2007 or the Home Report if in relation to a residential property in Scotland.
Map data ©OpenStreetMap contributors.





