
3 bedroom detached house for sale
Highfield Road, Impington

- PROPERTY TYPE
Detached
- BEDROOMS
3
- BATHROOMS
1
- SIZE
Ask agent
- TENUREDescribes how you own a property. There are different types of tenure - freehold, leasehold, and commonhold.Read more about tenure in our glossary page.
Freehold
Key features
- Extended Victorian detached house
- Stunning established rear garden
- Three double bedrooms
- Garage and garden studio
- Gas central heating
- Sought after location
- Period features
- 4 Miles from central Cambridge (market square)
Description
Impington is a well regarded village conveniently located about 4 miles from the centre of Cambridge and providing secondary education at Impington Village College. The village is very well placed for access to major routes including the A14, A428 and the M11 motorway. The adjoining village of Histon benefits from a wide variety of amenities including a range of local shopping, banks, library, butcher, bakery, public houses, restaurants and a primary school. The guided bus provides easy access to Cambridge, St Ives and the Cambridge North railway station.
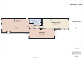
Living Room
7.42 m x 3.84 m (24'4" x 12'7")
An impressive 24ft double length room featuring a period cast iron fireplace with decorative tiled slips and hearth, exposed floorboards, sash window to the front, partly glazed door to the front, door to stairwell, multi paned sash window to the rear and door to inner hall
Inner Hall
Stripped and painted floorboards, radiator, door and window to side
Utility/cloakroom
3.33 m x 1.73 m (10'11" x 5'8")
Stripped and painted floorboards, Belfast sink with cupboard under, and tiled splashback, Wc, plumbing for washing machine, wall mounted Weissman boiler
Kitchen/Dining room
7.26 m x 2.64 m (23'10" x 8'8")
Stunning room with wonderful views of the garden comprising a range of base units, extensive working surfaces, inset Belfast sink with mixer tap, plumbing for the dishwasher, space for a range style cooker, space for a fridge freezer, Travertine tiled flooring, double glazed sliding doors to the family room, range of double glazed doors giving access to the garden, radiator
Family Room
6.83 m x 2.44 m (22'5" x 8'0")
Striped and painted floorboards, double glazed French doors to the rear, part glazed vaulted ceiling, range of inset Velux roof windows, radiator, door to the garage
First Floor Landing
Sash window to the side, panelled wall, access to the loft
Bedroom One
5.28 m x 2.67 m (17'4" x 8'9")
Full width range of windows with views to the rear garden, eaves storage, radiator
Bedroom Two
3.76 m x 3.48 m (12'4" x 11'5")
Sash window to the front, period cast iron fireplace, radiator
Bedroom Three
3.78 m x 2.18 m (12'5" x 7'2")
Stripped and painted floorboards, sash window to the rear, radiator
Bathroom
Three piece bathroom with a Wc, wash basin, bath with tiled surround, shower screen and wall mounted shower, sash window to the side radiator
Outside
The stunning rear garden extends to approximately 96ft and comprised a large paved patio/BBQ area with a gated side access and tap. This leads to well tended lawns and flanked by well stocked flower and shrub boarders and featuring an array of established trees including eucalyptus and yucca. There is a curved brick pathway leading to a second paved seating area and the detached timber STUDIO (15'2 x 11'3) which benefits from power and light.
Garage
7.06 m x 3.35 m (23'2" x 11'0")
Good sized single garage with double timber doors and power laid on
Brochures
Brochure of 16 Highfield RoadKFB- COUNCIL TAXA payment made to your local authority in order to pay for local services like schools, libraries, and refuse collection. The amount you pay depends on the value of the property.Read more about council Tax in our glossary page.
- Band: E
- PARKINGDetails of how and where vehicles can be parked, and any associated costs.Read more about parking in our glossary page.
- Yes
- GARDENA property has access to an outdoor space, which could be private or shared.
- Yes
- ACCESSIBILITYHow a property has been adapted to meet the needs of vulnerable or disabled individuals.Read more about accessibility in our glossary page.
- Ask agent
Highfield Road, Impington
Add an important place to see how long it'd take to get there from our property listings.
__mins driving to your place
Get an instant, personalised result:
- Show sellers you’re serious
- Secure viewings faster with agents
- No impact on your credit score
Your mortgage
Notes
Staying secure when looking for property
Ensure you're up to date with our latest advice on how to avoid fraud or scams when looking for property online.
Visit our security centre to find out moreDisclaimer - Property reference PCZ-34513695. The information displayed about this property comprises a property advertisement. Rightmove.co.uk makes no warranty as to the accuracy or completeness of the advertisement or any linked or associated information, and Rightmove has no control over the content. This property advertisement does not constitute property particulars. The information is provided and maintained by Pocock & Shaw, Cambridge. Please contact the selling agent or developer directly to obtain any information which may be available under the terms of The Energy Performance of Buildings (Certificates and Inspections) (England and Wales) Regulations 2007 or the Home Report if in relation to a residential property in Scotland.
*This is the average speed from the provider with the fastest broadband package available at this postcode. The average speed displayed is based on the download speeds of at least 50% of customers at peak time (8pm to 10pm). Fibre/cable services at the postcode are subject to availability and may differ between properties within a postcode. Speeds can be affected by a range of technical and environmental factors. The speed at the property may be lower than that listed above. You can check the estimated speed and confirm availability to a property prior to purchasing on the broadband provider's website. Providers may increase charges. The information is provided and maintained by Decision Technologies Limited. **This is indicative only and based on a 2-person household with multiple devices and simultaneous usage. Broadband performance is affected by multiple factors including number of occupants and devices, simultaneous usage, router range etc. For more information speak to your broadband provider.
Map data ©OpenStreetMap contributors.









