Skip to content

Lisbon, Cascais, Portugal

£536,403
€615,000
Portugal Sotheby's International Realty, Cascais
PROPERTY TYPE

Plot

SIZE

Ask agent

Description

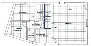
Located in the parish of Cascais, this plot in Cobre offers a solid opportunity for those looking to build a house from the ground up in one of the most sought-after residential areas of the municipality. Ideal for a family seeking a peaceful and well-connected lifestyle, this plot comes with an approved architectural project and a construction permit already issued, allowing immediate start of the works.

With a total area of 381?sqm, the project foresees a detached house with a gross construction area of 384sqm, 162sqm of usable space, and a footprint of 110sqm. The proposal offers a functional layout suited to modern living, with well-defined social and private areas, plus outdoor space for a garden or leisure.

The neighbourhood is exclusively residential, ensuring a calm and secure environment. Its proximity to the A16 (Sintra connection) and A5 (Lisbon access) ensures excellent mobility. The area is also well served by public transport, with nearby train stations and bus stops.

Just a short distance away, you’ll find schools, supermarkets, healthcare services, restaurants, and other essential facilities. The location also allows quick access to the beaches of the Cascais coastline and the historic town centre, making this plot the perfect foundation for a family lifestyle project in one of the region’s most desirable areas.

Lisbon, Cascais, Portugal

Approximate location

NEAREST AIRPORTS

Distances are straight line measurements
  • Lisbon(International)
    16.0 miles

Advice on buying Portuguese property

Learn everything you need to know to successfully find and buy a property in Portugal.

About Portugal Sotheby's International Realty, Cascais

Edifício Baía Center, Passeio de Dom Luís I 16 17, 2750-474 Cascais, Portugal

Artfully uniting extraordinary homes with extraordinary lives

Notes

These notes are private, only you can see them.

This is a property advertisement provided and maintained by Portugal Sotheby's International Realty, Cascais (reference 113250105) and does not constitute property particulars. Whilst we require advertisers to act with best practice and provide accurate information, we can only publish advertisements in good faith and have not verified any claims or statements or inspected any of the properties, locations or opportunities promoted. Rightmove does not own or control and is not responsible for the properties, opportunities, website content, products or services provided or promoted by third parties and makes no warranties or representations as to the accuracy, completeness, legality, performance or suitability of any of the foregoing. We therefore accept no liability arising from any reliance made by any reader or person to whom this information is made available to. You must perform your own research and seek independent professional advice before making any decision to purchase or invest in overseas property.

Email agent

Email agent