2 bedroom bungalow for sale
Seathorpe Avenue, Minster on Sea, Sheerness, Kent, ME12

- PROPERTY TYPE
Bungalow
- BEDROOMS
2
- BATHROOMS
1
- SIZE
Ask agent
- TENUREDescribes how you own a property. There are different types of tenure - freehold, leasehold, and commonhold.Read more about tenure in our glossary page.
Freehold
Key features
- Guide Price £290,000 - £310,000
- Detached bungalow in prime location
- Two spacious reception rooms
- Large windows with natural light
- Cosy fireplaces
- Direct garden access
- Expansive private garden
- Single garage and off-street parking
- Walking distance to beach
- Close to parks and green spaces
Description
Guide price £290,000 - £310,000
Welcome to this charming detached bungalow, available for sale in a highly sought-after location. Perfectly suited for families and retirees alike, this property offers a wonderful opportunity to create your dream home with a touch of modernisation.
Step into two inviting reception rooms, both boasting large windows that bathe the spaces in natural light. Picture relaxing by the cosy fireplaces or enjoying peaceful garden views, with direct access to the lovely garden for seamless indoor-outdoor living.
The well-proportioned kitchen is enriched by natural light and features handy built-in pantries, offering plenty of storage for all your culinary essentials. With two comfortable double bedrooms—including a spacious master—there’s ample room for relaxation and a great night’s sleep. The family bathroom includes a heated towel rail, adding a touch of comfort to your daily routine.
Outside, the expansive garden provides a blank canvas to create your perfect outdoor retreat, while a single garage and off-street parking make coming and going easy. You’ll love being within walking distance of the beach, as well as having access to nearby parks, green spaces, and scenic walking and cycling routes for those who enjoy the outdoors.
This bungalow enjoys convenient public transport links and is close to local amenities and well-regarded schools, making it an ideal setting for all lifestyles. With so much potential to personalise, this is a rare find in an exceptional location—don’t miss your chance to view!
IMPORTANT NOTE TO POTENTIAL PURCHASERS & TENANTS:
We endeavour to make our particulars accurate and reliable, however, they do not constitute or form part of an offer or any contract and none is to be relied upon as statements of representation or fact. The services, systems and appliances listed in this specification have not been tested by us and no guarantee as to their operating ability or efficiency is given. All photographs and measurements have been taken as a guide only and are not precise. Floor plans where included are not to scale and accuracy is not guaranteed. If you require clarification or further information on any points, please contact us, especially if you are traveling some distance to view. POTENTIAL PURCHASERS: Fixtures and fittings other than those mentioned are to be agreed with the seller. POTENTIAL TENANTS: All properties are available for a minimum length of time, with the exception of short term accommodation. Please contact the branch for details. A security deposit of at least one month’s rent is required. Rent is to be paid one month in advance. It is the tenant’s responsibility to insure any personal possessions. Payment of all utilities including water rates or metered supply and Council Tax is the responsibility of the tenant in most cases.
QSH250274/2
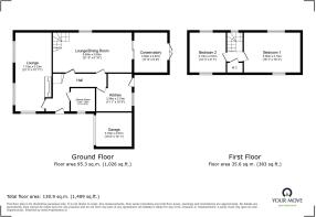
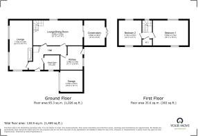
Lounge
7.15m x 3.33m
Lounge/Diner
6.64m x 3m
Kitchen
3.39m x 3.19m
Shower Room
2.18m x 1.68m
Conservatory
3.59m x 2.97m
Bedroom 1
5.05m x 3.13m
Bedroom 2
3.13m x 2.91m
Brochures
Web Details- COUNCIL TAXA payment made to your local authority in order to pay for local services like schools, libraries, and refuse collection. The amount you pay depends on the value of the property.Read more about council Tax in our glossary page.
- Band: D
- PARKINGDetails of how and where vehicles can be parked, and any associated costs.Read more about parking in our glossary page.
- Yes
- GARDENA property has access to an outdoor space, which could be private or shared.
- Yes
- ACCESSIBILITYHow a property has been adapted to meet the needs of vulnerable or disabled individuals.Read more about accessibility in our glossary page.
- Ask agent
Seathorpe Avenue, Minster on Sea, Sheerness, Kent, ME12
Add an important place to see how long it'd take to get there from our property listings.
__mins driving to your place
Get an instant, personalised result:
- Show sellers you’re serious
- Secure viewings faster with agents
- No impact on your credit score
Your mortgage
Notes
Staying secure when looking for property
Ensure you're up to date with our latest advice on how to avoid fraud or scams when looking for property online.
Visit our security centre to find out moreDisclaimer - Property reference QSH250274. The information displayed about this property comprises a property advertisement. Rightmove.co.uk makes no warranty as to the accuracy or completeness of the advertisement or any linked or associated information, and Rightmove has no control over the content. This property advertisement does not constitute property particulars. The information is provided and maintained by Your Move, Sheerness. Please contact the selling agent or developer directly to obtain any information which may be available under the terms of The Energy Performance of Buildings (Certificates and Inspections) (England and Wales) Regulations 2007 or the Home Report if in relation to a residential property in Scotland.
*This is the average speed from the provider with the fastest broadband package available at this postcode. The average speed displayed is based on the download speeds of at least 50% of customers at peak time (8pm to 10pm). Fibre/cable services at the postcode are subject to availability and may differ between properties within a postcode. Speeds can be affected by a range of technical and environmental factors. The speed at the property may be lower than that listed above. You can check the estimated speed and confirm availability to a property prior to purchasing on the broadband provider's website. Providers may increase charges. The information is provided and maintained by Decision Technologies Limited. **This is indicative only and based on a 2-person household with multiple devices and simultaneous usage. Broadband performance is affected by multiple factors including number of occupants and devices, simultaneous usage, router range etc. For more information speak to your broadband provider.
Map data ©OpenStreetMap contributors.







