
Building plot with full planning permission, for a 4 bedroom home
- PROPERTY TYPE
Land
- BEDROOMS
4
- SIZE
7,319 sq ft
680 sq m
Key features
- Kings Lynn & West Norfolk – Planning Reference 25/00147/F
- Full Planning Permission Granted For a Detached Four-Bedroom Self/Custom-Build Home
- Shovel-Ready Site Following Demolition of Existing Workshop
- Contemporary Layout Including Open-Plan Living, Study, and En-Suite Principal Bedroom
- Private Parking and Garden Space Included in Approved Plans
- Self-Build Exemption From Biodiversity Net Gain Requirements
- All key Reports in Place, Including Flood Risk, Ecology, and Noise Assessments
- Existing Workshop Offering Potential Temporary Storage on Site
Description
This is a Prime Self-Build Plot with Full Planning in Terrington St Clement; Ideal for builders or developers seeking a ready-to-go project in West Norfolk
An excellent opportunity to acquire a fully consented building plot in the sought-after village of Terrington St Clement.
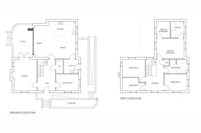
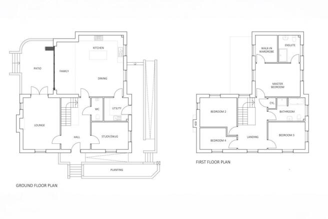
With planning permission granted for a stylish four-bedroom detached home, the plot benefits from a generous layout, private garden space, and parking.
The design allows for flexible modern living with open-plan ground floor accommodation and en-suite master bedroom.
Ideal for a self-builder or developer looking for a shovel-ready site, the project falls under self/custom build exemptions.
Located within easy reach of King’s Lynn and local amenities, this is a rare chance to deliver a bespoke home in a popular well-connected setting.
THE AREA
Claimed to be the largest village in the county, Terrington St. Clement backs onto the marshland of West Norfolk, where King John’s crown jewels were said to have been lost back in 1216.
Boasting various shops, two doctors’ surgeries, two pubs, and two excellent schools—one primary and one secondary. The Church of St Clement, known as the Cathedral of the Fens, stands prominently.
There is a half-hourly bus service to the historic market town of King’s Lynn, approximately five miles away, offering a good range of shops and superstores. For keen golfers, courses are available at King’s Lynn, Middleton Tydd St Giles, and slightly further afield are the challenging links courses of Hunstanton and the Royal West Norfolk at Brancaster.
With Cambridge, Peterborough, and Norwich all within an hour’s drive, and a direct rail line to London King’s Cross taking just 1 hour and 40 minutes, King’s Lynn continues to attract a growing number of professionals seeking an easy commuter route. The central location appeals with a selection of high street retailers and independent restaurants in the town’s Vancouver Centre. The Majestic Cinema and King’s Lynn Alive Corn Exchange are popular spots for catching a film or show, while St George’s Guildhall, the UK’s largest surviving medieval guildhall, is now a vibrant arts centre.
LOCATION
What3words:/// cyclones.payback.senses
AGENTS NOTE
Planning permission has been granted for a detached home.
Planning Reference - Planning Reference 25/00147/F (Kings Lynn & West Norfolk)
Three-phase electricity to site
WEBSITE TAGS
land-for-sale
Disclaimer
These particulars are provided as a guide only and do not form part of any offer or contract. Sowerbys and its representatives have no authority to make or give representations or warranties. All descriptions, measurements, photographs and plans are for guidance only and should not be relied upon as statements of fact. Buyers should satisfy themselves as to the accuracy of the information through inspection or professional advice. Services, appliances and equipment have not been tested and no warranty can be given as to their condition. Planning permissions, building regulations and other consents should be verified by the buyer’s legal adviser. In accordance with Anti-Money Laundering regulations, proceeding buyers must complete a digital ID check through our compliance partner. A charge of £48 including VAT per sale or purchase applies. Leasehold buyers should confirm ground rent, service charges and lease details with their legal adviser.
Building plot with full planning permission, for a 4 bedroom home
NEAREST STATIONS
Distances are straight line measurements from the centre of the postcode- Kings Lynn Station4.6 miles



Notes
Disclaimer - Property reference bd9de6ff-85cb-4708-a769-20995d701c23. The information displayed about this property comprises a property advertisement. Rightmove.co.uk makes no warranty as to the accuracy or completeness of the advertisement or any linked or associated information, and Rightmove has no control over the content. This property advertisement does not constitute property particulars. The information is provided and maintained by Sowerbys, King's Lynn. Please contact the selling agent or developer directly to obtain any information which may be available under the terms of The Energy Performance of Buildings (Certificates and Inspections) (England and Wales) Regulations 2007 or the Home Report if in relation to a residential property in Scotland.
Map data ©OpenStreetMap contributors.







