Office to lease
St Georges House, St Georges Road, Bolton, BL1 2DD
- SIZE AVAILABLE
494-1,805 sq ft
46-168 sq m
- SECTOR
Office to lease
Lease details
- Lease available date:
- Ask agent
Key features
- Attractive five storey period property Accommodation ranging from 205 to 1,805 sq ft
- Sympathetically restored and refurbished offices
- Located within Bolton Town Centre
- Situated within easy access to A666 St Peters Way and the National Motorway Network
- On-site café/coffee shop
- Manned reception facilities Building is directly owned and managed by the Landlords
- Business centre on third floor offering fully serviced office accommodation
- Car parking included within rent (2 spaces per 1,000 sq ft)
- Passenger lift, accessing all floors
Description
St Georges House comprises an attractive and beautifully restored, traditionally constructed period Town Centre office building, with a mixture of cellular and open plan accommodation over all floors.
The ground floor has been tastefully and sympathetically refurbished to provide exceptional office accommodation and meeting rooms, in addition to modern ground floor cafe/coffee shop.
The building provides spacious office accommodation, with generous facilities, in addition to attractive and imposing common areas, benefitting from the many retained and unearthed traditional features. The offices benefit from full length glazing, gas and electrical central heating systems (with options for air-conditioning) and a passenger lift, accessing all floors.
The third floor accommodation provides for a superb dedicated business centre offering fully serviced, exceptional quality office accommodation.
There are a number of car parks nearby offering competitive annual contracts.
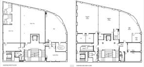
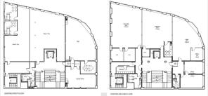
Accommodation & Rental:
In accordance with the RICS Property Measurement (2nd Edition), we have calculated the following approximate Net Internal Areas:
Rental & Service Charge
Suite 1 - First Floor (494 sq ft) £7,165 per annum
Suite 3 - First Floor (1,184 sq ft) £17,175 per annum
Suite 3 - Second Floor (505 sq ft) £7,320 per annum
Suite 4 - First Floor (1,550 sq ft) £22,260 per annum
Suite B2 - Third Floor (210 sq ft) £5,880 per annum inclusive
Suite 1 - Third Floor (1,805 sq ft) £26,175 per annum
Suite 2 - Third Floor (820 sq ft) £11,892 per annum
Suite 2 - Penthouse (872 sq ft) £12,645 per annum
*All rents are inclusive of service charge, but exclusive of VAT, Business Rates and Utilities, excluding Suite B2, which is available on an inclusive rental (except Business Rates).
VAT is applicable and will be charged at the prevailing rate.
Location
Bolton is one of the principal towns forming the Greater Manchester conurbation and is strategically located 14 miles north of Manchester city centre, 13 miles south of Blackburn and 7 miles west of Bury.
The town benefits from excellent transport links with both the M61 and M60 within a short distance from the town centre providing direct links to Manchester, Preston and Liverpool.
London Euston can be accessed by rail in approximately 2hrs 50 minutes, whilst Manchester International Airport is readily accessible in 20 minutes drive.
Services
The mains services connected to the property to include water, gas, electricity supply and of course mains drainage.
Please note that Turner Westwell have not tested any of the service installations or appliances connected to the property.
Service Charge
There will be a service charge levied to cover the maintenance of the common areas and external appearance of the building. Further information on request.
Lease Terms & Rental
Available by way of a new Full Repairing and Insuring lease for a term of years to be agreed. See attached marketing brochure for availability schedule and rents.
Anti-Money Laundering (AML)
In accordance with the Criminal Finances Act 2017 and the regulations set by HMRC and RICS, Turner Westwell Commercial Agents must perform AML due diligence for all clients, as well as for buyers and tenants involved in any transaction. This means we will need to gather personal, detailed financial and corporate information before we can finalise any transaction. When an offer to buy or rent a property is accepted, an Anti-Money Laundering (AML) check will be required on the buyer/tenant. This will cost £30.00 (£25.00 plus VAT) per check and must be paid by the proposed buyer(s) or tenant(s).
Insurance
The Landlord will insure the building and recoup a fair proportion of the annual insurance premium from the Tenant (unless a suite is occupied on a service/managed basis by way of an all inclusive rental).
Legal Costs
Each party are to be responsible for their own legal costs involved in the transaction.
EPC
An EPC has been commissioned and a full copy of the Report can be made available upon request.
Brochures
St Georges House, St Georges Road, Bolton, BL1 2DD
NEAREST STATIONS
Distances are straight line measurements from the centre of the postcode- Bolton Station0.7 miles
- Hall i' th' Wood Station1.3 miles
- Moses Gate Station2.2 miles
Notes
Disclaimer - Property reference 1LH. The information displayed about this property comprises a property advertisement. Rightmove.co.uk makes no warranty as to the accuracy or completeness of the advertisement or any linked or associated information, and Rightmove has no control over the content. This property advertisement does not constitute property particulars. The information is provided and maintained by Turner Westwell Commercial Agents, Chorley. Please contact the selling agent or developer directly to obtain any information which may be available under the terms of The Energy Performance of Buildings (Certificates and Inspections) (England and Wales) Regulations 2007 or the Home Report if in relation to a residential property in Scotland.
Map data ©OpenStreetMap contributors.






