
Nash Green, Staplegrove, Taunton, TA2

- PROPERTY TYPE
Detached
- BEDROOMS
4
- BATHROOMS
2
- SIZE
Ask agent
- TENUREDescribes how you own a property. There are different types of tenure - freehold, leasehold, and commonhold.Read more about tenure in our glossary page.
Freehold
Key features
- A spacious and well-presented detached house
- Situated in a sought after location on the outskirts of Taunton Town.
- Parking
- No onward chain.
Description
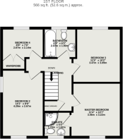
20 Nash Green is a modern four bedroom detached home that offers spacious and versatile accommodation throughout. The accommodation comprises an entrance hallway with a door leading to a large gym space that was previously the garage. To the other side of the hallway can be found a spacious sitting room with bay window to the front and an opening leading to the light and airy open plan kitchen/diner with patio doors leading to the garden. The kitchen is fitted with a range of contemporary wall and base units and benefits from fitted white goods to include a dishwasher, fridge/freezer, oven, hob and extractor fan. A door from the kitchen leads to the utility space which, in turn, leads to the downstairs W.C. Stairs from the entrance hallway lead to the first floor landing where doors give access to the master bedroom with the benefit of a modern fitted shower room comprising W.C., wash hand basin and corner shower cubicle. Bedroom two and three are also good size doubles, whilst bedroom four is a single bedroom with fitted wardrobes that can be used as an office. The first floor is complete by the modern fitted family bathroom comprising W/C, wash hand basin and bath with shower over.
The property is located within this popular development close to Staplegrove and being within easy access of local amenities with the County Town being easily accessible providing it’s extensive facilities, along with access to the M5 motorway and a mainline intercity rail link. Taunton is easily accessible with it’s extensive range of shopping, recreational, sporting and cultural facilities, including Somerset County Cricket Ground and Taunton Racecourse. The County Town also provides access to the M5 motorway and a mainline intercity rail link.
The property benefits from a large driveway for multiple vehicles to the front. The rear garden is also an excellent low maintenance space with a large patio area spanning the width of the garden, ideal for outside entertaining/dining. Steps from the patio rise to a further area of gravel with some mature trees and shrub borders. Also at this level can be found a decking area and storage shed.
Brochures
Particulars- COUNCIL TAXA payment made to your local authority in order to pay for local services like schools, libraries, and refuse collection. The amount you pay depends on the value of the property.Read more about council Tax in our glossary page.
- Band: E
- PARKINGDetails of how and where vehicles can be parked, and any associated costs.Read more about parking in our glossary page.
- Yes
- GARDENA property has access to an outdoor space, which could be private or shared.
- Yes
- ACCESSIBILITYHow a property has been adapted to meet the needs of vulnerable or disabled individuals.Read more about accessibility in our glossary page.
- Ask agent
Nash Green, Staplegrove, Taunton, TA2
Add an important place to see how long it'd take to get there from our property listings.
__mins driving to your place
Get an instant, personalised result:
- Show sellers you’re serious
- Secure viewings faster with agents
- No impact on your credit score
Your mortgage
Notes
Staying secure when looking for property
Ensure you're up to date with our latest advice on how to avoid fraud or scams when looking for property online.
Visit our security centre to find out moreDisclaimer - Property reference TAU240059. The information displayed about this property comprises a property advertisement. Rightmove.co.uk makes no warranty as to the accuracy or completeness of the advertisement or any linked or associated information, and Rightmove has no control over the content. This property advertisement does not constitute property particulars. The information is provided and maintained by Greenslade Taylor Hunt, Taunton. Please contact the selling agent or developer directly to obtain any information which may be available under the terms of The Energy Performance of Buildings (Certificates and Inspections) (England and Wales) Regulations 2007 or the Home Report if in relation to a residential property in Scotland.
*This is the average speed from the provider with the fastest broadband package available at this postcode. The average speed displayed is based on the download speeds of at least 50% of customers at peak time (8pm to 10pm). Fibre/cable services at the postcode are subject to availability and may differ between properties within a postcode. Speeds can be affected by a range of technical and environmental factors. The speed at the property may be lower than that listed above. You can check the estimated speed and confirm availability to a property prior to purchasing on the broadband provider's website. Providers may increase charges. The information is provided and maintained by Decision Technologies Limited. **This is indicative only and based on a 2-person household with multiple devices and simultaneous usage. Broadband performance is affected by multiple factors including number of occupants and devices, simultaneous usage, router range etc. For more information speak to your broadband provider.
Map data ©OpenStreetMap contributors.









