
Horsley Hale, Littleport, CB6

- PROPERTY TYPE
Equestrian Facility
- BEDROOMS
7
- BATHROOMS
5
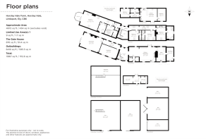
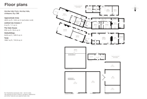
- SIZE
5,548 sq ft
515 sq m
- TENUREDescribes how you own a property. There are different types of tenure - freehold, leasehold, and commonhold.Read more about tenure in our glossary page.
Freehold
Key features
- Five Bedroom Farmhouse
- Four En-Suites & Four Reception Rooms
- Separate 2 Bedroom Cottage
- 5,500 Sq Ft of Accommodation
- 10 Acres of Gardens, Woodland and Meadow
- Well Stocked Fishing Lake
- Previously Award Winning Holiday Park & Wedding Venue
- Barns, Stables & Outbuildings
- Haven for Wildlife - An Oasis in the Fens
- EPC - C
Description
Horsley Hale Farm - A Rare Lifestyle & Leisure Estate in the Heart of the Fens
Tucked away at the peaceful end of a no-through road, Horsley Hale Farm is a truly exceptional country residence, offering a rare blend of residential elegance, leisure facilities, and commercial opportunity. Set within 10 acres of stunning gardens, woodland, and meadowland, this unique estate combines a substantial five-bedroom farmhouse, a charming two-bedroom gatehouse, extensive outbuildings, fishing lake, gardens and meadow, all framed by hundreds of mature trees.
The main farmhouse extends to around 4,672 sq ft, thoughtfully arranged with five double bedrooms - the master having a balcony with stunning views of the lake and gardens, four en-suites, and four versatile reception rooms. Modern comforts run throughout, with air-conditioning and heat pump units, full Ethernet cabling, and a dedicated server rack in the utility room. The master suite and sitting room are both fully cabled for immersive 5.1 surround sound, ensuring the home is as suited for entertaining as it is for peaceful family living.
Alongside the farmhouse, the estate boasts a separate two-bedroom cottage, The Gatehouse of around 876 sq ft, which has proven highly profitable as an AirBnB and offers ideal guest or multigenerational accommodation.
Outdoors, the property unfolds into a haven for nature and recreation. A well-stocked, fully lined fishing lake with a fountain, jetty, and bathing steps sits at the heart of the grounds, while the surrounding woodland and meadows offer endless walks and wildlife encounters. The gardens host patios, a hot tub, and expansive lawns perfect for social gatherings. Previously operating as an award-winning holiday park, wedding and events venue, Horsley Hale Farm has welcomed thousands of visitors, and the infrastructure remains in place with power and water across the entire site, a gravel car park for around 40 vehicles, and separate supplies and meters for both the house and farm.
A wealth of outbuildings accompany the estate, including agricultural barns, stables, and a concrete yard. One stable block has even been thoughtfully converted into a bar. For those seeking future potential, there is significant scope for Class Q development and an existing planning consent (Ref: 18/00831/FUL) for a glamping site with associated visitor facilities.
Whether envisioned as a prestigious private residence, an equestrian retreat, a leisure business, or a unique lifestyle venture, Horsley Hale Farm offers unmatched versatility and opportunity.
Perfectly located just 3 minutes’ drive from Littleport Station and only 15 minutes from the historic city of Ely, the estate offers seclusion without isolation – a true oasis in the Fens.
LITTLEPORT
Littleport is a large village located approximately 5 miles (8 km) north of Ely. It is situated on the eastern bank of the River Great Ouse, providing scenic river views and easy access to Ely and Cambridge via the A10.
Littleport offers convenient transportation options with a railway station providing direct links to Ely, Cambridge, and London. The village is known for its historic association with the Littleport Riots of 1816.
The village is home to a variety of local events, including annual fairs and community gatherings.. Educational facilities include Littleport Community Primary School and the Littleport and East Cambridgeshire Academy, both rated well by Ofsted.
Littleport boasts a range of amenities including several churches, a community centre, local shops, cafes, and restaurants. Recreational facilities include a sports centre, parks, and the Littleport Leisure Centre which hosts various activities and clubs.
ELY
Ely is a historic cathedral city located about 15 miles (24 km) north of Cambridge. Situated on the banks of the River Great Ouse, Ely offers picturesque views and convenient access to major cities via the A10 and its railway station.
Ely is renowned for its stunning Ely Cathedral, a masterpiece of medieval architecture that attracts visitors from all over the world. The city has a rich history, with numerous heritage sites, museums, and annual events such as the Ely Eel Festival.
The city provides excellent educational facilities, including primary and secondary schools rated 'Good' or 'Outstanding' by Ofsted as well as the internationally renowned independent Kings Ely. Ely College offers secondary and sixth form education, and there are several primary schools throughout the city.
Ely offers a wide range of amenities, including numerous churches, a vibrant market, shops, cafes, restaurants, and pubs. The Ely Leisure Village features a cinema, restaurants, and a sports centre.
Recreational facilities include parks, riverside walks, and the Ely Country Park. The city also has a golf course, swimming pool, and various sports clubs. The nearby Roswell Pits provide opportunities for fishing and birdwatching.
Ely's railway station offers regular services to Cambridge, London, and other major destinations, making it a well-connected city while retaining its historic charm and tranquil atmosphere.
AGENTS NOTE
Horsley Hale Farm is owned by the directors of Hockeys Ely who are also marketing the property. In accordance with The Property Ombudman’s code of conduct and to avoid any conflict of interest, offers, sales negotiation and sales progression will be managed by another branch of Hockeys Estate Agents.
EPC Rating: C
Garden
Acres of gardens including mature specimen trees and fishing lake
Balcony
Balcony to Matser Bedroom with stunning views of the lake and gardens.
Yard
Large Concrete Pad Farm Yard
Parking - Driveway
Parking - Secure gated
Gated gravel car park with a capacity for around 40 cars.
Brochures
Material Information- COUNCIL TAXA payment made to your local authority in order to pay for local services like schools, libraries, and refuse collection. The amount you pay depends on the value of the property.Read more about council Tax in our glossary page.
- Band: F
- PARKINGDetails of how and where vehicles can be parked, and any associated costs.Read more about parking in our glossary page.
- Driveway,Gated
- GARDENA property has access to an outdoor space, which could be private or shared.
- Private garden
- ACCESSIBILITYHow a property has been adapted to meet the needs of vulnerable or disabled individuals.Read more about accessibility in our glossary page.
- Ask agent
Horsley Hale, Littleport, CB6
Add an important place to see how long it'd take to get there from our property listings.
__mins driving to your place
Get an instant, personalised result:
- Show sellers you’re serious
- Secure viewings faster with agents
- No impact on your credit score
Your mortgage
Notes
Staying secure when looking for property
Ensure you're up to date with our latest advice on how to avoid fraud or scams when looking for property online.
Visit our security centre to find out moreDisclaimer - Property reference 3c61a73b-a2a4-4d50-b3f8-7a560cc3a260. The information displayed about this property comprises a property advertisement. Rightmove.co.uk makes no warranty as to the accuracy or completeness of the advertisement or any linked or associated information, and Rightmove has no control over the content. This property advertisement does not constitute property particulars. The information is provided and maintained by Hockeys, Ely. Please contact the selling agent or developer directly to obtain any information which may be available under the terms of The Energy Performance of Buildings (Certificates and Inspections) (England and Wales) Regulations 2007 or the Home Report if in relation to a residential property in Scotland.
*This is the average speed from the provider with the fastest broadband package available at this postcode. The average speed displayed is based on the download speeds of at least 50% of customers at peak time (8pm to 10pm). Fibre/cable services at the postcode are subject to availability and may differ between properties within a postcode. Speeds can be affected by a range of technical and environmental factors. The speed at the property may be lower than that listed above. You can check the estimated speed and confirm availability to a property prior to purchasing on the broadband provider's website. Providers may increase charges. The information is provided and maintained by Decision Technologies Limited. **This is indicative only and based on a 2-person household with multiple devices and simultaneous usage. Broadband performance is affected by multiple factors including number of occupants and devices, simultaneous usage, router range etc. For more information speak to your broadband provider.
Map data ©OpenStreetMap contributors.






