
Coronation Road, Downend, Bristol, BS16 5SN

- PROPERTY TYPE
End of Terrace
- BEDROOMS
3
- BATHROOMS
1
- SIZE
Ask agent
- TENUREDescribes how you own a property. There are different types of tenure - freehold, leasehold, and commonhold.Read more about tenure in our glossary page.
Freehold
Key features
- Semi-detached property requiring modernisation
- Conveniently located for amenities
- 3 bedrooms
- Lounge & dining room
- Garage & off street parking
- Gas central heating
- Double glazed windows
Description
Description - Hunters Estate Agents, Downend are pleased to offer for sale this bay fronted semi-detached property located conveniently for the amenities of Downend and for access onto the Avon ring road, for major commuting routes and for the Bristol cycle path.
The amenities of Downend include a wide variety of independent shops and supermarkets, library, coffee shops, restaurants, doctors surgeries and dental practices.
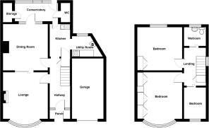
The property does require modernisation throughout and comprises to the ground floor; lounge, dining room and kitchen. To the first floor there are three bedrooms and shower room.
Additional benefits include; rear garden, garage, off street parking and gas central heating.
Additional benefits include gas central heating,
Entrance - Via opaque double glazed double doors leading into an entrance porch.
Entrance Porch - Via a part stained glazed door with stained glazed surround leading into an entrance hall.
Entrance Hall - Low level cupboards housing gas and electric meter and consumer unit, under stairs storage cupboard, radiator, stairs leading to first floor accommodation and doors leading into lounge, dining room and kitchen.
Lounge - 4.34m (into bay) x 3.71m (14'3" (into bay) x 12'2" - Double glazed bay window to front, picture rail, TV aerial point, gas fire, two radiators, opaque glazed sliding double doors leading into dining room.
Dining Room - 3.81m x 3.43m (12'6" x 11'3") - Window to rear, picture rail, radiator, door leading into lean to.
Kitchen - 4.14m x 2.84m (13'7" x 9'4") - Double glazed window to rear, stainless steel single drainer sink unit with chrome mixer tap and tiled splash backs, wall and base units, roll edged worksurface, gas cooker point, plumbing for washing machine, plumbing for dishwasher, space for a large fridge freezer, Worcester boiler supplying gas central heating, uPVC double glazed door leading into lean to.
Lean-To - 3.89m x 1.52m (12'9" x 5'0") - Window to rear, door leading into W.C. storage cupboard, opaque glazed door leading into rear garden.
First Floor Accommodation -
Landing - Double glazed window to side, over stairs storage cupboard, doors leading into all first floor rooms,
Bedroom One - 4.32m (into bay) x 2.97m (14'2" (into bay) x 9'9") - Double glazed bay window to front, fitted wardrobes with drawer unit and over head storage cupboards, two radiators.
Bedroom Two - 3.81m x 3.58m (12'6" x 11'9") - Window to rear, airing cupboard, radiator.
Bedroom Three - 2.51m x 1.91m (8'3" x 6'3") - Double glazed window to front, radiator.
Shower Room - 1.93m x 1.65m (6'4" x 5'5") - Opaque glazed window to rear, white suite comprising; shower with fitted seat and grab rails, W.C. and wash hand basin, half tiled walls, chrome heated towel rail.
Outside -
Front Garden - Small area of lawn with herbaceous borders, wooden gate providing side pedestrian access.
Off Street Parking - Block paved area located in front of the garage providing an off street parking space.
Garage - 5.15 x 2.64 (16'10" x 8'7") - Single sized garage with metal up and over door.
Rear Garden - Paved patio leading to an area of lawn with established herbaceous borders, water tap, garden surround by wooden fencing and boundary wall.
Anti-Money Laundering - Estate Agents operating in the UK are required to conduct Anti-Money Laundering (AML) checks in compliance with the regulations set forth by HM Revenue and Customs (HMRC) for all property transactions. It is mandatory for both buyers and sellers to successfully complete these checks before any property transaction can proceed. Our estate agency uses Coadjute’s Assured Compliance service to facilitate the AML checks. A fee will be charged for each individual AML check conducted.
Brochures
Coronation Road, Downend, Bristol, BS16 5SN- COUNCIL TAXA payment made to your local authority in order to pay for local services like schools, libraries, and refuse collection. The amount you pay depends on the value of the property.Read more about council Tax in our glossary page.
- Ask agent
- PARKINGDetails of how and where vehicles can be parked, and any associated costs.Read more about parking in our glossary page.
- Yes
- GARDENA property has access to an outdoor space, which could be private or shared.
- Yes
- ACCESSIBILITYHow a property has been adapted to meet the needs of vulnerable or disabled individuals.Read more about accessibility in our glossary page.
- Ask agent
Coronation Road, Downend, Bristol, BS16 5SN
Add an important place to see how long it'd take to get there from our property listings.
__mins driving to your place
Get an instant, personalised result:
- Show sellers you’re serious
- Secure viewings faster with agents
- No impact on your credit score
Your mortgage
Notes
Staying secure when looking for property
Ensure you're up to date with our latest advice on how to avoid fraud or scams when looking for property online.
Visit our security centre to find out moreDisclaimer - Property reference 34139977. The information displayed about this property comprises a property advertisement. Rightmove.co.uk makes no warranty as to the accuracy or completeness of the advertisement or any linked or associated information, and Rightmove has no control over the content. This property advertisement does not constitute property particulars. The information is provided and maintained by Hunters, Downend. Please contact the selling agent or developer directly to obtain any information which may be available under the terms of The Energy Performance of Buildings (Certificates and Inspections) (England and Wales) Regulations 2007 or the Home Report if in relation to a residential property in Scotland.
*This is the average speed from the provider with the fastest broadband package available at this postcode. The average speed displayed is based on the download speeds of at least 50% of customers at peak time (8pm to 10pm). Fibre/cable services at the postcode are subject to availability and may differ between properties within a postcode. Speeds can be affected by a range of technical and environmental factors. The speed at the property may be lower than that listed above. You can check the estimated speed and confirm availability to a property prior to purchasing on the broadband provider's website. Providers may increase charges. The information is provided and maintained by Decision Technologies Limited. **This is indicative only and based on a 2-person household with multiple devices and simultaneous usage. Broadband performance is affected by multiple factors including number of occupants and devices, simultaneous usage, router range etc. For more information speak to your broadband provider.
Map data ©OpenStreetMap contributors.









