4 bedroom detached house for sale
Withinlee Road, Prestbury, Macclesfield

- PROPERTY TYPE
Detached
- BEDROOMS
4
- BATHROOMS
2
- SIZE
Ask agent
- TENUREDescribes how you own a property. There are different types of tenure - freehold, leasehold, and commonhold.Read more about tenure in our glossary page.
Freehold
Description
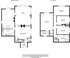
Acommodation -
First Floor -
Entrance Porch - 2.24m x 1.47m (7'04 x 4'10) - With tiled floor, radiator.
Wc - With low level WC, pedestal wash hand basin, radiator, tiled floor.
Family Room - 5.16m x 4.24m (16'11 x 13'11) - With feature fireplace with slate hearth and log burning stove, radiator, under stairs cupboard with plumbing for washing machine.
Living Room - 6.30m x 5.21m (20'08 x 17'01) - With dual aspect, feature fireplace with Living Flame effect fire, two radiators, glazed double doors to garden.
Dining Kitchen - 8.43m x 4.22m (27'08 x 13'10) - With fitted Shaker style kitchen with range of base cupboards and drawers, wall cupboards and granite work tops, 5 ring gas range with electric ovens and extractor unit, American style fridge freezer, integrated dishwasher and microwave, stainless steel double sink, 2 contemporary radiators, contemporary corner log burning stove, glazed double doors to garden, glazed side door.
First Floor -
Landing - With two radiators.
Bedroom One - 5.79m (into window recess) x 4.27m (19'00 (into wi - With walk in wardrobe, radiator.
En-Suite - 2.90m x 1.60m (9'06 x 5'03) - With low level WC, vanity wash hand basin with cupboards below, shower, contemporary radiator, part tiled walls.
Bedroom Two - 5.13m x 2.92m (16'10 x 9'07) - With loft access, radiator.
Bedroom Three - 4.11m x 3.00m (overall) (13'06 x 9'10 (overall)) - With built in double cupboards, radiator.
Bedroom Four - 4.09m x 2.82m (overall) (13'05 x 9'03 (overall)) - With built in double cupboards, fireplace with cast iron surround and tiled hearth, radiator.
Bathroom - 4.09m x 2.39m (13'05 x 7'10) - With low level WC, vanity wash hand basin with cupboards below, large shower, heated towel rail, part tiled walls, tiled floor, loft access.
Outside -
Gardens - As previously mentioned.
Tenure - Freehold. Interested purchasers should seek clarification of this with their solicitor.
Viewings - Strictly by appointment through the Agent.
Possession - Vacant possession upon completion.
Constructed of brick, this property offers the discerning purchaser the opportunity to acquire a fabulous detached cottage that has been lovingly renovated to create a delightful family home in a prestigious location close to the village of Prestbury.
The accommodation briefly comprises: entrance porch, WC, family room, 20ft living room, 27ft dining kitchen with Shaker style units and granite worktops. To the first floor are 4 good sized bedrooms and two bathrooms (one en-suite). A gas central heating system has been installed.
An internal inspection is highly recommended to appreciate the size and quality of this wonderful property.
To the outside, the property is approached through a 5 bar wooden gate onto a gravel driveway with ample hardstanding for motor vehicles and a lawned area edged by hedges and mature and specimen trees. To the rear is a pretty garden with paved area for seating, lawn edged with hedges, mature and specimen shrubs and trees and a painted wooden summerhouse at the end of the garden.
The charming and historic village of Prestbury caters for most daily needs, whilst more extensive facilities may be found in Macclesfield, Wilmslow and Alderley Edge, all within short driving distance. Access points to the national motorway network, Inter-City rail travel to London and Manchester International Airport are all within 30 minutes drive of the property.
Directions: From our Prestbury office, bear right at the mini roundabout and continue up Castle Hill. Passing both entrances to Castlegate on the left, after a short distance, bear left into Withinlee Road where the property can be found after a short distance on the left hand side.
Brochures
Withinlee Road, Prestbury, Macclesfield- COUNCIL TAXA payment made to your local authority in order to pay for local services like schools, libraries, and refuse collection. The amount you pay depends on the value of the property.Read more about council Tax in our glossary page.
- Ask agent
- PARKINGDetails of how and where vehicles can be parked, and any associated costs.Read more about parking in our glossary page.
- Yes
- GARDENA property has access to an outdoor space, which could be private or shared.
- Yes
- ACCESSIBILITYHow a property has been adapted to meet the needs of vulnerable or disabled individuals.Read more about accessibility in our glossary page.
- Ask agent
Withinlee Road, Prestbury, Macclesfield
Add an important place to see how long it'd take to get there from our property listings.
__mins driving to your place
Get an instant, personalised result:
- Show sellers you’re serious
- Secure viewings faster with agents
- No impact on your credit score
Your mortgage
Notes
Staying secure when looking for property
Ensure you're up to date with our latest advice on how to avoid fraud or scams when looking for property online.
Visit our security centre to find out moreDisclaimer - Property reference 34140068. The information displayed about this property comprises a property advertisement. Rightmove.co.uk makes no warranty as to the accuracy or completeness of the advertisement or any linked or associated information, and Rightmove has no control over the content. This property advertisement does not constitute property particulars. The information is provided and maintained by Holmes-Naden Estate Agents, Prestbury. Please contact the selling agent or developer directly to obtain any information which may be available under the terms of The Energy Performance of Buildings (Certificates and Inspections) (England and Wales) Regulations 2007 or the Home Report if in relation to a residential property in Scotland.
*This is the average speed from the provider with the fastest broadband package available at this postcode. The average speed displayed is based on the download speeds of at least 50% of customers at peak time (8pm to 10pm). Fibre/cable services at the postcode are subject to availability and may differ between properties within a postcode. Speeds can be affected by a range of technical and environmental factors. The speed at the property may be lower than that listed above. You can check the estimated speed and confirm availability to a property prior to purchasing on the broadband provider's website. Providers may increase charges. The information is provided and maintained by Decision Technologies Limited. **This is indicative only and based on a 2-person household with multiple devices and simultaneous usage. Broadband performance is affected by multiple factors including number of occupants and devices, simultaneous usage, router range etc. For more information speak to your broadband provider.
Map data ©OpenStreetMap contributors.







