
Benover Road, Yalding, ME18

- PROPERTY TYPE
Terraced
- BEDROOMS
2
- BATHROOMS
1
- SIZE
661 sq ft
61 sq m
- TENUREDescribes how you own a property. There are different types of tenure - freehold, leasehold, and commonhold.Read more about tenure in our glossary page.
Freehold
Key features
- In Need Of Modernisation
- Grade II Listed
- Set Over 3 Levels
- Yalding Village Location
- Walking Distance To Post Office
- Maidstone Town Centre Approx. 6 Miles Away
Description
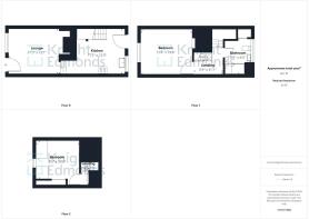
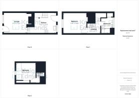
This mid-terraced property offers a fantastic opportunity for buyers looking to create their ideal home. In need of modernisation throughout, it provides a blank canvas to add your own style and flair.
On the ground floor, you enter into the living room, which flows through to the kitchen. From here, there is direct access to the rear garden.
The staircase, located in the kitchen, leads to the first floor, where you will find a generously sized double bedroom and a family bathroom. A further staircase takes you to the top floor, home to an additional spacious double bedroom.
The rear garden requires attention but offers the potential to be transformed into a wonderful outdoor space.
Yalding is a picturesque village located in the county of Kent, England, known for its charming rural atmosphere and historical significance. Nestled along the River Medway, it features scenic landscapes with traditional English countryside elements such as rolling fields, meadows, and woodlands.
The village is steeped in history, with buildings that date back several centuries, including medieval cottages and a 13th-century stone bridge called Twyford Bridge, which crosses the River Medway. Yalding also boasts a number of historic churches, such as St. Peter and St. Paul’s Church, which is an iconic feature of the village.
Yalding has a rich agricultural tradition, and its surrounding areas are known for fruit orchards and hop gardens. The village also has several local pubs, cafes, and shops that contribute to its community feel. The annual Yalding Yuletide Market and other village events add to its vibrant community life.
With scope for improvement, this property is ideal for buyers seeking a renovation project in a convenient location.
EPC Rating: D
- COUNCIL TAXA payment made to your local authority in order to pay for local services like schools, libraries, and refuse collection. The amount you pay depends on the value of the property.Read more about council Tax in our glossary page.
- Band: C
- LISTED PROPERTYA property designated as being of architectural or historical interest, with additional obligations imposed upon the owner.Read more about listed properties in our glossary page.
- Listed
- PARKINGDetails of how and where vehicles can be parked, and any associated costs.Read more about parking in our glossary page.
- Ask agent
- GARDENA property has access to an outdoor space, which could be private or shared.
- Private garden
- ACCESSIBILITYHow a property has been adapted to meet the needs of vulnerable or disabled individuals.Read more about accessibility in our glossary page.
- Ask agent
Benover Road, Yalding, ME18
Add an important place to see how long it'd take to get there from our property listings.
__mins driving to your place
Explore area BETA
Maidstone
Get to know this area with AI-generated guides about local green spaces, transport links, restaurants and more.
Get an instant, personalised result:
- Show sellers you’re serious
- Secure viewings faster with agents
- No impact on your credit score
Your mortgage
Notes
Staying secure when looking for property
Ensure you're up to date with our latest advice on how to avoid fraud or scams when looking for property online.
Visit our security centre to find out moreDisclaimer - Property reference c74be1b4-b74b-4c69-ae6b-9d68c170c877. The information displayed about this property comprises a property advertisement. Rightmove.co.uk makes no warranty as to the accuracy or completeness of the advertisement or any linked or associated information, and Rightmove has no control over the content. This property advertisement does not constitute property particulars. The information is provided and maintained by Knight Edmonds, Maidstone. Please contact the selling agent or developer directly to obtain any information which may be available under the terms of The Energy Performance of Buildings (Certificates and Inspections) (England and Wales) Regulations 2007 or the Home Report if in relation to a residential property in Scotland.
*This is the average speed from the provider with the fastest broadband package available at this postcode. The average speed displayed is based on the download speeds of at least 50% of customers at peak time (8pm to 10pm). Fibre/cable services at the postcode are subject to availability and may differ between properties within a postcode. Speeds can be affected by a range of technical and environmental factors. The speed at the property may be lower than that listed above. You can check the estimated speed and confirm availability to a property prior to purchasing on the broadband provider's website. Providers may increase charges. The information is provided and maintained by Decision Technologies Limited. **This is indicative only and based on a 2-person household with multiple devices and simultaneous usage. Broadband performance is affected by multiple factors including number of occupants and devices, simultaneous usage, router range etc. For more information speak to your broadband provider.
Map data ©OpenStreetMap contributors.






