
5 bedroom detached house for sale
Station Road, Weston Rhyn

- PROPERTY TYPE
Detached
- BEDROOMS
5
- BATHROOMS
2
- SIZE
Ask agent
- TENUREDescribes how you own a property. There are different types of tenure - freehold, leasehold, and commonhold.Read more about tenure in our glossary page.
Freehold
Key features
- NO ONWARD CHAIN!!
- Period Detached Family Home
- Five Bedrooms
- Lots Of Original Character
- Three Large Reception Rooms
- Extensive Grounds & Gardens
- Two Garages & Driveway
- Tucked Away Location
Description
Directions - From Oswestry join the A5 travelling towards Wrexham. Upon reaching the Gledrid roundabout take the first exit towards Weston Rhyn. Proceed through the village, onto Station Road and the entrance to the property will be viewed on the left hand side set back from the road just before the crossroads.
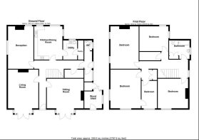
Accommodation Comprises -
Porch - The porch area has a part glazed door to the side and leads through into the main hallway. There is a small scullery area to the left with tiled shelving and a window to the front. There is the original quarry tiled flooring and a door leading to the cloakroom.
Cloakroom - The cloakroom has a wash hand basin, w.c. ,a window to the front, quarry tiled flooring and an electric wall heater.
Hallway - The long L shaped hallway has a part quarry tiled floor and part parquet flooring that leads to the front principal reception rooms and the part glazed front entrance door.There is an under stairs cupboard and radiator. Doors lead to the kitchen, family room, sitting room and drawing room. The wide staircase leads to the first floor.
Kitchen/ Breakfast Room - 4.60m x 4.08m (15'1" x 13'4") - The kitchen/ breakfast room is fitted with a range of base and wall units with work surfaces over, original quarry tiled flooring, eye level double Neff oven, ceramic hob and extractor fan over, part tiled walls, AGA range cooker with a wooden surround, Trianco oil fired boiler, stainless steel sink with a mixer tap, space for a fridge/ freezer, a sash window to the side, a second window onto the driveway and a door leading to the utility.
Additional Photo -
Utility - 2.61m x 1.87m (8'6" x 6'1") - The utility has a window to the side, fitted base and wall units with work surfaces over, plumbing for a washing machine, quarry tiled floor, stainless steel sink, shelving and a pantry off with cold slab shelving, shelving and a quarry tiled floor.
Family/Dining Room - 5.92m x 3.61m (19'5" x 11'10") - A very versatile fantastic space having a sash window to the side and the rear and a radiator.
Sitting Room - 5.39m x 4.14m (17'8" x 13'6") - The beautiful sitting room has an open feature fireplace with wooden surround, picture r ail, wood flooring, radiator and lovely original French doors with glazed side panels letting in lots of light leading out to the front garden.
Drawing Room - 5.13m x 4.04m (16'9" x 13'3") - The elegant drawing room is also flooded with light having the original French doors with glazed side panels leading out to the garden. There is wood flooring, picture rail and a feature open fireplace with a tiled inset and wood surround.
Fireplace -
Staircase - The wide staircase leads from the hallway to the first floor accommodation.
To The First Floor - The first floor landing has a sash window at the top of the stairs letting in lots of light. This landing leads to a further hallway with doors which lead to the bedrooms and the bathroom. There is a roof light on the far landing letting in lots of light as well as a double built in linen cupboard and a further walk in storage room measuring 3.07m x 1.13m both offering great storage.
Additional Photo -
Bedroom One - 4.25m x 4.07m (13'11" x 13'4") - The first double bedroom has a feature cast iron fireplace, radiator and a sash window overlooking the front garden.
Family Bathroom - 2.77m x 2.54m (9'1" x 8'3") - The family bathroom has a window to the side, wash hand basin, paneled bath with a mixer tap over, low level w.c., radiator, Triton electric shower over the bath and a large linen cupboard with shelving.
Bedroom Two - 5.87m x 3.87m (19'3" x 12'8") - A superb sized room with the potential to split or to add an en suite if required. Having two sash windows to the side, radiator, stripped floorboards and a focal cast iron fireplace.
Bedroom Three - 3.97m x 3.23m (13'0" x 10'7") - The third double bedroom has a window to the side and the rear and a feature cast iron fireplace.
Bedroom Four - 5.39m x 4.20m (17'8" x 13'9") - The fourth superb double bedroom has a sash window to the side and a sash window to the front overlooking the garden. There is a cast iron fireplace, radiator and a door leading through to the fifth bedroom.
Bedroom Five - 3.81m x 2.04m (12'5" x 6'8") - The fifth bedroom has a sash window to the front overlooking the garden.
To The Outside - The property is accessed from Station Road through a five bar timber gate onto the driveway.
Driveway - The driveway sweeps down to the house passing the garage and brick built outhouse on the right hand side making the approach very private from the road.
Garaging - 5.63m x 4.05m (18'5" x 13'3") - The garage is located to the side of the property and has an up and over door and window and door to the rear.
Outbuilding - 7.50m x 5.00m (24'7" x 16'4") - There is a second outbuilding located to the side of the house having a garage door to the front and a door to the side. A very versatile space ideal for a number of uses such as hobby room or workshop.
Log Store And Coal House - 5.26m x 2.14m (17'3" x 7'0") - The log store and coal house is adjoining the main house and has doors to the front and rear along with windows to the front and side. An ideal space for conversion into further living accommodation for the main house.
Front Porch -
View From The Porch -
Gardens - The extensive gardens wrap around the property and have an abundance of mature shrubs and trees with large lawned areas to the front and the side totalling approximately 1/2 of an acre, parts of this were once used as a fantastic productive growing plot ideal for those looking to be more self sufficient. There is an artificial pond at the side with hedge and fence boundaries. The property also has an additional pedestrian gated entrance from Gobowen Road.
Additional Photo -
Additional Photo -
Additional Photo -
Location -
Japanese Knotweed - There is historic Japanese knotweed in the garden of the property, this sits some distance away from the property itself however the current owners have engaged with an authorised treatment provider (The Japanese Knotweed Agency) and the thermo-electric treatment plan has commenced.
Town And Country Services - We offer a FREE valuation/market appraisal service from a trained representative with strong market knowledge and experience - We are a professional, independent company - We provide elegant, clear and concise brochures - Fully accompanied Viewings Available with regular viewing feedback - Full Colour Photography, including professional aerial photography when required - Full Colour Advertising - Eye catching For Sale Boards - Up-to-date buyer registration with a full property matching service - Sound Local Knowledge and Experience - State of the Art Technology - Motivated Professional Staff - All properties advertised on Zoopla, Onthemarket.com - VERY COMPETITIVE FEES FOR SELLING.
To Make An Offer - Town and Country recommend that a prospective buyer/tenant follows the guidance of the Property Ombudsman and undertakes a physical viewing of the property and does not solely rely on virtual/video information when making their decision. Town and Country also advise it is best practice to view a property in person before making an offer.
To make an offer, please call our sales office on and speak to a member of the sales team.
To Book A Viewing - Viewing is strictly by appointment, please call our sales office on to arrange.
Tenure/Council Tax - We understand the property is freehold, although purchasers must make their own enquiries via their solicitor.
The Council tax is payable to Shropshire County Council and we believe the property to be in Band E.
Services - The agents have not tested the appliances listed in the particulars.
Money Laundering Regulations - Once an offer is accepted, the successful purchaser will be required to produce adequate identification to prove the identity of all named buyers within the terms of the Money Laundering Regulations. Appropriate examples include: Photo Identification such as Passport/Photographic Driving Licence and proof of residential address such as a recent utility bill or bank statement.
Hours Of Business - Our office is open:
Monday to Friday: 9.00am to 5.00pm
Saturday: 9.00am to 2.00pm
Additional Information - We would like to point out that all measurements, floor plans and photographs are for guidance purposes only (photographs may be taken with a wide angled/zoom lens), and dimensions, shapes and precise locations may differ to those set out in these sales particulars which are approximate and intended for guidance purposes only.
These particulars, whilst believed to be accurate are set out as a general outline only for guidance and do not constitute any part of an offer or contract. Intending purchasers should not rely on them as statements of representation of fact, but most satisfy themselves by inspection or otherwise as to their accuracy. No person in this firm's employment has the authority to make or give any representation or warranty in respect of the property.
Brochures
Station Road, Weston RhynBrochure- COUNCIL TAXA payment made to your local authority in order to pay for local services like schools, libraries, and refuse collection. The amount you pay depends on the value of the property.Read more about council Tax in our glossary page.
- Ask agent
- PARKINGDetails of how and where vehicles can be parked, and any associated costs.Read more about parking in our glossary page.
- Yes
- GARDENA property has access to an outdoor space, which could be private or shared.
- Yes
- ACCESSIBILITYHow a property has been adapted to meet the needs of vulnerable or disabled individuals.Read more about accessibility in our glossary page.
- Ask agent
Station Road, Weston Rhyn
Add an important place to see how long it'd take to get there from our property listings.
__mins driving to your place
Get an instant, personalised result:
- Show sellers you’re serious
- Secure viewings faster with agents
- No impact on your credit score


Your mortgage
Notes
Staying secure when looking for property
Ensure you're up to date with our latest advice on how to avoid fraud or scams when looking for property online.
Visit our security centre to find out moreDisclaimer - Property reference 34143560. The information displayed about this property comprises a property advertisement. Rightmove.co.uk makes no warranty as to the accuracy or completeness of the advertisement or any linked or associated information, and Rightmove has no control over the content. This property advertisement does not constitute property particulars. The information is provided and maintained by Town & Country Property Services, Oswestry. Please contact the selling agent or developer directly to obtain any information which may be available under the terms of The Energy Performance of Buildings (Certificates and Inspections) (England and Wales) Regulations 2007 or the Home Report if in relation to a residential property in Scotland.
*This is the average speed from the provider with the fastest broadband package available at this postcode. The average speed displayed is based on the download speeds of at least 50% of customers at peak time (8pm to 10pm). Fibre/cable services at the postcode are subject to availability and may differ between properties within a postcode. Speeds can be affected by a range of technical and environmental factors. The speed at the property may be lower than that listed above. You can check the estimated speed and confirm availability to a property prior to purchasing on the broadband provider's website. Providers may increase charges. The information is provided and maintained by Decision Technologies Limited. **This is indicative only and based on a 2-person household with multiple devices and simultaneous usage. Broadband performance is affected by multiple factors including number of occupants and devices, simultaneous usage, router range etc. For more information speak to your broadband provider.
Map data ©OpenStreetMap contributors.





