Walderslade Road, Walderslade

- PROPERTY TYPE
End of Terrace
- BEDROOMS
3
- BATHROOMS
1
- SIZE
Ask agent
- TENUREDescribes how you own a property. There are different types of tenure - freehold, leasehold, and commonhold.Read more about tenure in our glossary page.
Freehold
Description
Front View of Property
Access to off-road area suitable for parking in front of the property. Composite front door with glass panels to entrance.
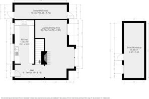
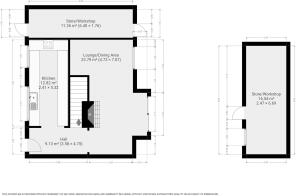
Hallway 1.62m (5' 4") x 3.58m (11' 9")
The hallway is open-plan to the kitchen and has access to the first floor via stairs. Radiator with feature radiator cover and shelf. Smoke alarm.
Kitchen 5.32m (17' 5") x 2.41m (7' 11")
Kitchen was newly fitted two years ago. Two uPVC double glazed windows to front. Galley-style fitted kitchen in a range of blue wall and base units with light marble work surfaces. Inset sink and drainer. Electric hob. Built-in double oven with grill. Space for American-style fridge/freezer and space for washing machine. Integrated dishwasher. Veneered grey flooring.
Lounge/Dining Area 6.94m (22' 9") x 2.59m (8' 6")
UPVC double glazed patio doors to rear looking over garden. Radiator. Grey carpet. Feature fireplace with wooden surround. Further radiator. Space for dining area.
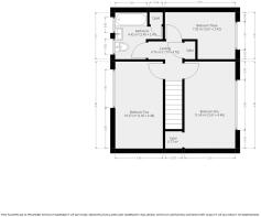
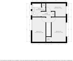
First Floor Landing
Attractive modern striped carpet to stairs and landing. Access to loft via hatch with pull-down ladder. Loft has lighting and boarding.
Bedroom One 4.48m (14' 8") x 2.61m (8' 7")
UPVC double glazed window to rear. Radiator under window. Double room. Grey carpet. Recess for storage: may have potential to convert to en-suite cloakroom/WC.
Bedroom Two 4.48m (14' 8") x 2.45m (8' 0")
UPVC double glazed window to front. Radiator under window. Double room. Grey carpet.
Bedroom Three 2.38m (7' 10") x 3.66m (12' 0")
UPVC double glazed window to rear. Radiator under window. Blue carpet.
Bathroom 2.41m (7' 11") x 2.45m (8' 0")
Two patterned uPVC double glazed windows to front. White suite comprising: panel enclosed bath with hand-held shower mixer tap. Wash hand basin set on vanity cupboard and drawers. WC. Fully-tiled walls and floor. Radiator. Airing cupboard.
Rear Garden
Garden has patio area. Steps up to lawn. Large store/home office/gym at rear of garden. Side workshop with power and light. This area may have potential to extend.
Rear Garden Workshop 6.69m (21' 11") x 2.47m (8' 1")
Side Workshop 1.76m (5' 9") x 6.40m (21' 0")
Further Information
Council Tax: Band B
Local Authority: Medway (£1,717 per annum)
- COUNCIL TAXA payment made to your local authority in order to pay for local services like schools, libraries, and refuse collection. The amount you pay depends on the value of the property.Read more about council Tax in our glossary page.
- Ask agent
- PARKINGDetails of how and where vehicles can be parked, and any associated costs.Read more about parking in our glossary page.
- Yes
- GARDENA property has access to an outdoor space, which could be private or shared.
- Yes
- ACCESSIBILITYHow a property has been adapted to meet the needs of vulnerable or disabled individuals.Read more about accessibility in our glossary page.
- Ask agent
Walderslade Road, Walderslade
Add an important place to see how long it'd take to get there from our property listings.
__mins driving to your place
Get an instant, personalised result:
- Show sellers you’re serious
- Secure viewings faster with agents
- No impact on your credit score
Your mortgage
Notes
Staying secure when looking for property
Ensure you're up to date with our latest advice on how to avoid fraud or scams when looking for property online.
Visit our security centre to find out moreDisclaimer - Property reference HER1RS1886. The information displayed about this property comprises a property advertisement. Rightmove.co.uk makes no warranty as to the accuracy or completeness of the advertisement or any linked or associated information, and Rightmove has no control over the content. This property advertisement does not constitute property particulars. The information is provided and maintained by Heritage Estates, Southfleet. Please contact the selling agent or developer directly to obtain any information which may be available under the terms of The Energy Performance of Buildings (Certificates and Inspections) (England and Wales) Regulations 2007 or the Home Report if in relation to a residential property in Scotland.
*This is the average speed from the provider with the fastest broadband package available at this postcode. The average speed displayed is based on the download speeds of at least 50% of customers at peak time (8pm to 10pm). Fibre/cable services at the postcode are subject to availability and may differ between properties within a postcode. Speeds can be affected by a range of technical and environmental factors. The speed at the property may be lower than that listed above. You can check the estimated speed and confirm availability to a property prior to purchasing on the broadband provider's website. Providers may increase charges. The information is provided and maintained by Decision Technologies Limited. **This is indicative only and based on a 2-person household with multiple devices and simultaneous usage. Broadband performance is affected by multiple factors including number of occupants and devices, simultaneous usage, router range etc. For more information speak to your broadband provider.
Map data ©OpenStreetMap contributors.






