5 bedroom semi-detached house for sale
Carnarvon Drive,Hayes,UB3 1PU

- PROPERTY TYPE
Semi-Detached
- BEDROOMS
5
- BATHROOMS
2
- SIZE
Ask agent
- TENUREDescribes how you own a property. There are different types of tenure - freehold, leasehold, and commonhold.Read more about tenure in our glossary page.
Freehold
Key features
- 5 Bedroom Semi-Detached
- Potential To Extend (STPP)
- 1550 Sq Ft
- Large Rear Garden
- Really Good Condition
- Driveway For 3 Cars
- Outlet Building With Shower/WC
- Fitted/Sliding Wardrobes In Each Bedroom
- Good Size Rooms
- Ideal Location
Description
Shaws of London are delighted to present this beautifully extended and immaculately maintained five-bedroom semi-detached family home, perfectly situated on the sought-after Carnarvon Drive in South Hayes.
This spacious and versatile property has been thoughtfully designed to accommodate modern family living, offering generous living areas, well-proportioned bedrooms, and the benefit of a summer house with its own shower room.
Property Highlights
Five spacious bedrooms, including a ground floor double with en-suite
Two reception areas, including a 21ft living room
Stunning 22ft open-plan kitchen/dining room with garden views and adjoining utility room
Modern family bathroom, en-suite shower room, and guest WC
Beautifully presented interiors with excellent natural light throughout
Ample off-street parking via paved driveway
Large low-maintenance garden with patio, decking, lawn, and summer house with shower room
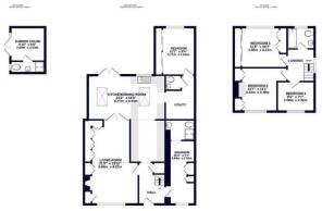
Ground Floor
An inviting entrance hall leads to a bright and expansive 21ft living room, complemented by a superb 22ft open-plan kitchen and dining area with direct garden access. The ground floor also features two generous double bedrooms, one with a stylish en-suite shower room, a guest WC, and a utility room providing additional convenience.
First Floor
Upstairs offers three further well-proportioned bedrooms, including an 11ft master, all served by a modern and well-finished family bathroom.
Outside
The front of the property benefits from a paved driveway providing ample off-street parking for multiple vehicles. The rear garden offers a blend of practicality and relaxation, featuring a spacious patio and decking area ideal for outdoor dining, alongside a lawned garden for low-maintenance living. At the rear, a well-designed summer house with its own shower room offers additional versatile space, perfect for guests, home working, or leisure use.
Location
Carnarvon Drive is a highly regarded residential road in South Hayes, offering excellent access to local amenities including shops, reputable schools, and frequent bus services. Hayes Town Centre and Hayes & Harlington Station (Elizabeth Line) are within easy reach, along with major road links such as the M4, providing direct routes into London and The Home Counties. Heathrow Airport and Stockley Park are also conveniently close by.
- COUNCIL TAXA payment made to your local authority in order to pay for local services like schools, libraries, and refuse collection. The amount you pay depends on the value of the property.Read more about council Tax in our glossary page.
- Ask agent
- PARKINGDetails of how and where vehicles can be parked, and any associated costs.Read more about parking in our glossary page.
- Yes
- GARDENA property has access to an outdoor space, which could be private or shared.
- Yes
- ACCESSIBILITYHow a property has been adapted to meet the needs of vulnerable or disabled individuals.Read more about accessibility in our glossary page.
- Ask agent
Carnarvon Drive,Hayes,UB3 1PU
Add an important place to see how long it'd take to get there from our property listings.
__mins driving to your place
Get an instant, personalised result:
- Show sellers you’re serious
- Secure viewings faster with agents
- No impact on your credit score
Your mortgage
Notes
Staying secure when looking for property
Ensure you're up to date with our latest advice on how to avoid fraud or scams when looking for property online.
Visit our security centre to find out moreDisclaimer - Property reference S1433184. The information displayed about this property comprises a property advertisement. Rightmove.co.uk makes no warranty as to the accuracy or completeness of the advertisement or any linked or associated information, and Rightmove has no control over the content. This property advertisement does not constitute property particulars. The information is provided and maintained by Shaws of London, Hayes. Please contact the selling agent or developer directly to obtain any information which may be available under the terms of The Energy Performance of Buildings (Certificates and Inspections) (England and Wales) Regulations 2007 or the Home Report if in relation to a residential property in Scotland.
*This is the average speed from the provider with the fastest broadband package available at this postcode. The average speed displayed is based on the download speeds of at least 50% of customers at peak time (8pm to 10pm). Fibre/cable services at the postcode are subject to availability and may differ between properties within a postcode. Speeds can be affected by a range of technical and environmental factors. The speed at the property may be lower than that listed above. You can check the estimated speed and confirm availability to a property prior to purchasing on the broadband provider's website. Providers may increase charges. The information is provided and maintained by Decision Technologies Limited. **This is indicative only and based on a 2-person household with multiple devices and simultaneous usage. Broadband performance is affected by multiple factors including number of occupants and devices, simultaneous usage, router range etc. For more information speak to your broadband provider.
Map data ©OpenStreetMap contributors.





