
Mains Of Cultmalundie, Tibbermore, Perth, Perth and Kinross, PH1

- PROPERTY TYPE
Bungalow
- BEDROOMS
4
- BATHROOMS
2
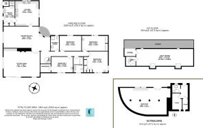
- SIZE
2,350 sq ft
218 sq m
- TENUREDescribes how you own a property. There are different types of tenure - freehold, leasehold, and commonhold.Read more about tenure in our glossary page.
Freehold
Key features
- Four bedroom home requiring modernisation
- Mature garden and far reaching views
- Outbuildings and greenhouse
- 0.5 miles from Gloagburn Farm Shop
- Close to Perth and schools
- About 2 acres
- EPC Rating = E
Description
An exciting renovation opportunity close to Perth
Description
Mains of Cultmalundie was built in 1977 to replace a traditional stone farmhouse. It is a spacious, comfortable and practical home. Having been occupied by one family for almost 50 years, it now requires modernisation and with scope to renovate, extend, reconfigure or even rebuild (subject to obtaining the relevant permissions) Mains of Cultmalundie has potential to be transformed into fabulous modern home in 2 acres of well-established garden, in a highly sought after area.
The accommodation currently consists of four double bedrooms, a sitting room with open fireplace, a large reception hall, dining kitchen, utility room, bathroom and shower room. A spiral stair provides access to a large floored loft, which was previously used as a play room.
Outside
Old stone pillars with wrought iron gates (remnants of the original traditional farmhouse) frame the entrance to the driveway which curves up to a gravel turning circle in front of the house. Lawns surround the house and mature trees provide shelter and privacy. A south facing terrace has in the past been meticulously tended and is planted with a variety of carefully chosen plants. Roses and clematis climb the walls of the house. In the southern corner of the garden a pond is filled with wild plants and a ruined bothy is hidden in woodland on the eastern border of the garden.
Outbuildings
Greenhouse
Stone and brick stores adjoining the neighbouring steading.
Location
Mains of Cultmalundie is situated 7 miles west of Perth. It is surrounded by attractive farmland and has good views across Strathearn to the hills of the north and west. The house is ideally located being well connected to local communities in Crieff and Auchterarder as well as benefiting from amenities in and around Perth.
Perth has a good selection of high street shops, cafes, restaurants and professional services as well as a new museum, a concert hall, theatre, cinema, and several leisure centres. Gleneagles Hotel and Crieff Hydro are both within 15 miles and have superb family-friendly facilities while the surrounding countryside offers plenty of opportunities for golf, fishing, cycling, hill walking and country sports. Gloagburn Farm Shop and restaurant is half a mile from Mains of Cultmalundie and is an excellent source of local produce.
Edinburgh (48 miles), Stirling (31 miles) and Dundee (28 miles) are within commuting distance and the house is particularly well placed for schooling with a local primary school in Madderty and a choice of secondary schooling in Perth. For independent education Strathallan, Glenalmond College, Morrisons Academy, Craigclowan (prep), and Ardvreck (prep) are all within 15 miles.
All distances and travel times are approximate.
Square Footage: 2,350 sq ft
Acreage: 2 Acres
Directions
From the Perth ring road head west on the A85 (towards Crieff). After ¾ mile, at Huntingtower, turn left onto a minor road signposted for Tibbermore and Madderty. The entrance to Mains of Cultmalundie is on the left hand side after 2.3 miles, having passed Gloagburn Farm shop on the right.
Additional Info
Viewings -strictly by appointment with Savills - .
Services - mains water and electricity. Private drainage. Oil fired central heating.
Perth and Kinross Council tax band F
Fixtures & Fittings - the house will be sold as seen.
Photos taken July 2025
Servitude rights, burdens and wayleaves - the property is sold subject to and with the benefit of all servitude rights, burdens, reservations and wayleaves, including rights of access and rights of way, whether public or private, light, support, drainage, water and wayleaves for masts, pylons, stays, cable, drains and water, gas and other pipes, whether contained in the Title Deeds or informally constituted and whether referred to in the General Remarks and Stipulations or not. The Purchaser(s) will be held to have satisfied himself as to the nature of all such servitude rights and others.
Offers - offers, in Scottish legal form, must be submitted by your solicitor to the Selling Agents. It is intended to set a closing date but the seller reserves the right to negotiate a sale with a single party. All genuinely interested parties are advised to instruct their solicitor to note their interest with the Selling Agents immediately after inspection.
Deposit - a deposit of 10% of the purchase price may be required. It will be paid within 7 days of the conclusion of Missives. The deposit will be non-returnable in the event of the Purchaser(s) failing to complete the sale for reasons not attributable to the Seller or his agents.
IMPORTANT NOTICE - Savills, their clients and any joint agents give notice that:
1. They are not authorised to make or give any representations or warranties in relation to the property either here or elsewhere, either on their own behalf or on behalf of their client or otherwise. They assume no responsibility for any statement that may be made in these particulars. These particulars do not form part of any offer or contract and must not be relied upon as statements or representations of fact.
2. Any areas, measurements or distances are approximate. The text, photographs and plans are for guidance only and are not necessarily comprehensive. It should not be assumed that the property has all necessary planning, building regulation or other consents and Savills have not tested any services, equipment or facilities. Purchasers must satisfy themselves by inspection or otherwise.
Brochures
Web Details- COUNCIL TAXA payment made to your local authority in order to pay for local services like schools, libraries, and refuse collection. The amount you pay depends on the value of the property.Read more about council Tax in our glossary page.
- Band: F
- PARKINGDetails of how and where vehicles can be parked, and any associated costs.Read more about parking in our glossary page.
- Yes
- GARDENA property has access to an outdoor space, which could be private or shared.
- Yes
- ACCESSIBILITYHow a property has been adapted to meet the needs of vulnerable or disabled individuals.Read more about accessibility in our glossary page.
- Ask agent
Mains Of Cultmalundie, Tibbermore, Perth, Perth and Kinross, PH1
Add an important place to see how long it'd take to get there from our property listings.
__mins driving to your place
Get an instant, personalised result:
- Show sellers you’re serious
- Secure viewings faster with agents
- No impact on your credit score
Your mortgage
Notes
Staying secure when looking for property
Ensure you're up to date with our latest advice on how to avoid fraud or scams when looking for property online.
Visit our security centre to find out moreDisclaimer - Property reference PES250091. The information displayed about this property comprises a property advertisement. Rightmove.co.uk makes no warranty as to the accuracy or completeness of the advertisement or any linked or associated information, and Rightmove has no control over the content. This property advertisement does not constitute property particulars. The information is provided and maintained by Savills Country Houses, Perth. Please contact the selling agent or developer directly to obtain any information which may be available under the terms of The Energy Performance of Buildings (Certificates and Inspections) (England and Wales) Regulations 2007 or the Home Report if in relation to a residential property in Scotland.
*This is the average speed from the provider with the fastest broadband package available at this postcode. The average speed displayed is based on the download speeds of at least 50% of customers at peak time (8pm to 10pm). Fibre/cable services at the postcode are subject to availability and may differ between properties within a postcode. Speeds can be affected by a range of technical and environmental factors. The speed at the property may be lower than that listed above. You can check the estimated speed and confirm availability to a property prior to purchasing on the broadband provider's website. Providers may increase charges. The information is provided and maintained by Decision Technologies Limited. **This is indicative only and based on a 2-person household with multiple devices and simultaneous usage. Broadband performance is affected by multiple factors including number of occupants and devices, simultaneous usage, router range etc. For more information speak to your broadband provider.
Map data ©OpenStreetMap contributors.






