
3 bedroom semi-detached house for sale
The Esplanade, Fleetwood, FY7

- PROPERTY TYPE
Semi-Detached
- BEDROOMS
3
- BATHROOMS
1
- SIZE
1,496 sq ft
139 sq m
- TENUREDescribes how you own a property. There are different types of tenure - freehold, leasehold, and commonhold.Read more about tenure in our glossary page.
Freehold
Key features
- Three Bedrooms.
- STUNNING Family Bath And Shower Room
- Off Road Parking Plus Garage,
- IMMACULATE And Ready To Walk Into
- **Well Maintained And Beautifully Presented Throughout**
- **Promenade Location - Stunning Sea Views**
- TWO Reception Rooms PLUS Kitchen / Dining Room
- First Floor UTILITY ROOM
Description
This unique family home offers a modern and extremely spacious internal footprint, has been exceptionally well maintained and updated throughout with consideration of the propertys original features. Briefly comprising striking entrance hallway with stairs to the first floor landing, feature stained glass windows, wood floor and original doors that lead off to the lounge, family / dining room, kitchen / dining room and generous under stairs storage / cloakroom area. There are three well proportioned bedrooms, two with uninterrupted sea views, a stunning new family bath and shower room with additional toilet adjacent with utility room. Externally this property boasts off road parking with detached garage and easy to maintain enclosed rear garden.
A well maintained property with serviced Worcester Bosch boiler (2025), modern log burners, NEW family bathroom in 2024. The loft is part boarded with pull down ladders and there is a light.
EARLY INTERNAL VIEWING ESSENTIAL TO AVOID DISAPPOINTMENT!
Call Unique On Today To Secure Your Viewing!
EPC: D
Council Tax: D
Internal Living Space: 139sqm
Tenure: Freehold, to be confirmed by your legal representative.
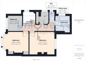
Entrance Hallway - 4.49 x 1.87 - at max m (14′9″ x 6′2″ ft)
Welcoming, light and spacious entrance hallway with attractive wood floor, feature stained glass windows 'in' and surrounding the front door with with original stained glass window that has been encapsulated into a UPVC unit half way up the stairs. A real focal point and perfect introduction to this stunning family home.
Living Room - 3.84 x 3.30 - at max m (12′7″ x 10′10″ ft)
Beautifully presented, spacious reception room to the front elevation with property feature high ceiling, deep coving and skirting board, large square bay, boasting 'sash windows' and feature stained glass with enviable views of the promenade directly in front. Modern fire surround with mantle over, stone tile hearth and cast iron multi fuel burner. Fitted shelving into the chimney recesses.
Dining / Family Room - 4.58 x 3.70 - at max m (15′0″ x 12′2″ ft)
A second beautiful reception room with panoramic UPVC double glazed window that allows for natural light to fill and warm the room, natural wood floorboards and striking fireplace with wood surround and mantle over tiled backing and granite hearth. Ample floor space for soft seating and family size dining table and chairs.
Kitchen / Dining Room - 4.88 x 2.35 - at max m (16′0″ x 7′9″ ft)
Beautiful kitchen and family dining room with wood floor, feature multi fuel burner, UPVC double glazed square bay window with fitted shutters and 'column style' radiator. The fitted kitchen boasts a wide range of wall mounted, full length and fitted base units with extensive work surface area, Belfast sink. Integrated dishwasher and fridge freezer. Freestanding Range cooker with extractor fan over. UPVC door provides access to the rear garden.
First Floor Landing - 4.93 x 0.92 - at max m (16′2″ x 3′0″ ft)
STRIKING first floor landing with feature stained glass windows, the landing one is the original that has been encapsulated into a UPVC unit, retaining the original charm of the property. Original doors lead off to three bedrooms, the new bath and shower room with separate toilet adjacent and welcome utility room.
Bedroom - 4.17 x 3.15 - at max m (13′8″ x 10′4″ ft)
An absolutely stunning room! With decorative cast iron fire surround, full length built in wardrobes, natural wood floor and what has to be the most captivating view of the promenade, sea, Morecambe Bay and the Lake District beyond.
Bedroom - 3.99 x 3.72 - at max m (13′1″ x 12′2″ ft)
Light, bright, spacious and beautifully presented second bedroom with decorative cast iron fireplace and large UPVC double glazed window that fills the room with natural light. Rear garden views.
Bedroom - 2.39 x 2.39 - at max m (7′10″ x 7′10″ ft)
Well proportioned third bedroom with ample floor space for a bed and freestanding furniture! Enviable, uninterrupted views of the promenade and beyond.
Family Bath & Shower Room (2024) - 2.63 x 2.33 - at max m (8′8″ x 7′8″ ft)
Simply beautiful family bath and shower room briefly comprising free standing 'roll-top' bath with floor standing chrome taps with hand held shower head seated on a telephone style rest. Double shower cubicle with mains shower, square pedestal hand wash basin and low flush toilet. Feature chrome and column style wall mounted radiator /towel rail. Wood floor, opaque UPVC double glazed window with fitted horizontal blinds.
Utility Room - 2.00 x 1.44 - at max m (6′7″ x 4′9″ ft)
Ideally located on the first floor, this welcome utility room boasts double airing / storage cupboard, white 'ladder style' radiator, plumbing for washing machine with space for tumble dryer. Work surface area.
Separate Toilet - 1.36 x 0.73 - at max m (4′6″ x 2′5″ ft)
Low flush toilet.
External Areas
Detached garage with power assisted door, lighting and power points with gated access to the bock paved driveway that provides parking for several cars. Established raised planted beds with low red brick wall to the front boundary. The rear garden is private and paved making it easy to maintain with elevated seating area, established planted borders, a gate leads to a discreet refuse storage area with gate to the rear elevation. An enclosed sheltered area, perfect for growing beds.
Brochures
Property Brochure- COUNCIL TAXA payment made to your local authority in order to pay for local services like schools, libraries, and refuse collection. The amount you pay depends on the value of the property.Read more about council Tax in our glossary page.
- Band: D
- PARKINGDetails of how and where vehicles can be parked, and any associated costs.Read more about parking in our glossary page.
- Yes
- GARDENA property has access to an outdoor space, which could be private or shared.
- Yes
- ACCESSIBILITYHow a property has been adapted to meet the needs of vulnerable or disabled individuals.Read more about accessibility in our glossary page.
- Ask agent
The Esplanade, Fleetwood, FY7
Add an important place to see how long it'd take to get there from our property listings.
__mins driving to your place
Get an instant, personalised result:
- Show sellers you’re serious
- Secure viewings faster with agents
- No impact on your credit score
Your mortgage
Notes
Staying secure when looking for property
Ensure you're up to date with our latest advice on how to avoid fraud or scams when looking for property online.
Visit our security centre to find out moreDisclaimer - Property reference 9446. The information displayed about this property comprises a property advertisement. Rightmove.co.uk makes no warranty as to the accuracy or completeness of the advertisement or any linked or associated information, and Rightmove has no control over the content. This property advertisement does not constitute property particulars. The information is provided and maintained by Unique Estate Agency Ltd, Fleetwood. Please contact the selling agent or developer directly to obtain any information which may be available under the terms of The Energy Performance of Buildings (Certificates and Inspections) (England and Wales) Regulations 2007 or the Home Report if in relation to a residential property in Scotland.
*This is the average speed from the provider with the fastest broadband package available at this postcode. The average speed displayed is based on the download speeds of at least 50% of customers at peak time (8pm to 10pm). Fibre/cable services at the postcode are subject to availability and may differ between properties within a postcode. Speeds can be affected by a range of technical and environmental factors. The speed at the property may be lower than that listed above. You can check the estimated speed and confirm availability to a property prior to purchasing on the broadband provider's website. Providers may increase charges. The information is provided and maintained by Decision Technologies Limited. **This is indicative only and based on a 2-person household with multiple devices and simultaneous usage. Broadband performance is affected by multiple factors including number of occupants and devices, simultaneous usage, router range etc. For more information speak to your broadband provider.
Map data ©OpenStreetMap contributors.







