
Sugarloaf Cottage

- PROPERTY TYPE
Semi-Detached
- BEDROOMS
2
- BATHROOMS
1
- SIZE
764 sq ft
71 sq m
- TENUREDescribes how you own a property. There are different types of tenure - freehold, leasehold, and commonhold.Read more about tenure in our glossary page.
Freehold
Key features
- Semi-Detached Cottage
- Desirable location
- Wealth of original features
- Two Double Bedrooms
- 2 Reception rooms
- Bathrooom
- Detached garage
- Enclosed rear garden
- Freehold
- Viewings Highly Recommended
Description
Council Tax Band: B (Cheshire East)
Tenure: Freehold
Access
Approached through electric double gates leading to the side of the property over a gravelled driveway in turn leading to the double glazed, composite entrance door which leads into:
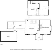
Reception Hall
With quarry tiled flooring, beamed ceiling, uPvc double glazed window to side elevation and opening into:
Sitting Room
w: 4.66m x l: 4.77m (w: 15' 3" x l: 15' 8")
With oak flooring and beamed ceiling with a feature fireplace housing a multi fuel burner and having wooden mantel over. uPvc Georgian bar double glazed windows to side and front elevations. double panelled radiator and door through to:
Dining room
w: 4.78m x l: 4.77m (w: 15' 8" x l: 15' 8")
Generous reception room with beamed ceiling andfeature fireplace with decorative tiled surround and wooden mantel over, uPvc double glazed, Georgian bar windows to front and side elevations, double panelled radiator and quarry tiled flooring. Stairs rising to first floor landing. Oak panelled door opening into:
Kitchen
w: 2.18m x l: 2.94m (w: 7' 2" x l: 9' 8")
Fitted with a range of Shaker style, wall, base and drawer units with wooden work surface over incorporating a one and a half bowl, single drainer porcelain sink unit with mixer tap and complimentary splash back tiling, built in 4 ring gas hob with electric double oven below and extractor over, integrated fridge, integrated freezer, space and plumbing for dishwasher, integrated winerack and double glazed, Velux style roof light, uPvc double glazed, Georgian bar window to front elevation, tiled flooring. Opening into:
Rear hall
Having uPvc double glazed, composite entrance door to front elevation, built in storage cupboard with power and plumbing and space for washing machine and space for tumble dryer. Door into:
Bathroom
w: 1.88m x l: 2.18m (w: 6' 2" x l: 7' 2")
Fitted with a three piece suite comprising panelled bath with shower screen and shower having rainfall and hand held shower head, vanity unit wash hand basin with mixer tap and complimentary tiling with storage drawers below, low level, push button W.C.,With uPvc double glazed, frosted window to the front elevation,, tiled flooring continued through from the kitchen and rear hallway. Chrome, heated towel rail and complimentary tiling.
Landing
With doors off to both bedrooms.
Bedroom 1
w: 3.28m x l: 4.77m (w: 10' 9" x l: 15' 8")
Generous double room fitted with a double wardrobe with mirrored sliding doors, loft access point. uPvc double glazed Georgian bar window to side and front elevations. Double panelled radiator.
Bedroom 2
w: 3.68m x l: 3.71m (w: 12' 1" x l: 12' 2")
Another double room dual aspect with uPvc double glazed Georgian bar windows to front and side elevations, single panel radiator. 3 Storage cupboards, one of which houses the central heating boiler. Fitted wardrobe.
Externally
Double electric gates secure the property and lead through to the gravelled driveway which is hedged on all boundaries with well stocked borders housing a variety of trees, shrubs and plants. The detached single garage has an up and over door, power and lighting, side access door. and double glazed window to the rear. To the side of the garage a built in storage shed with sink, hot and cold water supply/power sockets and lighting. The is also a dog shower washing area with hot water supply. An access gate leads to the front of the property. Outside tap, A decked seating area provides ample space for outside furniture and a further, stone paved patio provides a further entertaining area. to the side and rear of the property is a further gravelled garden.
Energy Performance
The current rating is 54 with a potential of 69.
About Shavington
Shavington is a large village to the south of Crewe and east of Nantwich with a wide range of amenities and excellent commuter links but having the Cheshire countryside only moments away. The village offers an array of amenities including pubs and restaurants, convenience shops, primary and secondary schools, leisure centre, medical practice and pharmacy. There are excellent road links to the larger towns of Nantwich, Crewe and Newcastle-under-Lyme and junction 16 of the M6 is only 6 miles away providing access to all the major cities. The major train station of Crewe is just 2.8 miles (approx.) away and the nearest airports are Manchester and Liverpool to the north and Birmingham to the south.
Viewings
Viewings are strictly by appointment only. Please call or email the office to arrange. Thank you.
Looking to sell?
If you are thinking of selling, please call or email the office to arrange a free Market Appraisal. Thank you.
Brochures
Brochure- COUNCIL TAXA payment made to your local authority in order to pay for local services like schools, libraries, and refuse collection. The amount you pay depends on the value of the property.Read more about council Tax in our glossary page.
- Band: B
- PARKINGDetails of how and where vehicles can be parked, and any associated costs.Read more about parking in our glossary page.
- Garage,Driveway
- GARDENA property has access to an outdoor space, which could be private or shared.
- Front garden,Private garden,Enclosed garden,Rear garden
- ACCESSIBILITYHow a property has been adapted to meet the needs of vulnerable or disabled individuals.Read more about accessibility in our glossary page.
- Ask agent
Sugarloaf Cottage
Add an important place to see how long it'd take to get there from our property listings.
__mins driving to your place
Get an instant, personalised result:
- Show sellers you’re serious
- Secure viewings faster with agents
- No impact on your credit score
Affordability
Notes
Staying secure when looking for property
Ensure you're up to date with our latest advice on how to avoid fraud or scams when looking for property online.
Visit our security centre to find out moreDisclaimer - Property reference RS0664. The information displayed about this property comprises a property advertisement. Rightmove.co.uk makes no warranty as to the accuracy or completeness of the advertisement or any linked or associated information, and Rightmove has no control over the content. This property advertisement does not constitute property particulars. The information is provided and maintained by Wheatcroft & Lloyd, Sandbach. Please contact the selling agent or developer directly to obtain any information which may be available under the terms of The Energy Performance of Buildings (Certificates and Inspections) (England and Wales) Regulations 2007 or the Home Report if in relation to a residential property in Scotland.
*This is the average speed from the provider with the fastest broadband package available at this postcode. The average speed displayed is based on the download speeds of at least 50% of customers at peak time (8pm to 10pm). Fibre/cable services at the postcode are subject to availability and may differ between properties within a postcode. Speeds can be affected by a range of technical and environmental factors. The speed at the property may be lower than that listed above. You can check the estimated speed and confirm availability to a property prior to purchasing on the broadband provider's website. Providers may increase charges. The information is provided and maintained by Decision Technologies Limited. **This is indicative only and based on a 2-person household with multiple devices and simultaneous usage. Broadband performance is affected by multiple factors including number of occupants and devices, simultaneous usage, router range etc. For more information speak to your broadband provider.
Map data ©OpenStreetMap contributors.






