Charles Court, Derrington Avenue, Crewe

- PROPERTY TYPE
End of Terrace
- BEDROOMS
3
- BATHROOMS
3
- SIZE
925 sq ft
86 sq m
- TENUREDescribes how you own a property. There are different types of tenure - freehold, leasehold, and commonhold.Read more about tenure in our glossary page.
Freehold
Key features
- Spacious Three-Storey End Town House
- Three Bedrooms with ensuite to the master
- First Floor Kitchen/Diner, Living Room & Guest WC
- Private Side Garden & Allocated Parking Space
- Recently Modernised & Tastefully Decorated (16 months ago)
- Can be sold as seen in pictures, ready to move into
- Excellent Location – 10 Minutes’ Walk to Crewe Train Station & Town Centre
- Offered with No Chain & Vacant on Completion
- Call now quoting reference SL0126
Description
This row of five houses was converted from a factory building in 2006, the end terrace is now a well-presented three-bedroom town house offering generous and versatile living across three storeys, making it ideal for families, professionals, or investors. Recently redecorated and modernised just 16 months ago, the property is move-in ready.
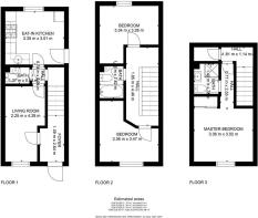
The accommodation is arranged as follows:
- First Floor: A bright and spacious living room, contemporary kitchen/diner with space for family dining, and a guest WC.
- Second Floor: Two well-proportioned double bedrooms served by a stylish family bathroom.
- Top Floor: A private master suite with en-suite shower room and a useful storage cupboard.
Externally, the home benefits from a private side garden and an allocated parking space to the front.
Perfectly positioned, the property is within a 10-minute walk of Crewe train station and the town centre, providing excellent transport links and easy access to a range of local amenities.
Offered with no onward chain and available as vacant upon completion, this property represents a fantastic opportunity for buyers seeking a modern, low-maintenance home in a highly convenient location.
Being sold chain free and vacant possession.
Tenure - Freehold
Call now and quote reference SL0126 to get more information.
In accordance with the estate agents act 1979, this property is being marketed and sold by the owner of the property
- COUNCIL TAXA payment made to your local authority in order to pay for local services like schools, libraries, and refuse collection. The amount you pay depends on the value of the property.Read more about council Tax in our glossary page.
- Band: A
- PARKINGDetails of how and where vehicles can be parked, and any associated costs.Read more about parking in our glossary page.
- Off street,Allocated
- GARDENA property has access to an outdoor space, which could be private or shared.
- Private garden
- ACCESSIBILITYHow a property has been adapted to meet the needs of vulnerable or disabled individuals.Read more about accessibility in our glossary page.
- Ask agent
Charles Court, Derrington Avenue, Crewe
Add an important place to see how long it'd take to get there from our property listings.
__mins driving to your place
Get an instant, personalised result:
- Show sellers you’re serious
- Secure viewings faster with agents
- No impact on your credit score
Affordability
Notes
Staying secure when looking for property
Ensure you're up to date with our latest advice on how to avoid fraud or scams when looking for property online.
Visit our security centre to find out moreDisclaimer - Property reference S1434903. The information displayed about this property comprises a property advertisement. Rightmove.co.uk makes no warranty as to the accuracy or completeness of the advertisement or any linked or associated information, and Rightmove has no control over the content. This property advertisement does not constitute property particulars. The information is provided and maintained by eXp UK, North West. Please contact the selling agent or developer directly to obtain any information which may be available under the terms of The Energy Performance of Buildings (Certificates and Inspections) (England and Wales) Regulations 2007 or the Home Report if in relation to a residential property in Scotland.
*This is the average speed from the provider with the fastest broadband package available at this postcode. The average speed displayed is based on the download speeds of at least 50% of customers at peak time (8pm to 10pm). Fibre/cable services at the postcode are subject to availability and may differ between properties within a postcode. Speeds can be affected by a range of technical and environmental factors. The speed at the property may be lower than that listed above. You can check the estimated speed and confirm availability to a property prior to purchasing on the broadband provider's website. Providers may increase charges. The information is provided and maintained by Decision Technologies Limited. **This is indicative only and based on a 2-person household with multiple devices and simultaneous usage. Broadband performance is affected by multiple factors including number of occupants and devices, simultaneous usage, router range etc. For more information speak to your broadband provider.
Map data ©OpenStreetMap contributors.




