Farningham Hill Road, DA4 0JR
- SIZE
Ask agent
- SECTOR
Plot for sale
Key features
- Full planning permission
- Plot size circa 0.45 acres
- House Size: 1,658 sqft
- Commission a thermally efficient, modern home
- Set within a mature garden
- Private access from Farningham Hill Road
- Design by Smart Architecture
Description
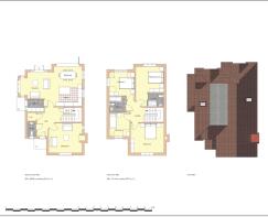
Designed by Smart Architecture, the thoughtfully planned 1,658 sqft home has been designed to preserve the setting and special character of the location, and whilst it will appear traditional in design, it will be very energy and thermally efficient.
The ground floor layout allows for a light-filled, open-plan kitchen, dining and snug area, ideal for entertaining and everyday family life, whilst the first-floor plans feature four generously sized bedrooms, including a master bedroom with a private en-suite with a spacious landing area.
Full planning details under reference 24/02792/FUL can be found on the Sevenoaks Council website.
Location
The River Darent winds through Farningham village and is bordered by an 18th century watermill and long row of conservation-protected listed buildings and cottage style homes.
For nature and history lovers, Farningham Woods opened by Sir David Attenborough in 1986, Eynsford Castle and Lullingstone World Gardens, are all within close reach.
Local shops, three welcoming pubs and restaurants are all nestled within the village itself, and larger supermarkets and more varied retail outlets can be found in nearby Swanley or Sevenoaks. Bluewater shopping centre is a short drive away too.
The nearest train station is Eynsford, an approximate 5-minute drive, offering regular services to London Blackfriars and Sevenoaks. Swanley station, approximately 10 minutes' drive, also provides fast trains to London Victoria in under 30 minutes.
The surrounding area boasts an excellent selection of state primary and secondary schools, including The Anthony Roper Primary School, Horton Kirby Church of England, Dartford Grammar for Boys and Girls, both outstanding, and Townley Grammar. Independent options include Sevenoaks School, top tiered, St Olave's and St Saviour's Grammar for boys and Kent College.
Build Options
The plot presents an exciting opportunity to design and manage the construction of your dream home.
If required, we can introduce the buyer to the architect, planning consultant, plus several reputable, local contractors to quote on any required works. Most of self-build buyers choose to work with a main contractor on a fixed-price build contract, with monthly payments in arrears and all works overseen by a qualified chartered surveyor.
Please note that site visits are available strictly by appointment only.
Disclaimer
Whilst every effort has been made to ensure accuracy, all information is subject to change without notice and does not form part of a contract of sale. Plans are for identification only and buyers should verify boundary locations before making an offer.
Plot size figures are for guidance only and should not be relied upon as factual representations. Buyers must confirm the area through inspection.
Farningham Hill Road, DA4 0JR
NEAREST STATIONS
Distances are straight line measurements from the centre of the postcode- Swanley Station1.5 miles
- Eynsford Station1.6 miles
- Farningham Road Station1.7 miles
Notes
Disclaimer - Property reference Wildacres. The information displayed about this property comprises a property advertisement. Rightmove.co.uk makes no warranty as to the accuracy or completeness of the advertisement or any linked or associated information, and Rightmove has no control over the content. This property advertisement does not constitute property particulars. The information is provided and maintained by The Land Agency Limited, Hastings. Please contact the selling agent or developer directly to obtain any information which may be available under the terms of The Energy Performance of Buildings (Certificates and Inspections) (England and Wales) Regulations 2007 or the Home Report if in relation to a residential property in Scotland.
Map data ©OpenStreetMap contributors.





