
2 bedroom bungalow for sale
Shoreswood, Bolton, Greater Manchester, BL1 7DD

- PROPERTY TYPE
Bungalow
- BEDROOMS
2
- BATHROOMS
1
- SIZE
Ask agent
- TENUREDescribes how you own a property. There are different types of tenure - freehold, leasehold, and commonhold.Read more about tenure in our glossary page.
Freehold
Key features
- Beautifully Presented Detached True Bungalow
- Fantastc Sharples Location
- A Perfect Downsize
- Two Bedrooms, Modern Kitchen & Bathroom
Description
Tastefully decorated and thoughtfully designed by the current owners, this detached bungalow flows throughout with a neutral and crisp finish that will feel like home the second you arrive. Unlike many other bungalows that come to the market, number 23 can be enjoyed immediately.
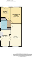
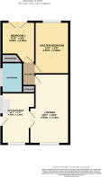
A bright and airy kitchen/dining room is on offer which flows elegantly into a spacious lounge with plenty of light. A three-piece shower room splits the hallway where two double bedrooms can found at the rear of the property.
If you're looking to downsize and value space, convenience and quality then this could be your next home.
Shoreswood is a quiet, well regarded and equally popular family friendly cul-de-sac located just off Belmont Road in the Sharples area of Bolton. A number of amenities are close by such as leisure facilities, shops, supermarkets and a great selection of nurseries and schools.
The accommodation in brief comprises; entrance door leading to the kitchen area which has a combination of base and eye level fitted units and ample space to accommodate a dining table. Double doors lead to a substantial lounge which is nice and private. A door leads to an inner hall which provides access to a four-piece shower room and two bedrooms. Externally, there's a driveway to the front which leads to a single garage, at the rear is a low maintenance tiered garden which is private and a complete suntrap in the warmer months.
Tenure
Freehold
Local Authority
Bolton Council Band C Annual Price: £2015
Mobile coverage
EE Vodafone Three O2
Broadband
Basic 16 Mbps Superfast 80 Mbps Ultrafast 1800 Mbps
Satellite / Fibre TV Availability
BT Sky Virgin
ID CHECKS
In accordance with our regulatory obligations, we are required to carry out Anti-Money Laundering (AML) checks on all relevant individuals. A fee of £25 per person will be charged to cover the cost of conducting these checks. This fee is non-refundable.
Brochures
Particulars- COUNCIL TAXA payment made to your local authority in order to pay for local services like schools, libraries, and refuse collection. The amount you pay depends on the value of the property.Read more about council Tax in our glossary page.
- Band: C
- PARKINGDetails of how and where vehicles can be parked, and any associated costs.Read more about parking in our glossary page.
- Yes
- GARDENA property has access to an outdoor space, which could be private or shared.
- Yes
- ACCESSIBILITYHow a property has been adapted to meet the needs of vulnerable or disabled individuals.Read more about accessibility in our glossary page.
- Ask agent
Shoreswood, Bolton, Greater Manchester, BL1 7DD
Add an important place to see how long it'd take to get there from our property listings.
__mins driving to your place
Get an instant, personalised result:
- Show sellers you’re serious
- Secure viewings faster with agents
- No impact on your credit score
Your mortgage
Notes
Staying secure when looking for property
Ensure you're up to date with our latest advice on how to avoid fraud or scams when looking for property online.
Visit our security centre to find out moreDisclaimer - Property reference HWD250219. The information displayed about this property comprises a property advertisement. Rightmove.co.uk makes no warranty as to the accuracy or completeness of the advertisement or any linked or associated information, and Rightmove has no control over the content. This property advertisement does not constitute property particulars. The information is provided and maintained by Miller Metcalfe, Bolton. Please contact the selling agent or developer directly to obtain any information which may be available under the terms of The Energy Performance of Buildings (Certificates and Inspections) (England and Wales) Regulations 2007 or the Home Report if in relation to a residential property in Scotland.
*This is the average speed from the provider with the fastest broadband package available at this postcode. The average speed displayed is based on the download speeds of at least 50% of customers at peak time (8pm to 10pm). Fibre/cable services at the postcode are subject to availability and may differ between properties within a postcode. Speeds can be affected by a range of technical and environmental factors. The speed at the property may be lower than that listed above. You can check the estimated speed and confirm availability to a property prior to purchasing on the broadband provider's website. Providers may increase charges. The information is provided and maintained by Decision Technologies Limited. **This is indicative only and based on a 2-person household with multiple devices and simultaneous usage. Broadband performance is affected by multiple factors including number of occupants and devices, simultaneous usage, router range etc. For more information speak to your broadband provider.
Map data ©OpenStreetMap contributors.








