
38-44 London Road, Purbrook, Hampshire, PO7 5GL

Letting details
- Let available date:
- Now
- Deposit:
- Ask agentA deposit provides security for a landlord against damage, or unpaid rent by a tenant.Read more about deposit in our glossary page.
- Furnish type:
- Unfurnished
- Council Tax:
- Ask agent
- PROPERTY TYPE
Retirement Property
- BEDROOMS
2
- SIZE
818 sq ft
76 sq m
Key features
- A stone's throw away from local shops and amenities
- Good transport links into Portsmouth city centre
- City centre amenities include Gun Wharf Quays shopping centre
- Just over 2 miles from the town centre of Waterlooville
- Close to shops including a coffee shop, co-op, opticians and pharmacy
- Purbrook Heath provides ample green space as well as sports grounds
- Patio
- North West facing
- Wheelchair access
- Lifts to all floors
Description
With excellent attention to detail, McCarthy & Stone Retirement Living homes combine the best of luxury living with spacious, low maintenance apartments. The Purbrook development includes all of the best features of these award winning homes with 25 one and 21 two bedroom apartments exclusively designed for over 60s.
Located just over 2 miles from the town centre of Waterlooville and in close proximity to the city of Portsmouth, the village of Purbrook offers a fantastic environment for peaceful living.
This beautifully presented apartment offers stylish and comfortable retirement living within a welcoming community setting. Thoughtfully designed throughout, the apartment features a bright and spacious living area, a modern fitted kitchen with integrated appliances, and well-proportioned bedrooms with fitted storage.
Homeowners can enjoy beautifully maintained communal areas, landscaped gardens and a friendly social atmosphere, with the added reassurance of an on-site team for extra peace of mind. Conveniently located close to local shops, everyday amenities and transport links, this apartment offers the perfect balance of independence, comfort and community living.
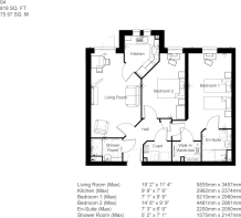
Apartment 4 is a spacious two-bedroom ground floor home with a north-west aspect and a patio.
The bright living and dining room features a glazed patio door, a modern feature fireplace, TV and Sky+ connectivity, and direct access to the contemporary fitted kitchen with integrated appliances.
The master bedroom includes a walk-in wardrobe and a private en-suite shower room, while the second bedroom offers great flexibility for guests or hobbies. The main shower room is stylishly finished with level access shower, vanity unit and heated towel rail.
A generous hallway includes a large walk-in storage cupboard, secure entry system and a 24-hour emergency response system, combining comfort, convenience and peace of mind in a sought-after ground floor setting.
This property is let unfurnished.
- Council tax band: C
- Reservation deposit: £150 (to be offset against your initial payment and fully refundable should your Tenancy not proceed)
- Security deposit: £2,481 (equivalent to 5 weeks rent of the apartment only, excludes any parking space rent)
Brochures
Shilling Place brochure- COUNCIL TAXA payment made to your local authority in order to pay for local services like schools, libraries, and refuse collection. The amount you pay depends on the value of the property.Read more about council Tax in our glossary page.
- Band: C
- PARKINGDetails of how and where vehicles can be parked, and any associated costs.Read more about parking in our glossary page.
- Yes
- GARDENA property has access to an outdoor space, which could be private or shared.
- Patio
- ACCESSIBILITYHow a property has been adapted to meet the needs of vulnerable or disabled individuals.Read more about accessibility in our glossary page.
- Ask agent
38-44 London Road, Purbrook, Hampshire, PO7 5GL
Add an important place to see how long it'd take to get there from our property listings.
__mins driving to your place
Notes
Staying secure when looking for property
Ensure you're up to date with our latest advice on how to avoid fraud or scams when looking for property online.
Visit our security centre to find out moreDisclaimer - Property reference a230O000002iJT1QAM. The information displayed about this property comprises a property advertisement. Rightmove.co.uk makes no warranty as to the accuracy or completeness of the advertisement or any linked or associated information, and Rightmove has no control over the content. This property advertisement does not constitute property particulars. The information is provided and maintained by McCarthy & Stone, Nationwide. Please contact the selling agent or developer directly to obtain any information which may be available under the terms of The Energy Performance of Buildings (Certificates and Inspections) (England and Wales) Regulations 2007 or the Home Report if in relation to a residential property in Scotland.
*This is the average speed from the provider with the fastest broadband package available at this postcode. The average speed displayed is based on the download speeds of at least 50% of customers at peak time (8pm to 10pm). Fibre/cable services at the postcode are subject to availability and may differ between properties within a postcode. Speeds can be affected by a range of technical and environmental factors. The speed at the property may be lower than that listed above. You can check the estimated speed and confirm availability to a property prior to purchasing on the broadband provider's website. Providers may increase charges. The information is provided and maintained by Decision Technologies Limited. **This is indicative only and based on a 2-person household with multiple devices and simultaneous usage. Broadband performance is affected by multiple factors including number of occupants and devices, simultaneous usage, router range etc. For more information speak to your broadband provider.
Map data ©OpenStreetMap contributors.





