
3 bedroom semi-detached house for sale
Treacle Avenue, Macclesfield, SK11

- PROPERTY TYPE
Semi-Detached
- BEDROOMS
3
- BATHROOMS
2
- SIZE
Ask agent
- TENUREDescribes how you own a property. There are different types of tenure - freehold, leasehold, and commonhold.Read more about tenure in our glossary page.
Freehold
Key features
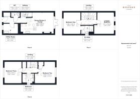
- Three-storey flexible layout
- Contemporary dining kitchen with garden access
- Principal bedroom with en-suite
- Option for fourth bedroom or lounge
- Views from top floor windows
- Driveway Parking
Description
Set on Treacle Avenue in Macclesfield, this modern three-storey home offers flexible living with up to four bedrooms. A contemporary dining kitchen opens onto the garden, complemented by practical additions including a utility, study, and ground floor WC. The principal bedroom enjoys its own en-suite, with two further bedrooms and a family bathroom completing the upper floors.
Benefitting from open views from the top floor, the property combines everyday convenience with thoughtful design. With driveway parking, an enclosed rear garden, and easy access to the town and train station, it makes an excellent choice for modern family life.
EPC rating: B. Tenure: Freehold,Front Elevation
Driveway parking for two to three vehicles, lawn and hedging.
Entrance Hallway
With welcome matting and laminate flooring. Includes storage cupboard, central heating radiator, and access to the dining kitchen and lounge, utility/study, and WC.
Dining Kitchen & Lounge
A contemporary open-plan living space fitted with a range of modern units. Integrated appliances include fridge freezer and dishwasher, with one-and-a-half bowl sink set into a stone worktop with matching splashback. Additional features include oven and hob, media wall, wall lighting, and UPVC French doors with twin side windows opening to the garden. Finished with spot lighting, central heating radiator, and under-stairs storage.
Utility/Study
Range of cabinetry with roll-edge worktops, one-and-a-half bowl sink drainer unit, and space for a stackable washing machine and dryer. With pendant light, radiator, and UPVC double glazing. Space for a desk.
WC
Fitted with a low-level WC and vanity wash hand basin, finished with wall panelling, pendant light, extractor vent, and laminate flooring.
First Floor Landing
Fitted carpet, pendant lighting, central heating radiator, and access to the lounge/optional fourth bedroom, bedroom one, and second floor landing.
Lounge / Optional Fourth Bedroom
Currently being utilised as a bedroom, this versatile space is finished with wall panelling, twin double-glazed windows, fitted carpet, pendant light, and radiator.
Bedroom One
A well-proportioned double with twin double-glazed windows, fitted carpet, pendant light, and radiator.
En-Suite
Appointed with low-level WC, wash hand basin, and enclosed shower with thermostatic valve. Double glazed UPVC courtesy window, towel radiator, extractor fan, and spot lighting.
Second Floor Landing
With fitted carpet, pendant light, central heating radiator, and access to bedrooms two and three plus the family bathroom.
Bedroom Two
With double-glazed window, fitted carpet, pendant light, and radiator.
Bedroom Three
With double-glazed window, fitted carpet, pendant light, and radiator.
Family Bathroom
Fitted with wash hand basin, low-level WC, and bath with shower over. Includes courtesy UPVC double-glazed window, towel radiator, extractor fan, and spot lighting.
Rear Garden
Enclosed by fencing, with lawn and planted borders.
- COUNCIL TAXA payment made to your local authority in order to pay for local services like schools, libraries, and refuse collection. The amount you pay depends on the value of the property.Read more about council Tax in our glossary page.
- Band: C
- PARKINGDetails of how and where vehicles can be parked, and any associated costs.Read more about parking in our glossary page.
- Yes
- GARDENA property has access to an outdoor space, which could be private or shared.
- Yes
- ACCESSIBILITYHow a property has been adapted to meet the needs of vulnerable or disabled individuals.Read more about accessibility in our glossary page.
- Ask agent
Energy performance certificate - ask agent
Treacle Avenue, Macclesfield, SK11
Add an important place to see how long it'd take to get there from our property listings.
__mins driving to your place
Get an instant, personalised result:
- Show sellers you’re serious
- Secure viewings faster with agents
- No impact on your credit score
Your mortgage
Notes
Staying secure when looking for property
Ensure you're up to date with our latest advice on how to avoid fraud or scams when looking for property online.
Visit our security centre to find out moreDisclaimer - Property reference P2408. The information displayed about this property comprises a property advertisement. Rightmove.co.uk makes no warranty as to the accuracy or completeness of the advertisement or any linked or associated information, and Rightmove has no control over the content. This property advertisement does not constitute property particulars. The information is provided and maintained by BESPOKE, Macclesfield. Please contact the selling agent or developer directly to obtain any information which may be available under the terms of The Energy Performance of Buildings (Certificates and Inspections) (England and Wales) Regulations 2007 or the Home Report if in relation to a residential property in Scotland.
*This is the average speed from the provider with the fastest broadband package available at this postcode. The average speed displayed is based on the download speeds of at least 50% of customers at peak time (8pm to 10pm). Fibre/cable services at the postcode are subject to availability and may differ between properties within a postcode. Speeds can be affected by a range of technical and environmental factors. The speed at the property may be lower than that listed above. You can check the estimated speed and confirm availability to a property prior to purchasing on the broadband provider's website. Providers may increase charges. The information is provided and maintained by Decision Technologies Limited. **This is indicative only and based on a 2-person household with multiple devices and simultaneous usage. Broadband performance is affected by multiple factors including number of occupants and devices, simultaneous usage, router range etc. For more information speak to your broadband provider.
Map data ©OpenStreetMap contributors.








