Warehouse for sale
Unit 310 Ampress Park, Ampress Lane, Lymington, SO41 8JX
- SIZE AVAILABLE
16,833 sq ft
1,564 sq m
- SECTOR
Warehouse for sale
Key features
- 12 months rent free period available (subject to terms)*
- 6.2m internal eaves height
- Fitted offices
Description
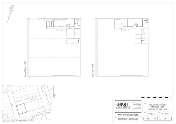
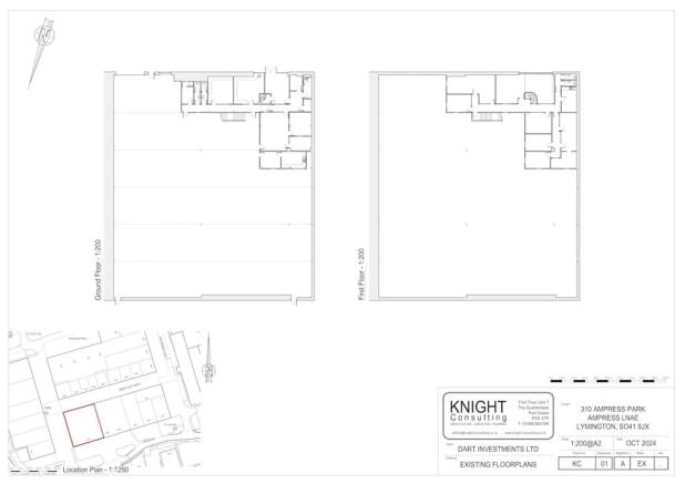
The industrial/warehouse unit comprises an end of terrace property with steel clad outer elevations and a steel clad north light roof incorporating daylight panels. There is a double height glazed entrance with double personnel doors and a roller shutter loading door in the front elevation.
The warehouse has an internal eaves height of approx. 6.2m and the highest pitch is approx. 8.6m. There is a double height glazed panel in the front elevation providing an entrance to the reception and the ground and first floor fitted offices. The offices benefit from LED lighting, suspended ceiling, air conditioning and carpets. There are W.C facilities, shower facilities and a canteen. The roller shutter door measures approx. 5m wide x 5m high.
3 phase electricity and gas are available.
Externally, there is a tarmacadam car park with 19 car parking spaces.
Location
Ampress Park is the primary business park in the New Forest and is situated to the north of Lymington Town Centre, which is approximately 1.2 miles distant from the property. Occupiers such as Halfords, Co-Op Petrol Station, Toolstation, Howdens and Elliots are located on Ampress Park.
Viewings
Strictly by appointment through the sole agents.
Terms
Available by way of a new Full Repairing and Insuring lease, incorporating periodic upward only, open market rent reviews. *A 12 months rent free period is available subject to a minimum 5 year lease term and subject to proposed tenant company details. Interested parties are urged to make further enquiries.
Legal Costs
Each party to be responsible for their own legal costs incurred in the transaction.
VAT
All quoted rents and outgoings are quoted exclusive of VAT at the prevailing rate.
Brochures
Unit 310 Ampress Park, Ampress Lane, Lymington, SO41 8JX
NEAREST STATIONS
Distances are straight line measurements from the centre of the postcode- Lymington Town Station0.9 miles
- Lymington Pier Station1.3 miles
- Sway Station2.9 miles
Notes
Disclaimer - Property reference 87276-1. The information displayed about this property comprises a property advertisement. Rightmove.co.uk makes no warranty as to the accuracy or completeness of the advertisement or any linked or associated information, and Rightmove has no control over the content. This property advertisement does not constitute property particulars. The information is provided and maintained by Vail Williams, Bournemouth. Please contact the selling agent or developer directly to obtain any information which may be available under the terms of The Energy Performance of Buildings (Certificates and Inspections) (England and Wales) Regulations 2007 or the Home Report if in relation to a residential property in Scotland.
Map data ©OpenStreetMap contributors.





