3 bedroom bungalow for sale
Dr Browns Close, Minchinhampton, Stroud

- PROPERTY TYPE
Bungalow
- BEDROOMS
3
- BATHROOMS
1
- SIZE
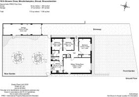
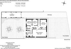
1,184 sq ft
110 sq m
- TENUREDescribes how you own a property. There are different types of tenure - freehold, leasehold, and commonhold.Read more about tenure in our glossary page.
Freehold
Key features
- Sought After Location
- Quiet and Peaceful
- Detached Bungalow
- Level Front and Rear Gardens
- Driveway with Parking for Several Cars
- 22ft Sitting/Dining Room
- Detached Double Length Garage
- Close to Amenities
- Short Walk to Minchinhampton High Street & The Common
Description
Description - This well presented and bright detached three bedroom bungalow is located in a quiet and popular cul-de-sac, offering peace and quiet but with a real sense of community.
Sitting comfortably in the middle of it's generous level plot, a front lawn with additional driveway, offering off-street parking for several cars, leads to the double length detached garage and a front door at the side of the home.
A porch area leads through to the hall with the large 22ft sitting/dining room directly ahead. A large and flexible entertaining space, with a useful serving hatch to the adjacent kitchen.
The kitchen, at the rear of the property has been recently modernised and has direct access to the rear garden.
To the other side of the property are the three bedrooms. The principal overlooking the front of the house has a large fitted double wardrobe, whilst the other two rooms (both doubles) could be used as a home office or snug if wanted.
A shower room and separate WC with sink conclude the internal accommodation.
Externally, the front garden, laid to lawn, has some established shrubbery to add privacy, whilst the rear garden, also laid to lawn, benefits from two pretty fruit trees, and side access to the garage. There are also useful and practical side gates on either side of the property.
Brochures
Dr Browns Close, Minchinhampton, Stroud- COUNCIL TAXA payment made to your local authority in order to pay for local services like schools, libraries, and refuse collection. The amount you pay depends on the value of the property.Read more about council Tax in our glossary page.
- Band: E
- PARKINGDetails of how and where vehicles can be parked, and any associated costs.Read more about parking in our glossary page.
- Yes
- GARDENA property has access to an outdoor space, which could be private or shared.
- Yes
- ACCESSIBILITYHow a property has been adapted to meet the needs of vulnerable or disabled individuals.Read more about accessibility in our glossary page.
- Ask agent
Dr Browns Close, Minchinhampton, Stroud
Add an important place to see how long it'd take to get there from our property listings.
__mins driving to your place
Get an instant, personalised result:
- Show sellers you’re serious
- Secure viewings faster with agents
- No impact on your credit score
Your mortgage
Notes
Staying secure when looking for property
Ensure you're up to date with our latest advice on how to avoid fraud or scams when looking for property online.
Visit our security centre to find out moreDisclaimer - Property reference 34160053. The information displayed about this property comprises a property advertisement. Rightmove.co.uk makes no warranty as to the accuracy or completeness of the advertisement or any linked or associated information, and Rightmove has no control over the content. This property advertisement does not constitute property particulars. The information is provided and maintained by Murrays Estate Agents, Minchinhampton. Please contact the selling agent or developer directly to obtain any information which may be available under the terms of The Energy Performance of Buildings (Certificates and Inspections) (England and Wales) Regulations 2007 or the Home Report if in relation to a residential property in Scotland.
*This is the average speed from the provider with the fastest broadband package available at this postcode. The average speed displayed is based on the download speeds of at least 50% of customers at peak time (8pm to 10pm). Fibre/cable services at the postcode are subject to availability and may differ between properties within a postcode. Speeds can be affected by a range of technical and environmental factors. The speed at the property may be lower than that listed above. You can check the estimated speed and confirm availability to a property prior to purchasing on the broadband provider's website. Providers may increase charges. The information is provided and maintained by Decision Technologies Limited. **This is indicative only and based on a 2-person household with multiple devices and simultaneous usage. Broadband performance is affected by multiple factors including number of occupants and devices, simultaneous usage, router range etc. For more information speak to your broadband provider.
Map data ©OpenStreetMap contributors.




