River Close, Bedworth

- PROPERTY TYPE
 Semi-Detached
- BEDROOMS
 3
- BATHROOMS
 1
- SIZE
 Ask agent
- TENUREDescribes how you own a property. There are different types of tenure - freehold, leasehold, and commonhold.Read more about tenure in our glossary page.
 Freehold
Key features
- Semi Detached Located In Cul De Sac
 - Three Good Size Bedrooms
 - Kitchen Diner
 - Spacious Living Room
 - Four Piece Bathroom Suite
 - Driveway & Garage
 - Generous Private Rear Garden
 - Freehold
 - Council Tax Band C
 - EPC Rating D
 
Description
IN MORE DETAIL THE PROPERTY COMPRISES;
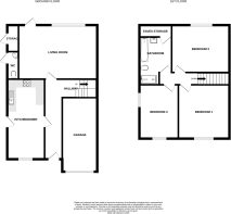
ENTRANCE HALL Access to the property via obscure UPVC double glazed door. Stairs ascending to first floor, panel radiator, doors to;
KITCHEN DINER 18' 2" x 8' 9" (5.54m x 2.67m) With UPVC double glazed windows to front and side aspect, obscure UPVC double glazed door leading to side access. Kitchen comes with a range of wall and base units with roll top work surfaces, inset stainless steel sink and drainage units, integrated double electric oven with four ring gas hob, and extractor hood, plumbing for washing machine, built in dishwasher, panel radiator.
LIVING ROOM 12' 7" x 18' 4" (3.84m x 5.59m) With UPVC double glazed window to rear aspect, UPVC double glazed door leading to the garden. Panel radiator.
LANDING With access to the loft, doors to;
BEDROOM ONE 12' 0" x 11' 3" (3.66m x 3.43m) With UPVC double glazed window to front aspect, panel radiator, fitted wardrobes.
BEDROOM TWO 11' 1" x 13' 3" (3.38m x 4.04m) With UPVC double glazed window to rear aspect, panel radiator.
BEDROOM THREE 12' 5" x 9' 2" (3.78m x 2.79m) With UPVC double glazed windows to front and side aspects, panel radiator.
FAMILY BATHROOM 10' 4" x 7' 5" (3.15m x 2.26m) With obscure UPVC double glazed window to side aspect, Four piece bathroom suite comprising; panelled bath, double walk in shower unit, low level WC, wash basin set in vanity cupboard, panel radiator, extractor fan, and shaver point. Eaves storage.
OUTSIDE WC With UPVC door, low level WC, and corner wash basin.
OUTSIDE STORAGE CUPBOARD With location of gas central heating boiler.
GARAGE 17' 5" x 8' 2" (5.31m x 2.49m) With Up and Over door.
OUTSDIE To the front is a tarmac driveway providing off road parking, and direct access to a single garage. Side border with rose bushes. Side paved pathway and wrought iron gate leading to the rear.
The rear garden is mainly laid to lawn with a paved patio, and paved pathway.
GENERAL INFORMATION / MATERIAL INFORMATION PARTS C Nuneaton & Bedworth Borough Council. Council Tax Banding C. EPC Commissioned.
TENURE: we understand from the vendors that the property is freehold with vacant possession on completion. We have been informed that the vendor is not aware of any building safety issues, or planning application which directly effect the property. No restrictions. Ex coal mining area.
SERVICES: Russell Cope Estate Agents have not tested any apparatus, equipment, fittings, etc, or services to this property, so cannot confirm they are in working order or fit for the purpose. A buyer is recommended to obtain confirmation from their Surveyor or Solicitor.
FIXTURES AND FITTINGS: only those as mentioned in these details will be included in the sale.
MEASUREMENTS: the measurements provided are given as a general guide only and are all approximate.
VIEWING: by prior appointment through the Sole Agents.
Brochures
A4 Portrait Windo...4 Page Portrait- COUNCIL TAXA payment made to your local authority in order to pay for local services like schools, libraries, and refuse collection. The amount you pay depends on the value of the property.Read more about council Tax in our glossary page.
 - Band: C
 - PARKINGDetails of how and where vehicles can be parked, and any associated costs.Read more about parking in our glossary page.
 - Garage,Off street
 - GARDENA property has access to an outdoor space, which could be private or shared.
 - Yes
 - ACCESSIBILITYHow a property has been adapted to meet the needs of vulnerable or disabled individuals.Read more about accessibility in our glossary page.
 - Ask agent
 
Energy performance certificate - ask agent
River Close, Bedworth
Add an important place to see how long it'd take to get there from our property listings.
__mins driving to your place
Get an instant, personalised result:
- Show sellers you’re serious
 - Secure viewings faster with agents
 - No impact on your credit score
 
Your mortgage
Notes
Staying secure when looking for property
Ensure you're up to date with our latest advice on how to avoid fraud or scams when looking for property online.
Visit our security centre to find out moreDisclaimer - Property reference 102700002619. The information displayed about this property comprises a property advertisement. Rightmove.co.uk makes no warranty as to the accuracy or completeness of the advertisement or any linked or associated information, and Rightmove has no control over the content. This property advertisement does not constitute property particulars. The information is provided and maintained by Russell Cope, Bedworth. Please contact the selling agent or developer directly to obtain any information which may be available under the terms of The Energy Performance of Buildings (Certificates and Inspections) (England and Wales) Regulations 2007 or the Home Report if in relation to a residential property in Scotland.
*This is the average speed from the provider with the fastest broadband package available at this postcode. The average speed displayed is based on the download speeds of at least 50% of customers at peak time (8pm to 10pm). Fibre/cable services at the postcode are subject to availability and may differ between properties within a postcode. Speeds can be affected by a range of technical and environmental factors. The speed at the property may be lower than that listed above. You can check the estimated speed and confirm availability to a property prior to purchasing on the broadband provider's website. Providers may increase charges. The information is provided and maintained by Decision Technologies Limited. **This is indicative only and based on a 2-person household with multiple devices and simultaneous usage. Broadband performance is affected by multiple factors including number of occupants and devices, simultaneous usage, router range etc. For more information speak to your broadband provider.
Map data ©OpenStreetMap contributors.







