3 bedroom terraced house for sale
Coombe Avenue, Sevenoaks, TN14

- PROPERTY TYPE
Terraced
- BEDROOMS
3
- BATHROOMS
1
- SIZE
Ask agent
- TENUREDescribes how you own a property. There are different types of tenure - freehold, leasehold, and commonhold.Read more about tenure in our glossary page.
Freehold
Key features
- Mid Terrace House
- Three Bedrooms
- Bathroom
- Living Room
- Kitchen/Dining Room
- Conservatory
- Gardens
- Garage
- Convenient Location
Description
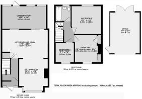
A mid terrace house situated in a convenient location and approached by a fully enclosed entrance porch with quarry tiled step and door leading through to the hallway. There is a staircase to the first floor with storage cupboard beneath and door leading to the principal reception room/kitchen. The kitchen opens through to the living room and has sliding patio door to rear leading out to the conservatory. The kitchen area has roll top work surfaces with a range of cupboards and drawers beneath and wall mounted units above incorporating a one and a half bowl stainless steel sink with mixer tap and drainer. There is space for an oven, freezer and cupboard with space for additional fridge. The living room has an attractive feature fireplace with electric stove and window overlooking the front. The conservatory has a door to the rear leading out to the garden.
To the first floor, the landing has access to loft (which houses the boiler) and doors to three bedrooms and the family bathroom. Bedroom one is to the rear and overlooks the garden whilst the second bedroom has a built in wardrobe and airing cupboard. Bedroom three is to the front and the bathroom is located to the rear with suite comprising panelled bath with shower over, low level WC and pedestal was hand basin.
Externally, to the rear, there is an area of lawn with flower beds surrounding stocked with shrubs and flowering plants and access to a detached garage located to the rear of the garden. To the front there is parking and a small area of lawn with flower beds stocked with shrubs, flowering plants and pathway to the entrance door.
Council Tax Band D - £2,460.88 (2025/26).
- COUNCIL TAXA payment made to your local authority in order to pay for local services like schools, libraries, and refuse collection. The amount you pay depends on the value of the property.Read more about council Tax in our glossary page.
- Ask agent
- PARKINGDetails of how and where vehicles can be parked, and any associated costs.Read more about parking in our glossary page.
- Yes
- GARDENA property has access to an outdoor space, which could be private or shared.
- Yes
- ACCESSIBILITYHow a property has been adapted to meet the needs of vulnerable or disabled individuals.Read more about accessibility in our glossary page.
- Ask agent
Coombe Avenue, Sevenoaks, TN14
Add an important place to see how long it'd take to get there from our property listings.
__mins driving to your place
Get an instant, personalised result:
- Show sellers you’re serious
- Secure viewings faster with agents
- No impact on your credit score
Your mortgage
Notes
Staying secure when looking for property
Ensure you're up to date with our latest advice on how to avoid fraud or scams when looking for property online.
Visit our security centre to find out moreDisclaimer - Property reference SEH-1JL815P37WU. The information displayed about this property comprises a property advertisement. Rightmove.co.uk makes no warranty as to the accuracy or completeness of the advertisement or any linked or associated information, and Rightmove has no control over the content. This property advertisement does not constitute property particulars. The information is provided and maintained by Langford Rae O'Neill, Sevenoaks. Please contact the selling agent or developer directly to obtain any information which may be available under the terms of The Energy Performance of Buildings (Certificates and Inspections) (England and Wales) Regulations 2007 or the Home Report if in relation to a residential property in Scotland.
*This is the average speed from the provider with the fastest broadband package available at this postcode. The average speed displayed is based on the download speeds of at least 50% of customers at peak time (8pm to 10pm). Fibre/cable services at the postcode are subject to availability and may differ between properties within a postcode. Speeds can be affected by a range of technical and environmental factors. The speed at the property may be lower than that listed above. You can check the estimated speed and confirm availability to a property prior to purchasing on the broadband provider's website. Providers may increase charges. The information is provided and maintained by Decision Technologies Limited. **This is indicative only and based on a 2-person household with multiple devices and simultaneous usage. Broadband performance is affected by multiple factors including number of occupants and devices, simultaneous usage, router range etc. For more information speak to your broadband provider.
Map data ©OpenStreetMap contributors.







