Studio flat for sale
The Triangle, Kelham Central, S3 8FT

- PROPERTY TYPE
Studio
- BATHROOMS
1
- SIZE
555 sq ft
52 sq m
- TENUREDescribes how you own a property. There are different types of tenure - freehold, leasehold, and commonhold.Read more about tenure in our glossary page.
Ask agent
Key features
- *Let Us Help With Your Deposit - Your Step Closer To Home Ownership*
- Limited availability of homes
- Floor to ceiling triple glazed windows
- All apartments benefit from a covered balcony offering views of Kelham Island
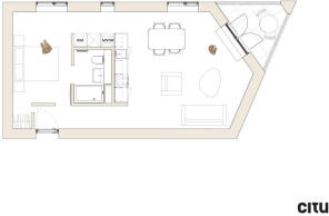
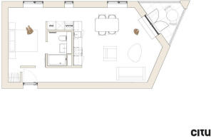
- Open plan living, kitchen and dining area
- Timber flooring throughout
- Sustainable features including an MVHR system
- Unique triangle building design
- Dual aspect design
- Located in the heart of Kelham Central
Description
The Citu Home
1 bedrooms
1 bathrooms
High performance insulation
South facing triple glazed windows - 24% more efficient than a standard double glazed window
Solar panels across the development
High levels of air tightness - meaning there are no drafts in your home
Gas-free- all homes are installed with a Mechanical Ventilation Heat Recovery system (MVHR) to bring in a constant flow of fresh air.
Outdoor Space
In the heart of Kelham Central, you will find Cutlers Gardens, the only public landscaped green space in Kelham Island. With a variety of trees, flowers, shrubs and a raised decking, it is the perfect place for a moment of calm within the hustle and bustle of Kelham Island.
Throughout the Kelham Central, there are various pockets of landscaping, all of which is shared with all residents and maintained by our landscaping team.
Community Interest Company
Every purchaser becomes a part of the Community Interest Company when they purchase a Citu property, which gives you more control over the place - specifically, the public space, and the utilities infrastructure.
Parking
Its central location allows you to maximise on eco-friendly living practices, supported by free on-site bike storage and provisions for electric car charging stations, making the switch to zero-carbon transport easy.
Of the limited parking we do have, it is on a first come, first served basis at an additional cost, and dependent on the type of property that is being purchased.
The Area
Kelham Central offers a different way of living in a city centre. Carefully positioned within the heart of Kelham Island, our development means you can access all that Sheffield has to offer easily by foot, bike or tram.
Sheffield train station & Sheffield Hallam University can be reached on foot within 20 minutes & The Royal Hallamshire Hospital within 13 minutes via public transport.
The local amenities include many independent cafes and a wide range of award-winning restaurants include: Bakers Yard Bakery, Domo, Isabellas, Grind Café, JORO and Piña.
Or venture further out, it is only a twenty minute drive to the Peak District, a great place for a walk and day out.
Pop into our show home - open Saturday and Sundays between 11-3pm.
With a wide range of options available, from a 1 bedroom house to a 4 bedroom house with a roof terrace, the community of Kelham Central has something for everyone.
Brochures
Brochure 1- COUNCIL TAXA payment made to your local authority in order to pay for local services like schools, libraries, and refuse collection. The amount you pay depends on the value of the property.Read more about council Tax in our glossary page.
- Ask agent
- PARKINGDetails of how and where vehicles can be parked, and any associated costs.Read more about parking in our glossary page.
- Yes
- GARDENA property has access to an outdoor space, which could be private or shared.
- Yes
- ACCESSIBILITYHow a property has been adapted to meet the needs of vulnerable or disabled individuals.Read more about accessibility in our glossary page.
- Ask agent
Energy performance certificate - ask agent
The Triangle, Kelham Central, S3 8FT
Add an important place to see how long it'd take to get there from our property listings.
__mins driving to your place
Get an instant, personalised result:
- Show sellers you’re serious
- Secure viewings faster with agents
- No impact on your credit score
Your mortgage
Notes
Staying secure when looking for property
Ensure you're up to date with our latest advice on how to avoid fraud or scams when looking for property online.
Visit our security centre to find out moreDisclaimer - Property reference 13D. The information displayed about this property comprises a property advertisement. Rightmove.co.uk makes no warranty as to the accuracy or completeness of the advertisement or any linked or associated information, and Rightmove has no control over the content. This property advertisement does not constitute property particulars. The information is provided and maintained by Vision Properties, Leeds. Please contact the selling agent or developer directly to obtain any information which may be available under the terms of The Energy Performance of Buildings (Certificates and Inspections) (England and Wales) Regulations 2007 or the Home Report if in relation to a residential property in Scotland.
*This is the average speed from the provider with the fastest broadband package available at this postcode. The average speed displayed is based on the download speeds of at least 50% of customers at peak time (8pm to 10pm). Fibre/cable services at the postcode are subject to availability and may differ between properties within a postcode. Speeds can be affected by a range of technical and environmental factors. The speed at the property may be lower than that listed above. You can check the estimated speed and confirm availability to a property prior to purchasing on the broadband provider's website. Providers may increase charges. The information is provided and maintained by Decision Technologies Limited. **This is indicative only and based on a 2-person household with multiple devices and simultaneous usage. Broadband performance is affected by multiple factors including number of occupants and devices, simultaneous usage, router range etc. For more information speak to your broadband provider.
Map data ©OpenStreetMap contributors.




