
Hart Lane, Hartlepool

- PROPERTY TYPE
Terraced
- BEDROOMS
3
- BATHROOMS
1
- SIZE
Ask agent
- TENUREDescribes how you own a property. There are different types of tenure - freehold, leasehold, and commonhold.Read more about tenure in our glossary page.
Freehold
Key features
- Mid Terraced Property
- Spacious & Well Proportioned Accommodation
- THREE BEDROOMS
- Two Reception Rooms
- Kitchen & Utility Area
- Ground Floor WC / First Floor Shower Room
- Gas Central Heating & uPVC Double Glazing
- Generous South Facing Rear Garden
- Larger Than Average Detached Garage
- Close To Schools & Amenities
Description
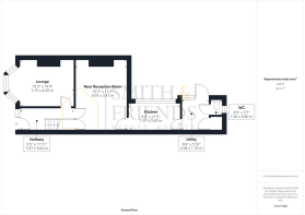
Ground Floor -
Entrance Hall - 1.65m x 3.63m (5'5 x 11'11) - Accessed via uPVC double glazed entrance door with matching side screen and fanlight above, spindled staircase to the first floor with newel post, delft rack, radiator with cover included, access to both reception rooms.
Front Lounge - 3.12m x 4.37m (10'3 x 14'4) - uPVC double glazed curved bay window to the front aspect with curved radiator, feature fire surround with 'marble' style back and base, inset gas fire.
Rear Reception Room - 4.95m x 3.40m (16'3 x 11'2) - A full width rear reception room offering ample and seating and dining space, with uPVC double glazed window to the rear aspect, feature fire surround, under stairs storage cupboard, single radiator, access to:
Kitchen - 1.91m x 3.38m (6'3 x 11'1) - Fitted with a range of units to base and wall level with contrasting work surfaces incorporating an inset one and a half bowl single drainer stainless steel sink unit with mixer tap, recess with plumbing for washing machine, glass fronted display cabinet to eye-level, uPVC double glazed window to the side aspect, tiled flooring, single radiator, access to:
Utility Area - 2.06m x 1.78m (6'9 x 5'10) - Gas cooker point, space for free standing fridge/freezer, matching tiled flooring, uPVC double glazed door to the rear garden with matching side screen and fanlight above, useful shelved storage cupboard.
Ground Floor Wc - 1.04m x 0.79m (3'5 x 2'7) - Fitted with a low level WC in white, uPVC double glazed window to the rear aspect, matching tiled flooring.
First Floor Landing - Access to both bedrooms, shower room and hatch to loft space.
Bedroom One - 2.39m x 3.63m (7'10 x 11'11) - Wall to wall fitted wardrobes, uPVC double glazed window to the front aspect, single radiator.
Bedroom Two - 2.64m x 3.33m (8'8 x 10'11) - Built-in storage to both alcoves with concealed Worcester gas central heating boiler, uPVC double glazed window to the rear aspect.
Bedroom Three - 1.70m x 2.11m (5'7 x 6'11) - uPVC double glazed window to the front aspect, single radiator.
Shower Room/Wet Room - 1.78m x 1.73m (5'10 x 5'8) - Walk-in shower area with electric shower, wall mounted wash hand basin with dual taps, low level WC, attractive tiling to walls, low maintenance panelling to ceiling, grip flooring, uPVC double glazed window to the rear aspect, single radiator.
Externally - The property features a low maintenance paved front enclosed by a brick boundary wall with wrought iron railing and matching gate. The generous south facing rear garden should prove to be a suntrap in the summer months, with patio areas, lawn, planting areas and fenced boundaries. A gate to the rear leads through to the back alley with access to the detached garage.
Garage - 5.97m x 2.87m (19'7 x 9'5) - Up and over access door from the rear alley, personal door from the rear garden, window to the rear aspect.
Nb - Floorplans and title plans are for illustrative purposes only. All measurements, walls, doors, window fittings and appliances, their sizes and locations, are approximate only. They cannot be regarded as being a representation by the seller, nor their agent.
Brochures
Hart Lane, HartlepoolBrochure- COUNCIL TAXA payment made to your local authority in order to pay for local services like schools, libraries, and refuse collection. The amount you pay depends on the value of the property.Read more about council Tax in our glossary page.
- Band: B
- PARKINGDetails of how and where vehicles can be parked, and any associated costs.Read more about parking in our glossary page.
- Garage
- GARDENA property has access to an outdoor space, which could be private or shared.
- Yes
- ACCESSIBILITYHow a property has been adapted to meet the needs of vulnerable or disabled individuals.Read more about accessibility in our glossary page.
- Ask agent
Hart Lane, Hartlepool
Add an important place to see how long it'd take to get there from our property listings.
__mins driving to your place
Get an instant, personalised result:
- Show sellers you’re serious
- Secure viewings faster with agents
- No impact on your credit score


Your mortgage
Notes
Staying secure when looking for property
Ensure you're up to date with our latest advice on how to avoid fraud or scams when looking for property online.
Visit our security centre to find out moreDisclaimer - Property reference 34168992. The information displayed about this property comprises a property advertisement. Rightmove.co.uk makes no warranty as to the accuracy or completeness of the advertisement or any linked or associated information, and Rightmove has no control over the content. This property advertisement does not constitute property particulars. The information is provided and maintained by Smith & Friends Estate Agents, Hartlepool. Please contact the selling agent or developer directly to obtain any information which may be available under the terms of The Energy Performance of Buildings (Certificates and Inspections) (England and Wales) Regulations 2007 or the Home Report if in relation to a residential property in Scotland.
*This is the average speed from the provider with the fastest broadband package available at this postcode. The average speed displayed is based on the download speeds of at least 50% of customers at peak time (8pm to 10pm). Fibre/cable services at the postcode are subject to availability and may differ between properties within a postcode. Speeds can be affected by a range of technical and environmental factors. The speed at the property may be lower than that listed above. You can check the estimated speed and confirm availability to a property prior to purchasing on the broadband provider's website. Providers may increase charges. The information is provided and maintained by Decision Technologies Limited. **This is indicative only and based on a 2-person household with multiple devices and simultaneous usage. Broadband performance is affected by multiple factors including number of occupants and devices, simultaneous usage, router range etc. For more information speak to your broadband provider.
Map data ©OpenStreetMap contributors.






