Atwood Road, Didsbury

- PROPERTY TYPE
- Semi-Detached 
- BEDROOMS
- 5 
- BATHROOMS
- 2 
- SIZE
- Ask agent 
- TENUREDescribes how you own a property. There are different types of tenure - freehold, leasehold, and commonhold.Read more about tenure in our glossary page.
- Freehold 
Key features
- A Spectacular and Immaculately Presented, Extended Semi Detached Property
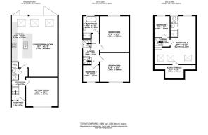
- Measuring a Highly Impressive 1662 SQ FT over Three Floors of Accommodation
- Having Undergone Extensive Renovation and Refurbishment by the Current Owners
- Large Sitting Room and a Stunning Modern Open Plan Living/Dining Kitchen
- Five Good Sized Bedrooms and Two Stylish Fitted Bathrooms
- Off Road Parking and a Private Rear South Facing Landscaped Garden
- Located on a Quiet Leafy Cul De Sac Close to Didsbury Village and Excellent Transport Links
- Internal Viewing Highly Recommended
Description
DESCRIPTION
Stunning throughout and complemented by a large private attractive garden this property makes for an enviable family home and internally comprises:- welcoming entrance hallway with useful under stairs W/C. A large light and airy sitting room to the front of the property. To the end of the hallway you are greeted by a simply spectacular modern open plan living/dining, custom built kitchen which benefits from underfloor heating, attractive bi-folding doors, three skylights and modern fitted units.
To the first floor there are three bedrooms with two large double bedrooms. The principal bedroom has a leafy outlook and overlooks the rear garden. A refitted contemporary four piece bathroom suite with a roll top bath serves four of the bedrooms.
To the second floor there are a further two bedrooms, bedroom two boasts a stylish fitted en-suite shower room and ample eaves storage.
Externally to the front there is a block paved driveway, a secure gate provides access to the rear South facing private garden. The garden is landscaped with two patio areas, fenced boundaries and mature plants.
Brochures
116 Atwood Road.pdf- COUNCIL TAXA payment made to your local authority in order to pay for local services like schools, libraries, and refuse collection. The amount you pay depends on the value of the property.Read more about council Tax in our glossary page.
- Band: D
- PARKINGDetails of how and where vehicles can be parked, and any associated costs.Read more about parking in our glossary page.
- Yes
- GARDENA property has access to an outdoor space, which could be private or shared.
- Yes
- ACCESSIBILITYHow a property has been adapted to meet the needs of vulnerable or disabled individuals.Read more about accessibility in our glossary page.
- Ask agent
Energy performance certificate - ask agent
Atwood Road, Didsbury
Add an important place to see how long it'd take to get there from our property listings.
__mins driving to your place
Get an instant, personalised result:
- Show sellers you’re serious
- Secure viewings faster with agents
- No impact on your credit score

Your mortgage
Notes
Staying secure when looking for property
Ensure you're up to date with our latest advice on how to avoid fraud or scams when looking for property online.
Visit our security centre to find out moreDisclaimer - Property reference 1024748. The information displayed about this property comprises a property advertisement. Rightmove.co.uk makes no warranty as to the accuracy or completeness of the advertisement or any linked or associated information, and Rightmove has no control over the content. This property advertisement does not constitute property particulars. The information is provided and maintained by Gascoigne Halman, Didsbury. Please contact the selling agent or developer directly to obtain any information which may be available under the terms of The Energy Performance of Buildings (Certificates and Inspections) (England and Wales) Regulations 2007 or the Home Report if in relation to a residential property in Scotland.
*This is the average speed from the provider with the fastest broadband package available at this postcode. The average speed displayed is based on the download speeds of at least 50% of customers at peak time (8pm to 10pm). Fibre/cable services at the postcode are subject to availability and may differ between properties within a postcode. Speeds can be affected by a range of technical and environmental factors. The speed at the property may be lower than that listed above. You can check the estimated speed and confirm availability to a property prior to purchasing on the broadband provider's website. Providers may increase charges. The information is provided and maintained by Decision Technologies Limited. **This is indicative only and based on a 2-person household with multiple devices and simultaneous usage. Broadband performance is affected by multiple factors including number of occupants and devices, simultaneous usage, router range etc. For more information speak to your broadband provider.
Map data ©OpenStreetMap contributors.




