
3 bedroom terraced house for sale
Devonshire Avenue, Southsea

- PROPERTY TYPE
Terraced
- BEDROOMS
3
- BATHROOMS
1
- SIZE
Ask agent
- TENUREDescribes how you own a property. There are different types of tenure - freehold, leasehold, and commonhold.Read more about tenure in our glossary page.
Freehold
Key features
- Three Bedroom, Double Bay & Forecourt Property
- No Forward Chain!
- Rear Conservatory
- Spacious Basement
- Two Separate Reception Rooms
- Internal Viewing Recommended
Description
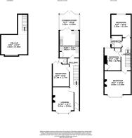
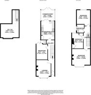
The accommodation comprises a bright and airy living room with a large bay window, a versatile secondary reception room currently arranged as a bedroom, and a stunning open-plan kitchen/breakfast room that flows seamlessly into the rear conservatory overlooking the garden.
On the first floor are three generous double bedrooms and a fitted family bathroom suite. Additional benefits include gas central heating, double glazing, a spacious basement with great potential, and an external W.C. which offers potential to be converted internally if desired.
With so much on offer, and the added benefit of no forward chain, we strongly recommend an internal viewing to fully appreciate this wonderful home. For further information or to arrange a viewing, please contact the Lawson Rose sales office today.
Material Information:
• Construction: Brick Built
• Electricity Supply: Alternating Current
• Heating: Gas Central Heating
• Water Supply: Mains Water Supply
• Sewage: Mains Sewage
• Broadband: Standard, Superfast Fibre and Gfast Fibre are available.
• Mobile: Ofcom Checker shows EE, Three, 02 and Vodafone all have voice and data availability in this area.
• Permit Parking: 1st permit is £30, 2nd permit is £120 and 3rd permit (where available) is £300.
• Council Tax: Portsmouth City Council – Band
• Flood Risk – Low Risk (Stated on the Gov.uk portal)
Brochures
Property BrochureFull Details- COUNCIL TAXA payment made to your local authority in order to pay for local services like schools, libraries, and refuse collection. The amount you pay depends on the value of the property.Read more about council Tax in our glossary page.
- Band: C
- PARKINGDetails of how and where vehicles can be parked, and any associated costs.Read more about parking in our glossary page.
- Yes
- GARDENA property has access to an outdoor space, which could be private or shared.
- Yes
- ACCESSIBILITYHow a property has been adapted to meet the needs of vulnerable or disabled individuals.Read more about accessibility in our glossary page.
- Ask agent
Devonshire Avenue, Southsea
Add an important place to see how long it'd take to get there from our property listings.
__mins driving to your place
Get an instant, personalised result:
- Show sellers you’re serious
- Secure viewings faster with agents
- No impact on your credit score
Your mortgage
Notes
Staying secure when looking for property
Ensure you're up to date with our latest advice on how to avoid fraud or scams when looking for property online.
Visit our security centre to find out moreDisclaimer - Property reference 12748079. The information displayed about this property comprises a property advertisement. Rightmove.co.uk makes no warranty as to the accuracy or completeness of the advertisement or any linked or associated information, and Rightmove has no control over the content. This property advertisement does not constitute property particulars. The information is provided and maintained by Lawson Rose, Southsea. Please contact the selling agent or developer directly to obtain any information which may be available under the terms of The Energy Performance of Buildings (Certificates and Inspections) (England and Wales) Regulations 2007 or the Home Report if in relation to a residential property in Scotland.
*This is the average speed from the provider with the fastest broadband package available at this postcode. The average speed displayed is based on the download speeds of at least 50% of customers at peak time (8pm to 10pm). Fibre/cable services at the postcode are subject to availability and may differ between properties within a postcode. Speeds can be affected by a range of technical and environmental factors. The speed at the property may be lower than that listed above. You can check the estimated speed and confirm availability to a property prior to purchasing on the broadband provider's website. Providers may increase charges. The information is provided and maintained by Decision Technologies Limited. **This is indicative only and based on a 2-person household with multiple devices and simultaneous usage. Broadband performance is affected by multiple factors including number of occupants and devices, simultaneous usage, router range etc. For more information speak to your broadband provider.
Map data ©OpenStreetMap contributors.







