Plot 115, Hurworth Meadows, Neasham Road, Darlington, DL2 1DL

- PROPERTY TYPE
Detached
- BEDROOMS
4
- BATHROOMS
3
- SIZE
Ask agent
- TENUREDescribes how you own a property. There are different types of tenure - freehold, leasehold, and commonhold.Read more about tenure in our glossary page.
Freehold
Key features
- Part Exchange Available
- Four bedroomed family home
- Bi-fold doors to south facing rear garden
- Solar panels
- Electric vehicle charging point
Description
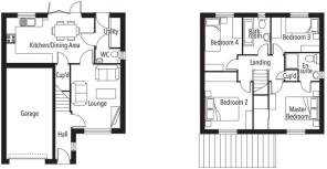
The Poppy is a luxurious Four bedroom detached family home with a built-in garage. The rear of the property features an open kitchen/dining area with bifold doors leading out to an enclosed garden. Elsewhere downstairs, there is a front aspect lounge, as well as a downstairs cloakroom, utility room, and storage.
Upstairs, there is a spacious principal bedroom with an en-suite and fitted wardrobe, plus three further bedrooms and an immaculately-finished family bathroom.
Like all properties at Hurworth Meadows, The Poppy comes complete with premium insulation, solar panels, and an electric vehicle charging port.
EPC Band B
These houses are sold on a FREEHOLD basis. There is an estate management charge of approx. £110+VAT pa (23/24)
Principal Elevation -
Entrance Hallway -
Lounge - 4.15 x 3.21 (13'7" x 10'6") -
Kitchen/Dining Area - 5.75 x 2.95 (18'10" x 9'8") -
Utility - 1.91 x 1.60 (6'3" x 5'2") -
Ground Floor W/C -
First Floor Landing -
Principal Bedroom - 3.26 x 3.04 (10'8" x 9'11") -
En-Suite - 2.19 x 1.81 (7'2" x 5'11") -
Second Bedroom - 3.70 x 3.09 (12'1" x 10'1") -
Third Bedroom - 3.11 x 2.23 (10'2" x 7'3") -
Forth Bedroom - 3.46 x 2.40 (11'4" x 7'10") -
Bathroom - 2.40 x 1.75 (7'10" x 5'8") -
Rear Garden -
Brochures
Plot 115, Hurworth Meadows, Neasham Road, DarlingtBrochure- COUNCIL TAXA payment made to your local authority in order to pay for local services like schools, libraries, and refuse collection. The amount you pay depends on the value of the property.Read more about council Tax in our glossary page.
- Ask agent
- PARKINGDetails of how and where vehicles can be parked, and any associated costs.Read more about parking in our glossary page.
- Yes
- GARDENA property has access to an outdoor space, which could be private or shared.
- Yes
- ACCESSIBILITYHow a property has been adapted to meet the needs of vulnerable or disabled individuals.Read more about accessibility in our glossary page.
- Ask agent
Energy performance certificate - ask agent
Plot 115, Hurworth Meadows, Neasham Road, Darlington, DL2 1DL
Add an important place to see how long it'd take to get there from our property listings.
__mins driving to your place
Get an instant, personalised result:
- Show sellers you’re serious
- Secure viewings faster with agents
- No impact on your credit score

Your mortgage
Notes
Staying secure when looking for property
Ensure you're up to date with our latest advice on how to avoid fraud or scams when looking for property online.
Visit our security centre to find out moreDisclaimer - Property reference 34170986. The information displayed about this property comprises a property advertisement. Rightmove.co.uk makes no warranty as to the accuracy or completeness of the advertisement or any linked or associated information, and Rightmove has no control over the content. This property advertisement does not constitute property particulars. The information is provided and maintained by Estates, Darlington. Please contact the selling agent or developer directly to obtain any information which may be available under the terms of The Energy Performance of Buildings (Certificates and Inspections) (England and Wales) Regulations 2007 or the Home Report if in relation to a residential property in Scotland.
*This is the average speed from the provider with the fastest broadband package available at this postcode. The average speed displayed is based on the download speeds of at least 50% of customers at peak time (8pm to 10pm). Fibre/cable services at the postcode are subject to availability and may differ between properties within a postcode. Speeds can be affected by a range of technical and environmental factors. The speed at the property may be lower than that listed above. You can check the estimated speed and confirm availability to a property prior to purchasing on the broadband provider's website. Providers may increase charges. The information is provided and maintained by Decision Technologies Limited. **This is indicative only and based on a 2-person household with multiple devices and simultaneous usage. Broadband performance is affected by multiple factors including number of occupants and devices, simultaneous usage, router range etc. For more information speak to your broadband provider.
Map data ©OpenStreetMap contributors.




