
Wentcliffe Road., Ferrybridge

- PROPERTY TYPE
Town House
- BEDROOMS
3
- BATHROOMS
2
- SIZE
Ask agent
- TENUREDescribes how you own a property. There are different types of tenure - freehold, leasehold, and commonhold.Read more about tenure in our glossary page.
Freehold
Key features
- 3 spacious bedrooms
- 2 modern bathrooms
- 2 cosy reception rooms
- Close to local amenities
- Easy access to transport links
- Ideal for families
- Comfortable living space
- Viewing highly recommended
Description
Welcome to this spacious three-bedroom town home, set across three floors and located in the heart of Ferrybridge. Offering generous living space with two reception rooms and a versatile layout, this property is ideal for families or first-time buyers seeking a comfortable home with room to grow.
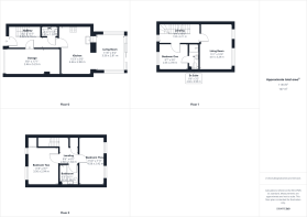
Kitchen / Dining Area - 15'3" x 9'5" - This welcoming kitchen features a modern layout with sleek dark grey and white cabinets and ample counter space. It includes a gas hob with an overhead extractor and dishwasher. Light pours in through the window, and the room opens directly onto a bright conservatory, providing a delightful flow to the garden outside. The dining area comfortably seats four and enjoys views through the conservatory to the garden, making it perfect for family meals or casual entertaining.
Conservatory / Living Room - 11'8" x 9'3" m - The conservatory is a bright and cosy space with a white-paneled ceiling and carpeted floor. Large windows and patio doors let in plenty of natural light and provide easy access to the outdoor area.
Wc - 3'1" x 5'2" - This convenient ground floor WC has a modern white suite with a toilet and basin set within a vanity unit. It is finished with a chrome towel rail and simple decor.
Hallway - 3'2" x 15'7" - The hallway is a practical space with carpeted stairs leading to the first floor. It features a decorative wallpapered wall and opens into the kitchen and living room, creating an inviting entrance to the home.
Living Room 2 - 15'1" x 10'9" - This light and airy first-floor living room provides a peaceful retreat with plenty of space to relax. The room is carpeted and benefits from large windows, which fill the space with natural light. It offers a flexible area that can be used as a lounge or a secondary sitting room.
Bedroom One - 8'7" x 9'6" - Bedroom One is a cosy single room with carpeted flooring and neutral tones that create a calm atmosphere. It includes an en suite shower room for added convenience, ideal for a master bedroom.
Bedroom Two - 11'8" x 9'7" - Bedroom Two is a spacious double room with carpeted floors and a large window that fills the space with natural light. The neutral colour scheme and simple decor provide a restful ambience, perfect for a guest or family bedroom.
Bedroom Three - 15'0" x 7'11" - Bedroom Three is a double room with carpeted flooring and a window overlooking the outside. The space is bright and airy, ideal as a child’s bedroom, guest room, or study.
Bathroom - 6'3" x 6'1" - The bathroom features a classic white suite with a bathtub and overhead shower. The walls are tiled in white with a decorative red trim, and the floor is dark, offering a fresh and clean feel.
Rear Garden - The garden is well maintained with an artificial lawn and various planted pots and raised beds. A paved patio area at the lower level is a pleasant spot for outdoor seating and enjoying the surroundings, while steps lead up to additional garden space, enclosed by wooden fencing for privacy.
Garage - 8'0" x 17'1" - The garage provides secure, covered parking and additional storage space. It is conveniently accessed from the hallway and has an internal door leading into the kitchen.
With its flexible accommodation, two reception rooms, and convenient Ferrybridge location close to local amenities, schools, and transport links, this three-storey terrace is not to be missed. Book your viewing today and see the full potential this fantastic property has to offer.
Brochures
Wentcliffe Road., FerrybridgeBrochure- COUNCIL TAXA payment made to your local authority in order to pay for local services like schools, libraries, and refuse collection. The amount you pay depends on the value of the property.Read more about council Tax in our glossary page.
- Band: B
- PARKINGDetails of how and where vehicles can be parked, and any associated costs.Read more about parking in our glossary page.
- Garage,Driveway
- GARDENA property has access to an outdoor space, which could be private or shared.
- Yes
- ACCESSIBILITYHow a property has been adapted to meet the needs of vulnerable or disabled individuals.Read more about accessibility in our glossary page.
- Ask agent
Wentcliffe Road., Ferrybridge
Add an important place to see how long it'd take to get there from our property listings.
__mins driving to your place
Get an instant, personalised result:
- Show sellers you’re serious
- Secure viewings faster with agents
- No impact on your credit score


Your mortgage
Notes
Staying secure when looking for property
Ensure you're up to date with our latest advice on how to avoid fraud or scams when looking for property online.
Visit our security centre to find out moreDisclaimer - Property reference 34171681. The information displayed about this property comprises a property advertisement. Rightmove.co.uk makes no warranty as to the accuracy or completeness of the advertisement or any linked or associated information, and Rightmove has no control over the content. This property advertisement does not constitute property particulars. The information is provided and maintained by Park Row Properties, Covering West Yorkshire. Please contact the selling agent or developer directly to obtain any information which may be available under the terms of The Energy Performance of Buildings (Certificates and Inspections) (England and Wales) Regulations 2007 or the Home Report if in relation to a residential property in Scotland.
*This is the average speed from the provider with the fastest broadband package available at this postcode. The average speed displayed is based on the download speeds of at least 50% of customers at peak time (8pm to 10pm). Fibre/cable services at the postcode are subject to availability and may differ between properties within a postcode. Speeds can be affected by a range of technical and environmental factors. The speed at the property may be lower than that listed above. You can check the estimated speed and confirm availability to a property prior to purchasing on the broadband provider's website. Providers may increase charges. The information is provided and maintained by Decision Technologies Limited. **This is indicative only and based on a 2-person household with multiple devices and simultaneous usage. Broadband performance is affected by multiple factors including number of occupants and devices, simultaneous usage, router range etc. For more information speak to your broadband provider.
Map data ©OpenStreetMap contributors.






