
Chittlehampton

- PROPERTY TYPE
Terraced
- BEDROOMS
3
- BATHROOMS
2
- SIZE
Ask agent
- TENUREDescribes how you own a property. There are different types of tenure - freehold, leasehold, and commonhold.Read more about tenure in our glossary page.
Freehold
Key features
- Historic listed house
- Highly popular village location
- Requiring completion renovation
- Consents for interior re-modelling/extension and annexe
- Walled rear garden
- Council Tax Band C
- Freehold
Description
Situation - This fascinating Grade II listed property is set on the eastern side of the historic village Square of Chittlehampton. The village is one of the most sought after in the area and has a fine church, which dominates the Square and has the second tallest church tower in Devon. There is also a Post Office/general stores and very popular public house, The Bell Inn.
The market town of South Molton is five miles to the east and is able to meet most everyday requirements with a health centre, bank, Post Office, good range of shops, a supermarket, garage, restaurant and pubs. A wider range of facilities and commercial venues are available in the regional centre of Barnstaple, about eight miles to the north-west. Both Exmoor National Park to the north east, Dartmoor National Park to the south and the renowned North Devon coastline are all within easy reach by car.
Description - Ardlui is a fascinating property believed to date from the mid 16th Century as an open hall house with subsequent alterations over the following centuries. There are many fine features typical of its age including smoke blackened thatch, winder staircase and an interesting gallery in the rear wing of the cottage.
The property forms a significant part of the village, both in its character and appearance in the context of the village Square and the history of Chittlehampton itself.
Planning Permission And Listed Building Consent - Both planning permission and listed building consent (Ref: 73180 and 73181) were granted on 18th October 2021 to undertake significant alterations, remodelling and improvements to the cottage.
Planning permission has also been granted for conversion of the garage and shippon into ancillary accommodation (Ref 66029) Full detailed plans and associated documents are available on the Local Authority's planning portal at planning.northdevon.gov.uk.
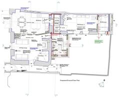
The plans for the GROUND FLOOR provide for a cross passage ENTRANCE HALL, LIVING ROOM with inglenook fireplace, open plan KITCHEN/DINING ROOM, LARDER, UTILITY ROOM, CLOAKROOM and a large DOUBLE BEDROOM with high vaulted ceiling and an EN-SUITE BATHROOM. Above this room is a mezzanine STUDY.
Planning permission has also been granted for conversion of the garage and shippon into ancillary accommodation (Ref 66029 18.12.2018
On the FIRST FLOOR in the main part of the cottage the plans provide for TWO FURTHER DOUBLE BEDROOMS, both with EN-SUITE BATH or SHOWER ROOMS.
Outside - To the front is a cobbled path and unrestricted parking in the village Square. To the rear is a good-sized, enclosed and mainly gravelled walled garden providing much privacy.
Services & Additional Information - All mains services currently connected.
Viewing - Strictly by confirmed prior appointment please through the sole selling agents, Stags on .
Directions - The property will be easily found on the eastern side of the Square in Chittlehampton.
What3words Ref: boxing.similar.sleepless
Brochures
Chittlehampton- COUNCIL TAXA payment made to your local authority in order to pay for local services like schools, libraries, and refuse collection. The amount you pay depends on the value of the property.Read more about council Tax in our glossary page.
- Band: C
- PARKINGDetails of how and where vehicles can be parked, and any associated costs.Read more about parking in our glossary page.
- Yes
- GARDENA property has access to an outdoor space, which could be private or shared.
- Yes
- ACCESSIBILITYHow a property has been adapted to meet the needs of vulnerable or disabled individuals.Read more about accessibility in our glossary page.
- Ask agent
Chittlehampton
Add an important place to see how long it'd take to get there from our property listings.
__mins driving to your place
Get an instant, personalised result:
- Show sellers you’re serious
- Secure viewings faster with agents
- No impact on your credit score
Your mortgage
Notes
Staying secure when looking for property
Ensure you're up to date with our latest advice on how to avoid fraud or scams when looking for property online.
Visit our security centre to find out moreDisclaimer - Property reference 34166997. The information displayed about this property comprises a property advertisement. Rightmove.co.uk makes no warranty as to the accuracy or completeness of the advertisement or any linked or associated information, and Rightmove has no control over the content. This property advertisement does not constitute property particulars. The information is provided and maintained by Stags, South Molton. Please contact the selling agent or developer directly to obtain any information which may be available under the terms of The Energy Performance of Buildings (Certificates and Inspections) (England and Wales) Regulations 2007 or the Home Report if in relation to a residential property in Scotland.
*This is the average speed from the provider with the fastest broadband package available at this postcode. The average speed displayed is based on the download speeds of at least 50% of customers at peak time (8pm to 10pm). Fibre/cable services at the postcode are subject to availability and may differ between properties within a postcode. Speeds can be affected by a range of technical and environmental factors. The speed at the property may be lower than that listed above. You can check the estimated speed and confirm availability to a property prior to purchasing on the broadband provider's website. Providers may increase charges. The information is provided and maintained by Decision Technologies Limited. **This is indicative only and based on a 2-person household with multiple devices and simultaneous usage. Broadband performance is affected by multiple factors including number of occupants and devices, simultaneous usage, router range etc. For more information speak to your broadband provider.
Map data ©OpenStreetMap contributors.










