2 bedroom cottage for sale
Prospect Place, Guisborough, North Yorkshire, TS14

- PROPERTY TYPE
Cottage
- BEDROOMS
2
- BATHROOMS
1
- SIZE
Ask agent
- TENUREDescribes how you own a property. There are different types of tenure - freehold, leasehold, and commonhold.Read more about tenure in our glossary page.
Ask agent
Key features
- No Onward Chain
- Fully modernised
- Stylish finishes
- High street location
- Front yard space
- 2 bedrooms
Description
Ground Floor
Upon entry, you are welcomed into the kitchen, a bright and well-appointed space fitted with a range of contemporary units, wood-effect worktops, and eye-catching patterned tiled splashbacks. Integrated appliances and a washing machine slot seamlessly into the layout, while the breakfast bar provides a casual spot for dining or entertaining.
Leading through, you step into the living room - a generous and inviting space that blends comfort and style. Soft carpeting, bold feature walls, and a striking log-burning stove set within a modern navy surround with wooden mantel create a warm, characterful focal point. With ample room for both lounge and dining furniture, this is the perfect setting for family relaxation or entertaining guests.
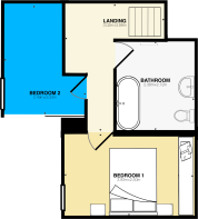
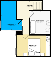
First Floor
The first floor hosts two well-presented bedrooms:
* Bedroom One - A spacious double with striking feature wall panelling, fitted wardrobes with sliding doors, and a skylight that floods the room with natural light.
* Bedroom Two - Currently set with a bunk bed arrangement, making it ideal for children or guests, complete with characterful exposed beam details.
The family bathroom is sleek and modern, complete with a three-piece suite, contrasting floor tiles, contemporary black fittings, and a rainfall shower over the bath.
Exterior
The property is accessed via a decorative gated entrance, leading into a private courtyard-style garden. Fully paved, this low-maintenance outdoor space is both practical and inviting, with a dedicated seating area surrounded by planters and mature greenery - perfect for enjoying a morning coffee or unwinding in the evening.
A unique feature of this home is the dog wash station, an enclosed and functional space ideal for pet owners after countryside walks. Additional outdoor storage ensures practicality, while the blend of traditional stonework and painted finishes enhances the property's period character and curb appeal.
This home offers a wonderful balance of period charm and modern comfort, with stylish interiors and a thoughtfully designed outdoor space - perfect as a family home, holiday retreat, or investment opportunity.
- COUNCIL TAXA payment made to your local authority in order to pay for local services like schools, libraries, and refuse collection. The amount you pay depends on the value of the property.Read more about council Tax in our glossary page.
- Ask agent
- PARKINGDetails of how and where vehicles can be parked, and any associated costs.Read more about parking in our glossary page.
- Ask agent
- GARDENA property has access to an outdoor space, which could be private or shared.
- Yes
- ACCESSIBILITYHow a property has been adapted to meet the needs of vulnerable or disabled individuals.Read more about accessibility in our glossary page.
- Ask agent
Prospect Place, Guisborough, North Yorkshire, TS14
Add an important place to see how long it'd take to get there from our property listings.
__mins driving to your place
Get an instant, personalised result:
- Show sellers you’re serious
- Secure viewings faster with agents
- No impact on your credit score

Your mortgage
Notes
Staying secure when looking for property
Ensure you're up to date with our latest advice on how to avoid fraud or scams when looking for property online.
Visit our security centre to find out moreDisclaimer - Property reference 1prospectplace. The information displayed about this property comprises a property advertisement. Rightmove.co.uk makes no warranty as to the accuracy or completeness of the advertisement or any linked or associated information, and Rightmove has no control over the content. This property advertisement does not constitute property particulars. The information is provided and maintained by Dwela Limited, Guisborough. Please contact the selling agent or developer directly to obtain any information which may be available under the terms of The Energy Performance of Buildings (Certificates and Inspections) (England and Wales) Regulations 2007 or the Home Report if in relation to a residential property in Scotland.
*This is the average speed from the provider with the fastest broadband package available at this postcode. The average speed displayed is based on the download speeds of at least 50% of customers at peak time (8pm to 10pm). Fibre/cable services at the postcode are subject to availability and may differ between properties within a postcode. Speeds can be affected by a range of technical and environmental factors. The speed at the property may be lower than that listed above. You can check the estimated speed and confirm availability to a property prior to purchasing on the broadband provider's website. Providers may increase charges. The information is provided and maintained by Decision Technologies Limited. **This is indicative only and based on a 2-person household with multiple devices and simultaneous usage. Broadband performance is affected by multiple factors including number of occupants and devices, simultaneous usage, router range etc. For more information speak to your broadband provider.
Map data ©OpenStreetMap contributors.





