Swallow Path, Chelmsford, CM2 8XT

- PROPERTY TYPE
 End of Terrace
- BEDROOMS
 3
- BATHROOMS
 1
- SIZE
 Ask agent
- TENUREDescribes how you own a property. There are different types of tenure - freehold, leasehold, and commonhold.Read more about tenure in our glossary page.
 Freehold
Key features
- Quote reference MB0473
 - End of terrace position with front and rear gardens
 - Three well-proportioned bedrooms
 - Two reception rooms offering flexible living and dining options
 - Fitted kitchen with practical layout and storage
 - Large sunroom/conservatory with direct garden access
 - Bright family bathroom with full-sized bath
 - Garage for secure parking or storage
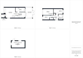
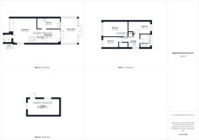
 - Approx. 1,095 sq ft (101.73 m²) of internal living space
 - Located in a quiet residential area with good transport links and local amenities
 
Description
Well-Laid-Out Living Space and Private Garden
This bright and neatly arranged home is set across two floors in a quiet road within the well-established Tile Kiln neighbourhood. Inside, the main living space includes a welcoming lounge that flows into a connected dining area, creating a sociable and light-filled space suitable for everyday living or entertaining. From the dining area, the fitted kitchen is easily reached and includes modern units with good worktop space, along with a direct view of the rear of the property. Beyond the kitchen, the conservatory adds a useful second reception room, offering plenty of flexibility as a playroom, dining area, or relaxed sitting space, with doors opening directly onto the garden.
Upstairs, the layout includes three bedrooms and a centrally placed bathroom. The main bedroom provides enough space for a double bed along with essential furnishings, while the second bedroom, overlooking the back garden, is similarly well-proportioned. The third bedroom is currently set up as a home office, though would also suit use as a nursery or child's room. The family bathroom includes a standard bath with overhead shower, WC and basin, all presented in a clean, neutral style that will suit a range of tastes.
Outside, the rear garden is private and manageable, featuring both lawn and patio areas, well-suited for families who enjoy spending time outdoors. There's enough space for children to play and for adults to enjoy outdoor dining or relaxing in the warmer months. A garage is positioned directly to the rear of the garden, offering secure storage or off-street parking, which is particularly handy in this part of Chelmsford. At the front, a small lawn area and pathway create a pleasant approach to the property, offering a bit of extra privacy from the street.
Set within the sought-after Tile Kiln area, the location is popular with families thanks to its established community and convenient amenities. There are local shops, takeaways and useful everyday services just a short walk away, while Chelmer Park is close by, offering wide green spaces, sports pitches and room to walk, cycle or play. The area is well served by a choice of schools at both primary and secondary level, making it particularly appealing for those with children. For commuters, the property is well positioned for access into Chelmsford city centre by bus or car, and Chelmsford railway station provides direct services into London Liverpool Street. The nearby A12 also offers strong links to surrounding areas by road, giving the property an ideal balance between quiet neighbourhood living and access to the city when needed.
Key Information:
Council Tax Band: C
Tenure: Freehold
Important information on Anti-Money Laundering Check
 
We are required by law to conduct Anti-Money Laundering checks on all parties involved in the sale or purchase of a property. We take the responsibility of this seriously in line with HMRC guidance in ensuring the accuracy and continuous monitoring of these checks. Our partner, Move Butler will carry out the initial checks on our behalf. They will contact you and where possible a biometric check will be sent to you electronically only once your offer has been accepted. 
 
As an applicant, you will be charged a non-refundable fee of £30 (inclusive of VAT) per buyer for these checks. The fee covers data collection, manual checking, and monitoring. You will need to pay this amount direct to Move Butler and complete all Anti-money Laundering checks before your offer can be formally accepted. 
 
You will also be required to provide evidence of how you intend to finance your purchase prior to a formal acceptance of any offer.
Quote reference MB0473
- COUNCIL TAXA payment made to your local authority in order to pay for local services like schools, libraries, and refuse collection. The amount you pay depends on the value of the property.Read more about council Tax in our glossary page.
 - Ask agent
 - PARKINGDetails of how and where vehicles can be parked, and any associated costs.Read more about parking in our glossary page.
 - Garage
 - GARDENA property has access to an outdoor space, which could be private or shared.
 - Private garden
 - ACCESSIBILITYHow a property has been adapted to meet the needs of vulnerable or disabled individuals.Read more about accessibility in our glossary page.
 - Ask agent
 
Energy performance certificate - ask agent
Swallow Path, Chelmsford, CM2 8XT
Add an important place to see how long it'd take to get there from our property listings.
__mins driving to your place
Get an instant, personalised result:
- Show sellers you’re serious
 - Secure viewings faster with agents
 - No impact on your credit score
 
Your mortgage
Notes
Staying secure when looking for property
Ensure you're up to date with our latest advice on how to avoid fraud or scams when looking for property online.
Visit our security centre to find out moreDisclaimer - Property reference S1446253. The information displayed about this property comprises a property advertisement. Rightmove.co.uk makes no warranty as to the accuracy or completeness of the advertisement or any linked or associated information, and Rightmove has no control over the content. This property advertisement does not constitute property particulars. The information is provided and maintained by eXp UK, South East. Please contact the selling agent or developer directly to obtain any information which may be available under the terms of The Energy Performance of Buildings (Certificates and Inspections) (England and Wales) Regulations 2007 or the Home Report if in relation to a residential property in Scotland.
*This is the average speed from the provider with the fastest broadband package available at this postcode. The average speed displayed is based on the download speeds of at least 50% of customers at peak time (8pm to 10pm). Fibre/cable services at the postcode are subject to availability and may differ between properties within a postcode. Speeds can be affected by a range of technical and environmental factors. The speed at the property may be lower than that listed above. You can check the estimated speed and confirm availability to a property prior to purchasing on the broadband provider's website. Providers may increase charges. The information is provided and maintained by Decision Technologies Limited. **This is indicative only and based on a 2-person household with multiple devices and simultaneous usage. Broadband performance is affected by multiple factors including number of occupants and devices, simultaneous usage, router range etc. For more information speak to your broadband provider.
Map data ©OpenStreetMap contributors.




