
Barn conversion for sale
Kings Lane, Longcot, Faringdon, Oxfordshire, SN7

- PROPERTY TYPE
Barn Conversion
- SIZE
Ask agent
- TENUREDescribes how you own a property. There are different types of tenure - freehold, leasehold, and commonhold.Read more about tenure in our glossary page.
Ask agent
Description
Adjacent is a portal framed barn (Use Class B8) with high eaves and used for storage purposes. The property is surrounded by a mix of pasture and arable land.
In all extending to 31.62 acres (12.80 ha).
For sale by private treaty as a whole
Location
The property is located on the junction of the A420 and Kings Lane between Faringdon (3 miles) and Watchfield (2 miles) and located just north of Longcot village itself. Good access routes enable travel to both Oxford (20 miles) and Swindon (8 miles) with mainline trains available from both and Didcot (20 miles). The A420, A34 A419 and M4 are all withing easy reach and provide access to the wider road network.
Amenties
Longcot itself has a number of local amenities including a village hall, pub and primary school. Further more extensive amenities including supermarkets and high street shopping are available in Faringdon, Swindon and Oxford.
Schooling is well catered including the highly regarded St Hugh’s School in Carswell and Pinewood School at Bourton.
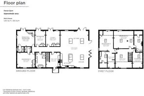
Plover Barn
Situated at the end of a private entrance Plover Barn comprises a well situated barn conversion with superb views of the White Horse.
Originally a class Q conversion the product is a modern 2 storey barn of just under 4,000 sq.ft with an excellent open plan living space.
The ground floor hosts an hall entrance and utility, open plan kitchen / dining / living area, WC and 4 double bedrooms.
Stairs from the entrance hall lead to the first floor with storage / bedrooms (limited head height) and bathroom.
To the exterior is a garden and grounds backing onto fields with driveway parking.
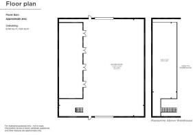
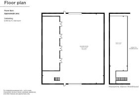
Buildings
Extending to some 6,780 sq.ft the steel portal framed building provides superbly high eaves, concrete floors, cladding and roller shutter doors.
Consent was granted in March 2020 under reference P19/V3352/N4C for conversion to Storage and Distribution (Use Class B8). It is currently let out and used for storage and a gym but resents an opportunity for alternative uses, subject to additional planning.
Land
Boasting an enviable outlook the land is level and wraps around the core holding to the north. A mix of arable and well-established pasture fields with hedged or fenced boundaries.
Classified as a mix of Grade 2 and 3 the land comprises a mix of freely draining, shallow lime rich soils over chalk or limestone sandy and base rich loamy and clayey soils all well suited to their current uses.
Method of Sale
The freehold title is offered for sale as a whole by private treaty.
Tenure & Possession
The property is anticipated to be sold with the benefit of vacant possession barring the unexpired term of on the storage barn. Further details on request.
Planning
The property has previously had planning explored on the yard without success albeit in the agents opinion there remains latent potential for redevelopment of parts.
Services
The property has mains water and electricity supplies. Heating is oil fired and drainage is to a private system. For broadband and mobile connectivity please make your own enquiries and refer to
Wayleaves, Easements & Rights of Way
The property is sold subject to the benefit of all rights including rights of way, whether public or private, light, support, drainage, water and electricity supplies and other rights and obligations, easements and proposed wayleaves from masts, pylons, stays, cables, drains, water, gas and other pipes whether specifically referred to or not.
Health & Safety
All viewings are carried out at the sole risk of the viewer and neither the selling agent nor the vendor takes responsibility.
Sporting Timber & Mineral Rights
The mineral, sporting and timber rights are included in the sale of the freehold in so far as that are owned.
Brochures
Particulars- COUNCIL TAXA payment made to your local authority in order to pay for local services like schools, libraries, and refuse collection. The amount you pay depends on the value of the property.Read more about council Tax in our glossary page.
- Band: TBC
- PARKINGDetails of how and where vehicles can be parked, and any associated costs.Read more about parking in our glossary page.
- Yes
- GARDENA property has access to an outdoor space, which could be private or shared.
- Yes
- ACCESSIBILITYHow a property has been adapted to meet the needs of vulnerable or disabled individuals.Read more about accessibility in our glossary page.
- Ask agent
Energy performance certificate - ask agent
Kings Lane, Longcot, Faringdon, Oxfordshire, SN7
Add an important place to see how long it'd take to get there from our property listings.
__mins driving to your place
Get an instant, personalised result:
- Show sellers you’re serious
- Secure viewings faster with agents
- No impact on your credit score
Your mortgage
Notes
Staying secure when looking for property
Ensure you're up to date with our latest advice on how to avoid fraud or scams when looking for property online.
Visit our security centre to find out moreDisclaimer - Property reference NWR250011. The information displayed about this property comprises a property advertisement. Rightmove.co.uk makes no warranty as to the accuracy or completeness of the advertisement or any linked or associated information, and Rightmove has no control over the content. This property advertisement does not constitute property particulars. The information is provided and maintained by Carter Jonas Rural, Oxford. Please contact the selling agent or developer directly to obtain any information which may be available under the terms of The Energy Performance of Buildings (Certificates and Inspections) (England and Wales) Regulations 2007 or the Home Report if in relation to a residential property in Scotland.
*This is the average speed from the provider with the fastest broadband package available at this postcode. The average speed displayed is based on the download speeds of at least 50% of customers at peak time (8pm to 10pm). Fibre/cable services at the postcode are subject to availability and may differ between properties within a postcode. Speeds can be affected by a range of technical and environmental factors. The speed at the property may be lower than that listed above. You can check the estimated speed and confirm availability to a property prior to purchasing on the broadband provider's website. Providers may increase charges. The information is provided and maintained by Decision Technologies Limited. **This is indicative only and based on a 2-person household with multiple devices and simultaneous usage. Broadband performance is affected by multiple factors including number of occupants and devices, simultaneous usage, router range etc. For more information speak to your broadband provider.
Map data ©OpenStreetMap contributors.






