3 bedroom end of terrace house for sale
Basted Mill, Basted Lane, Borough Green, Sevenoaks, TN15

- PROPERTY TYPE
End of Terrace
- BEDROOMS
3
- BATHROOMS
2
- SIZE
Ask agent
- TENUREDescribes how you own a property. There are different types of tenure - freehold, leasehold, and commonhold.Read more about tenure in our glossary page.
Freehold
Key features
- Positioned in stunning hamlet
- Three bedroom end terrace house
- Set in exclusive private development
- Lounge and dining room
- Conservatory
- Well appointed kitchen
- Master bedroom with ensuite
- Secluded landscaped garden
- Garage
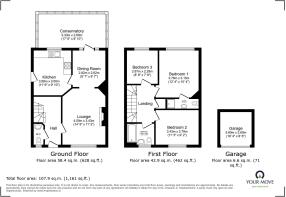
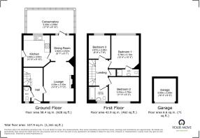
Description
As you leave the bustling village of Borough Green and meander down charming country lanes, you’ll arrive at the tranquil hamlet of Basted. Here, on the edge of a picturesque development overlooking the river and beautiful private grounds, you’ll find this thoughtfully remodelled family home.
The welcoming entrance hall includes a ground-floor cloakroom/WC and leads into a light-filled living room, complete with bespoke wooden shutters and a feature fireplace with a gas fire—perfect for cosy winter evenings. From here, the space flows effortlessly into the dining room and a double-glazed conservatory with a solid roof, creating a versatile area to enjoy all year round.
French doors open onto landscaped gardens, laid with Indian sandstone and bordered with carefully planned, well-stocked beds—an oasis of calm, ideal for relaxing or entertaining. The stylish, well-appointed kitchen with integrated appliances completes the ground floor.
Upstairs, the main bedroom benefits from an en-suite shower room with WC, while the additional bedrooms are served by family bathroom.
Outside, the front garden provides a delightful spot for a table and chairs, where you can sit and watch the ducks on the river Bourne To the rear, a private courtyard driveway leads to your own garage.
Situation
nestled in the picturesque Kent countryside, the hamlet of Basted offers a rare blend of rural charm and modern convenience. Surrounded by rolling fields, woodland walks, and the gentle flow of the River Bourne, it is a haven of natural beauty. The hamlet itself is known for its tranquil setting, with historic cottages, leafy lanes, and a welcoming community spirit that makes it feel a world away from the bustle of everyday life wonder up to the plough for a pint and catch up with village life.
Despite its idyllic atmosphere, Basted is exceptionally well-connected. The neighbouring village of Borough Green provides a range of everyday amenities including shops, cafés, schools, and a mainline station offering fast services into London. Nearby towns such as Sevenoaks and Tonbridge expand the choice further, with excellent shopping, leisure, and schooling options.
For those who love the outdoors, the surrounding area is rich with opportunities. The Kent Downs Area of Outstanding Natural Beauty is on the doorstep, offering miles of scenic footpaths, bridleways, and cycle routes. Golf courses.
IMPORTANT NOTE TO POTENTIAL PURCHASERS & TENANTS:
We endeavour to make our particulars accurate and reliable, however, they do not constitute or form part of an offer or any contract and none is to be relied upon as statements of representation or fact. The services, systems and appliances listed in this specification have not been tested by us and no guarantee as to their operating ability or efficiency is given. All photographs and measurements have been taken as a guide only and are not precise. Floor plans where included are not to scale and accuracy is not guaranteed. If you require clarification or further information on any points, please contact us, especially if you are traveling some distance to view. POTENTIAL PURCHASERS: Fixtures and fittings other than those mentioned are to be agreed with the seller. POTENTIAL TENANTS: All properties are available for a minimum length of time, with the exception of short term accommodation. Please contact the branch for details. A security deposit of at least one month’s rent is required. Rent is to be paid one month in advance. It is the tenant’s responsibility to insure any personal possessions. Payment of all utilities including water rates or metered supply and Council Tax is the responsibility of the tenant in most cases.
GRA250379/2
Brochures
Web Details- COUNCIL TAXA payment made to your local authority in order to pay for local services like schools, libraries, and refuse collection. The amount you pay depends on the value of the property.Read more about council Tax in our glossary page.
- Band: E
- PARKINGDetails of how and where vehicles can be parked, and any associated costs.Read more about parking in our glossary page.
- Garage,Private
- GARDENA property has access to an outdoor space, which could be private or shared.
- Yes
- ACCESSIBILITYHow a property has been adapted to meet the needs of vulnerable or disabled individuals.Read more about accessibility in our glossary page.
- Ask agent
Basted Mill, Basted Lane, Borough Green, Sevenoaks, TN15
Add an important place to see how long it'd take to get there from our property listings.
__mins driving to your place
Get an instant, personalised result:
- Show sellers you’re serious
- Secure viewings faster with agents
- No impact on your credit score
Your mortgage
Notes
Staying secure when looking for property
Ensure you're up to date with our latest advice on how to avoid fraud or scams when looking for property online.
Visit our security centre to find out moreDisclaimer - Property reference GRA250379. The information displayed about this property comprises a property advertisement. Rightmove.co.uk makes no warranty as to the accuracy or completeness of the advertisement or any linked or associated information, and Rightmove has no control over the content. This property advertisement does not constitute property particulars. The information is provided and maintained by Your Move, Longfield. Please contact the selling agent or developer directly to obtain any information which may be available under the terms of The Energy Performance of Buildings (Certificates and Inspections) (England and Wales) Regulations 2007 or the Home Report if in relation to a residential property in Scotland.
*This is the average speed from the provider with the fastest broadband package available at this postcode. The average speed displayed is based on the download speeds of at least 50% of customers at peak time (8pm to 10pm). Fibre/cable services at the postcode are subject to availability and may differ between properties within a postcode. Speeds can be affected by a range of technical and environmental factors. The speed at the property may be lower than that listed above. You can check the estimated speed and confirm availability to a property prior to purchasing on the broadband provider's website. Providers may increase charges. The information is provided and maintained by Decision Technologies Limited. **This is indicative only and based on a 2-person household with multiple devices and simultaneous usage. Broadband performance is affected by multiple factors including number of occupants and devices, simultaneous usage, router range etc. For more information speak to your broadband provider.
Map data ©OpenStreetMap contributors.







