Commercial property for sale
Pheasant Mill, Dunsdale Road, Selkirk, Selkirkshire, TD7
- SIZE
Ask agent
- SECTOR
Commercial property for sale
- USE CLASSUse class orders: A2 Financial and Professional Services, B2 General Industrial and B8 Storage and Distribution
A2, B2, B8
Key features
- Former Mill Complex
- Situated in one of the regions main commercial centres
- Pheasant Mill GIA 915.26 sq m (9,848 sq ft)
- Cowshed GIA 337.06 sq m (3,627 sq ft)
Description
- Former Mill Complex
- Situated in one of the regions main commercial centres
- Pheasant Mill GIA 915.26 sq m (9,848 sq ft)
- Cowshed GIA 337.07 sq m (3,627 sq ft)
- Available as a whole or as separate Lots
- As a Whole Offers Over £365,000
- Lot 1: Pheasant Mill Offers Over £165,000
- Lot 2: Cowshed Offers Over £200,000
Description
The subjects comprise the former office block serving the Gardiners Mill complex.
Main Mill: Offices/stores
A former mill building with original stone built offices to the front with attractive façade to Dunsdale Road and turret to the southeastern corner. The original part of this building is believed to date to around 1895 and is of traditional construction with natural stone elevations. A brick built extension has been provided to the rear with rendered finish and this is believed to date to the 1950s. This building has a 5 span pitched roof supported on cast iron and steel props, predominately covered in slate but incorporating roof lights to the northern pitches.
Warehouse: Warehousing and production.
A more recent brick built warehouse dating to around the 1970s with pitched roof of relatively light weight steel framed construction and single skin box profile cladding. Concrete floor. PVC rainwater goods. Barn doors opening to loading bay to the south.
Prefabricated Building: Prefabricated extension/ Reception/Dispatches.
A lightweight timber framed construction under flat roof believed to date to the 1970s.
The site is accessed via Dunsdale Road with tarmacadam car park and yard to the west of the site and lawned garden area in front of the office building.
The Cow Shed: A modern three bay commercial unit. The building is of steel portal framed construction with galvanized z-purlins supporting a pitched roof clad in insulated composite panelling incorporating polycarbonate roof lights to approximately 10% of the surface area.
The unit has a float finish concrete floor. Personnel access/ fire doors are provided to the front and rear elevation of the building. There is an electronically operated roller shutter door to the front elevation with clearance dimensions of 3.67 m high by 3.67 m wide.
Internally, the unit is fitted out with ancillary accommodation along the northern end constructed with stud partition walling. A timber staircase leads to the mezzanine level providing further ancillary accommodation. The office accommodation is completed to a good specification plasterboard linings and ceilings. Windows comprise u-pvc framed double glazed units. Rainwater goods comprise metal box guttering with pvc downpipes.
Location
Pheasant Mill is situated on the northern side of Selkirk within the Riverside area of the town. This was the original base for the majority of the local woollen/textile mills.
The Riverside area of Selkirk is predominantly occupied for employment uses falling within Classes 4, 5 and 6 of the Town and Country Planning (Use Classes) (Scotland) Order 1997.
The area is now considered to be one of the regions main commercial centres having benefited from significant investment from both the private and public sectors in recent years, following the decline of the textile industry.
Selkirk occupies a central position within the Scottish Borders. The settlement has a population of 4,663 according to the 2022 population census, a decrease of 9.34% over that recorded at the 2001 Population Census (4,990). The population within a ten mile radius is 54,258 with an average household income of £27,226 (Source: CoStar).
The Town is between Galashiels (seven miles north) and Hawick (eleven miles south), the two largest population centres within the Scottish Borders with populations around 14,000 and 16,000 respectively. Selkirk is conveniently situated to serve the other main towns within the Scottish Borders with good road links via the A7 arterial route.
The Royal Burgh of Selkirk lies on the Selkirk Water a tributary of the River Tweed. The people of the town are known as the 'Souters' which means cobblers ('shoemakers and menders'). Selkirk is one of the oldest Royal Burgh's in Scotland it is reputed to have been the site of the earliest settlement within the Scottish Borders.
'Selkirk' means 'Church of the Forest' from the old English SELE ('hall or manor') Cirice ('church').
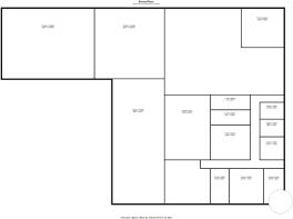
The accommodation comprises:
Main Building
Entrance hall with mahogany panelling leading to reception office, three further offices, store room and north hall with access to two further offices, ladies WCs with two WC cubicles each with low flush unit and two wash hand basins; gents WCs with two WC cubicles with two low flush units, two wall mounted urinals and two wash hand basins. North entrance hall office, kitchen, rest room, stock room, main store room and 'finishing' room. Links through from the main store room to warehouse and from finishing room to the pre-fabricated building.
Prefabricated Building
Previously a showroom/shop this building now provides reception office together with packing/dispatch area and machine area. There are internal doors to the east linking to the 'sales' room and the vaulted 'finishing' room.
Warehouse:
The warehouse has been sub-divided into two distinct areas. Barn doors from the western end open onto the loading bay to the front.
Cow Shed
Main unit with southern elevation sub-divided with studwork partition walling to provide two offices, a kitchen, ladies and gents wc cubicle and store/ gun room; stairs to mezzanine level providing admin office and store.
Energy Performance Certificate
TBC
Planning Status
Planning Policy for this area is detailed within the Scottish Borders Local Development Plan 2016.
This area of Selkirk is zoned within the Local Development Plan for the retention of Employment Uses. Employment uses includes uses falling within Class 4 (Business), Class 5 (General Industrial) and Class 6 (Storage or Distribution) of the Town and Country (Use Classes) (Scotland) Order 1997.
The subjects are not understood to be Listed and are situated out with the town's Conservation Area.
Value Added Tax
Unless otherwise stated the prices quoted are exclusive of VAT. The subjects are not understood to be elected to VAT.
Rateable Value
The subjects are assessed to the following Rateable Values effective from 01-April-2023:
Pheasant Miil: Warehouse £22,000
Pheasant Mill: Store £3,350
Cow Shed: Store £14,400
Offers
Offers in Scottish Legal Form should be submitted to the Selling Agents.
A closing date for offers may be fixed and interested parties are advised to register their interest with the Selling Agents. The Vendors shall not be bound to accept the highest or indeed any offer.
Offers
Available as a Whole: Offers Over £365,000
Lot 1: Pheasant Mill-Offers Over £165,000
Lot 2: Cowshed-Offers Over £200,000
Offers in Scottish Legal Form should be submitted to the Selling Agents clearly stating area of offer (as a whole or individual Lot).
A closing date for offers may be fixed and interested parties are advised to register their interest with the Selling Agents. The Vendors shall not be bound to accept the highest or indeed any offer.
VIEWING
By appointment with the sole agents.
Edwin Thompson, Chartered Surveyors
76 Overhaugh Street
Galashiels
TD1 1DP
Tel.
E-mail: g.
IMPORTANT NOTICE
Edwin Thompson for themselves and for the Vendor of this property, whose Agents they are, give notice that:
1. The particulars are set out as a general outline only for the guidance of intending purchasers and do not constitute, nor constitute part of, any offer or contract.
2. All descriptions, dimensions, plans, reference to condition and necessary conditions for use and occupation and other details are given in good faith and are believed to be correct, but any intending purchasers
should not rely on them as statements or representations of fact but must satisfy themselves by inspection or otherwise as to their correctness.
3. No person in the employment of Edwin Thompson has any authority to make or give any representation or warranty whatsoever in relation to this property or these particulars, nor to enter into any contract relating to the property on behalf of the Agents, nor into any contract on behalf of the Vendor.
4. No responsibility can be accepted for loss or expense incurred in viewing the property or in any other way in the event of the property being sold or withdrawn.
5. Edwin Thompson is the generic trading name for Edwin Thompson Property Services Limited, a Limited Company registered in England and Wales (no.07428207)
Registered office:28 St John's Street, Keswick, Cumbria, CA12 5AF
Brochures
Pheasant Mill, Dunsdale Road, Selkirk, Selkirkshire, TD7
NEAREST STATIONS
Distances are straight line measurements from the centre of the postcode- Galashiels Station4.7 miles
- Tweedbank Station4.8 miles
Notes
Disclaimer - Property reference Pheasant. The information displayed about this property comprises a property advertisement. Rightmove.co.uk makes no warranty as to the accuracy or completeness of the advertisement or any linked or associated information, and Rightmove has no control over the content. This property advertisement does not constitute property particulars. The information is provided and maintained by EDWIN THOMPSON, Galashiels. Please contact the selling agent or developer directly to obtain any information which may be available under the terms of The Energy Performance of Buildings (Certificates and Inspections) (England and Wales) Regulations 2007 or the Home Report if in relation to a residential property in Scotland.
Map data ©OpenStreetMap contributors.





