Drumcondra, Dublin, Ireland
- PROPERTY TYPE
Semi-Detached
- BEDROOMS
3
- BATHROOMS
1
- SIZE
753 sq ft
70 sq m
Description
KELLY BRADSHAW DALTON are truly delighted to present No.18 Rathlin Road, Drumcondra, Dublin 9, a beautifully presented and meticulously renovated family home nestled on one of Drumcondra's most desirable, tree lined streets.
From the moment you arrive, No.18 makes a lasting impression. Its elegant exterior has been beautifully enhanced with a freshly laid driveway, flower box and a picturesque walled garden, all crowned by a charming sage green front door that hints at the character and warmth waiting inside. The front garden not only adds curb appeal but also offers the rare luxury of off street parking, along with convenient side access, a truly valuable feature in this highly desirable neighbourhood.
Step inside and you'll be greeted by interiors that effortlessly blend original character with modern design. Lovingly restored and thoughtfully styled, the home retains original internal doors throughout, creating a beautiful thread of authenticity across both floors. The living room, decorated in soft muted tones, invites calm and comfort, the perfect retreat for both quiet evenings and lively gatherings with family and friends.
To the rear, the modern, fully fitted kitchen is both elegant and functional, with a layout ideal for family life, cooking and enjoying views of the garden. Fully fitted with beautiful shaker style units, there is plenty of storage and ample counter space for food preparations. The beautiful porcelain tiled flooring, paired with natural light flooding the space, create a contemporary heart to the home.
But it is the rear garden that truly steals the show! A breathtaking sanctuary that feels as though it's been plucked from the pages of a storybook. Vast in scale and rich with character, this beautiful space unfolds like a hidden world, where every corner whispers serenity and wonder. Mature trees and artfully sculpted greenery frame a series of thoughtfully designed zones, each offering its own quiet char, be it a secluded bench beneath the trees while reading a book, a sun drenched patio perfect for alfresco dining, or winding paths that invite exploration and play.
Whether you're hosting family gatherings, enjoying a peaceful morning coffee, or watching little ones weave through its secret spaces, this is a garden created not just to be seen, but to be lived in. It's a place where memories bloom and simply put, is unforgettable!
Upstairs, the generous bedrooms are bathed in natural light. The master and second double room are graced with spectacular original cast iron fireplaces, adding a timeless charm that elevates the space. Each room reflects the same attention to detail found throughout the home, both elegant and welcoming. The master bedroom also presents the opportunity to install an en-suite bathroom if desired.
Location is of real importance when it comes to No.18 Rathlin Road. Only a stone's throw from a wealth of amenities such as shops, restaurants, and public transport links providing easy access to the City Centre. Further amenities in the locality include All Hallows College, Dominican College, Maryfield Secondary School, Ard Scoil Ris, DCU, Bons Secour Hospital, and Beaumont Hospital close by. For the sports enthusiast, Croke Park and St. Vincent's GAA are all only a short distance away.
The City Centre is a short bus ride away and commuters are very well catered for in the area with several bus routes serving the locale in addition to close proximity to the M1 & M50 making this the ideal setting for a family home. Griffith Park that extends to 7.5 hectares is a 5-minute walk away. The Tolka River meanders through this park and during the warmer months the children can paddle in the slow flowing shallow water. In winter it has the perfect hills for snow play. Albert College Park is also within striking distance.
Finding a turnkey family home of this calibre, with such enchanting outdoor space, original charm and a prime location, is rare. No.18 Rathlin Road is truly something special and viewing is essential to appreciate all that it has to offer you.
Features
120FT REAR GARDEN
OFF STREET PARKING FOR 2 CARS
SIDE ACCESS
PRIME LOCATION
EXCELLENT TRANSPORT LINKS
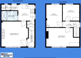
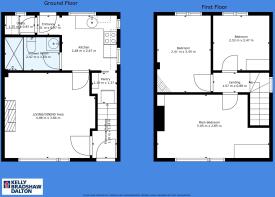
Rooms
Hall - 1.24m x 1.1m
Living / Dining Room - 4.08m x 3.84m
Kitchen - 2.48m x 2.47m
Pantry - 1.37m x 1.14m
Bathroom - 2.47m x 1.5m
Utility - 1.35m x 0.87m
Landing - 1.67m x 0.88m
Bedroom One - 5.05m x 2.85m
Bedroom Two - 3.45m x 2.41m
Bedroom Three - 2.53m x 2.47m
Drumcondra, Dublin, Ireland
NEAREST AIRPORTS
Distances are straight line measurements- Dublin(International)4.6 miles
- Waterford(International)89.1 miles
- Belfast(International)89.8 miles
Advice on buying Irish property
Learn everything you need to know to successfully find and buy a property in Ireland.
Notes
This is a property advertisement provided and maintained by KBD, Dublin (reference 18rathlinroad) and does not constitute property particulars. Whilst we require advertisers to act with best practice and provide accurate information, we can only publish advertisements in good faith and have not verified any claims or statements or inspected any of the properties, locations or opportunities promoted. Rightmove does not own or control and is not responsible for the properties, opportunities, website content, products or services provided or promoted by third parties and makes no warranties or representations as to the accuracy, completeness, legality, performance or suitability of any of the foregoing. We therefore accept no liability arising from any reliance made by any reader or person to whom this information is made available to. You must perform your own research and seek independent professional advice before making any decision to purchase or invest in overseas property.




