
5 bedroom detached house for sale
Prestbury Road, Wilmslow, Cheshire, SK9

- PROPERTY TYPE
Detached
- BEDROOMS
5
- BATHROOMS
4
- SIZE
Ask agent
- TENUREDescribes how you own a property. There are different types of tenure - freehold, leasehold, and commonhold.Read more about tenure in our glossary page.
Freehold
Key features
- Self-build 0.58 acre plot with Planning Permission granted (Cheshire East Application Reference Number: 24/1000M) Striking modern regency style residence offering five bedrooms & four bathrooms
- Two formal reception rooms & an incredible open plan living/dining/kitchen
- Proposed detached double garage
- Potential to create a second floor within the roof space subject to amendments & necessary consents
- No chain
Description
Description
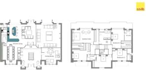
The purchase of Plot 1, 9 Prestbury Road represents a rare opportunity to acquire a self-build 0.58 acre plot with Planning Permission granted (Cheshire East Application Reference Number: 24/1000M) for the construction of a striking modern regency style residence offering five bedrooms, four bathrooms, two formal reception rooms and an incredible open plan living/dining/kitchen.
An impressive reception hall and galleried landing, utility/boot room, pantry, downstairs WC and a detached double garage form part of the design.
There is potential for further accommodation by the creation of a second floor within the roof space subject to amendments to the design and the necessary consents.
Location
Set within a generous 0.54 acre plot this exclusive residential development site is located on one of the area’s most desirable roads. Prestbury road is situated 1 mile from the thriving town centre of Wilmslow and the train station which offers a 1hr 56mins service to London Euston and a 17 minute service to Manchester Piccadilly.
Wilmslow is renowned for its excellent shopping and all the main supermarkets are represented along with specialist shops, restaurants, bars and Hoopers department store. The area has an excellent choice of private schools including Pownall Hall (1.9 miles), Wilmslow Prep (1.4 miles), The Ryleys (2.4 miles), Alderley Edge School for Girls (2.1 miles), The Kings School Macclesfield (4.7 miles).
Surrounded by glorious Cheshire countryside, walks can be enjoyed from the door step; the Bollin Valley is only 0.5 miles away. The property is also conveniently situated for access to the villages of Alderley Edge (2.2 miles) and Prestbury (3.8 miles). Manchester Airport is 4.9 miles away.
Acreage: 0.58 Acres
Brochures
Web Details- COUNCIL TAXA payment made to your local authority in order to pay for local services like schools, libraries, and refuse collection. The amount you pay depends on the value of the property.Read more about council Tax in our glossary page.
- Band: TBC
- PARKINGDetails of how and where vehicles can be parked, and any associated costs.Read more about parking in our glossary page.
- Yes
- GARDENA property has access to an outdoor space, which could be private or shared.
- Ask agent
- ACCESSIBILITYHow a property has been adapted to meet the needs of vulnerable or disabled individuals.Read more about accessibility in our glossary page.
- Ask agent
Energy performance certificate - ask agent
Prestbury Road, Wilmslow, Cheshire, SK9
Add an important place to see how long it'd take to get there from our property listings.
__mins driving to your place
Get an instant, personalised result:
- Show sellers you’re serious
- Secure viewings faster with agents
- No impact on your credit score
Your mortgage
Notes
Staying secure when looking for property
Ensure you're up to date with our latest advice on how to avoid fraud or scams when looking for property online.
Visit our security centre to find out moreDisclaimer - Property reference WIS130078. The information displayed about this property comprises a property advertisement. Rightmove.co.uk makes no warranty as to the accuracy or completeness of the advertisement or any linked or associated information, and Rightmove has no control over the content. This property advertisement does not constitute property particulars. The information is provided and maintained by Savills, Wilmslow. Please contact the selling agent or developer directly to obtain any information which may be available under the terms of The Energy Performance of Buildings (Certificates and Inspections) (England and Wales) Regulations 2007 or the Home Report if in relation to a residential property in Scotland.
*This is the average speed from the provider with the fastest broadband package available at this postcode. The average speed displayed is based on the download speeds of at least 50% of customers at peak time (8pm to 10pm). Fibre/cable services at the postcode are subject to availability and may differ between properties within a postcode. Speeds can be affected by a range of technical and environmental factors. The speed at the property may be lower than that listed above. You can check the estimated speed and confirm availability to a property prior to purchasing on the broadband provider's website. Providers may increase charges. The information is provided and maintained by Decision Technologies Limited. **This is indicative only and based on a 2-person household with multiple devices and simultaneous usage. Broadband performance is affected by multiple factors including number of occupants and devices, simultaneous usage, router range etc. For more information speak to your broadband provider.
Map data ©OpenStreetMap contributors.





