
West Street, Bishops Lydeard, Taunton, Somerset, TA4

- PROPERTY TYPE
Semi-Detached
- BEDROOMS
2
- BATHROOMS
1
- SIZE
Ask agent
- TENUREDescribes how you own a property. There are different types of tenure - freehold, leasehold, and commonhold.Read more about tenure in our glossary page.
Freehold
Key features
- Cosy character cottage
- Central village location
- Feature fireplace with woodburner
- Good sized accommodation
- Shutters
- Private enclosed Garden
- Along with Courtyard Garden
Description
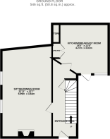
Cobblestones is a delightful two bedroom semi-detached cottage set in the heart of the sought after village of Bishops Lydeard. This cosy and characterful property is an ideal home for those that are wanting the country lifestyle whilst being a short drive from the county town. The accommodation briefly comprises:- entrance hall with under stair storage, lounge/dining room and large feature fireplace with fitted wood burner. There are two windows overlooking the front elevation with shutters and a large kitchen with modern fitted matching wall and base units including a large island work area. To the first floor, there are two double bedrooms and a spacious family bathroom.
Bishops Lydeard provides an excellent range of day to day amenities which include a primary school, public house, parish church, village hall, Doctor’s surgery, convenience store and news agents . It is well placed for easy access to the Quantock Hills which are nearby and is designated as an Area of Outstanding Natural Beauty. The County Town of Taunton is about 6 miles away and is easily accessible, providing an extensive range of shopping, educational, sporting and cultural facilities, along with access to the M5 motorway and a mainline intercity rail link.
The property is approached over a cobble stone path, leading to the front door and courtyard garden. The private enclosed garden is found across the cobblestones up a flight of stairs and is fully enclosed with a wooden gate. It is mainly laid to lawn and has mature hedging with some shrubs.
Brochures
Particulars- COUNCIL TAXA payment made to your local authority in order to pay for local services like schools, libraries, and refuse collection. The amount you pay depends on the value of the property.Read more about council Tax in our glossary page.
- Band: C
- PARKINGDetails of how and where vehicles can be parked, and any associated costs.Read more about parking in our glossary page.
- Ask agent
- GARDENA property has access to an outdoor space, which could be private or shared.
- Yes
- ACCESSIBILITYHow a property has been adapted to meet the needs of vulnerable or disabled individuals.Read more about accessibility in our glossary page.
- Ask agent
Energy performance certificate - ask agent
West Street, Bishops Lydeard, Taunton, Somerset, TA4
Add an important place to see how long it'd take to get there from our property listings.
__mins driving to your place
Get an instant, personalised result:
- Show sellers you’re serious
- Secure viewings faster with agents
- No impact on your credit score
Your mortgage
Notes
Staying secure when looking for property
Ensure you're up to date with our latest advice on how to avoid fraud or scams when looking for property online.
Visit our security centre to find out moreDisclaimer - Property reference TAU250513. The information displayed about this property comprises a property advertisement. Rightmove.co.uk makes no warranty as to the accuracy or completeness of the advertisement or any linked or associated information, and Rightmove has no control over the content. This property advertisement does not constitute property particulars. The information is provided and maintained by Greenslade Taylor Hunt, Taunton. Please contact the selling agent or developer directly to obtain any information which may be available under the terms of The Energy Performance of Buildings (Certificates and Inspections) (England and Wales) Regulations 2007 or the Home Report if in relation to a residential property in Scotland.
*This is the average speed from the provider with the fastest broadband package available at this postcode. The average speed displayed is based on the download speeds of at least 50% of customers at peak time (8pm to 10pm). Fibre/cable services at the postcode are subject to availability and may differ between properties within a postcode. Speeds can be affected by a range of technical and environmental factors. The speed at the property may be lower than that listed above. You can check the estimated speed and confirm availability to a property prior to purchasing on the broadband provider's website. Providers may increase charges. The information is provided and maintained by Decision Technologies Limited. **This is indicative only and based on a 2-person household with multiple devices and simultaneous usage. Broadband performance is affected by multiple factors including number of occupants and devices, simultaneous usage, router range etc. For more information speak to your broadband provider.
Map data ©OpenStreetMap contributors.









