Wimborne Drive, Allerton

- PROPERTY TYPE
Detached
- BEDROOMS
3
- BATHROOMS
2
- SIZE
1,152 sq ft
107 sq m
- TENUREDescribes how you own a property. There are different types of tenure - freehold, leasehold, and commonhold.Read more about tenure in our glossary page.
Freehold
Key features
- Three Double Bedrooms
- Extended
- Garage
- Sunroom
- Desirable Location
- Two Reception Rooms
- Drive
- South Facing Garden
- Council Tax Band - C
- Detached
Description
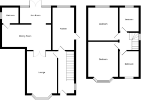
Upon entering the home, you are greeted by a spacious hallway. The lounge features a charming fireplace, providing a cosy and inviting setting ideal for relaxing evenings or hosting guests. The dining area offers an impressive open-plan layout, flooded with natural light from large windows and commanding delightful garden views. This area also incorporates a sun room, creating an airy, tranquil space to unwind and enjoy the outdoors from the comfort of your home.
The extended kitchen is thoughtfully designed with built-in pantry and attractive wood units, combining practicality with style. It provides ample storage and worktop space, catering to all culinary requirements.
Accommodation comprises a generous master double bedroom, a second double bedroom, and a third double bedroom, offering flexible living for families of all ages. The property benefits from two well-presented bathrooms: one modern, fully tiled, house bathroom fitted with a shower over bath, and a second, modern, ground floor, wet room for added convenience and versatility.
Designed with comfort and functionality in mind, this delightful home offers an exceptional opportunity for those seeking a family-friendly residence. The open-plan features, harmonious living spaces, and desirable location ensure this property stands out as an excellent choice.
This property provides further opportunity to extend STPP.
Early viewing is highly recommended to fully appreciate all that this wonderful home has to offer. Please contact our office to arrange your appointment.
LOUNGE 11' 3" x 18' 3" (3.44m x 5.57m)
DINING ROOM 19' 3" x 8' 6" (5.88m x 2.61m)
SUNROOM 11' 11" x 6' 2" (3.64m x 1.88m)
KITCHEN 8' 3" x 16' 3" (2.52m x 4.97m)
WETROOM 6' 3" x 6' 0" (1.92m x 1.84m)
BATHROOM 5' 4" x 10' 11" (1.63m x 3.35m)
BEDROOM 11' 4" x 13' 4" (3.46m x 4.07m)
BEDROOM 10' 4" x 11' 5" (3.16m x 3.50m)
BEDROOM 8' 5" x 8' 9" (2.57m x 2.67m)
- COUNCIL TAXA payment made to your local authority in order to pay for local services like schools, libraries, and refuse collection. The amount you pay depends on the value of the property.Read more about council Tax in our glossary page.
- Ask agent
- PARKINGDetails of how and where vehicles can be parked, and any associated costs.Read more about parking in our glossary page.
- Garage,Off street
- GARDENA property has access to an outdoor space, which could be private or shared.
- Yes
- ACCESSIBILITYHow a property has been adapted to meet the needs of vulnerable or disabled individuals.Read more about accessibility in our glossary page.
- Ask agent
Wimborne Drive, Allerton
Add an important place to see how long it'd take to get there from our property listings.
__mins driving to your place
Get an instant, personalised result:
- Show sellers you’re serious
- Secure viewings faster with agents
- No impact on your credit score
Affordability
Notes
Staying secure when looking for property
Ensure you're up to date with our latest advice on how to avoid fraud or scams when looking for property online.
Visit our security centre to find out moreDisclaimer - Property reference 100704009779. The information displayed about this property comprises a property advertisement. Rightmove.co.uk makes no warranty as to the accuracy or completeness of the advertisement or any linked or associated information, and Rightmove has no control over the content. This property advertisement does not constitute property particulars. The information is provided and maintained by Martin & Co, Saltaire. Please contact the selling agent or developer directly to obtain any information which may be available under the terms of The Energy Performance of Buildings (Certificates and Inspections) (England and Wales) Regulations 2007 or the Home Report if in relation to a residential property in Scotland.
*This is the average speed from the provider with the fastest broadband package available at this postcode. The average speed displayed is based on the download speeds of at least 50% of customers at peak time (8pm to 10pm). Fibre/cable services at the postcode are subject to availability and may differ between properties within a postcode. Speeds can be affected by a range of technical and environmental factors. The speed at the property may be lower than that listed above. You can check the estimated speed and confirm availability to a property prior to purchasing on the broadband provider's website. Providers may increase charges. The information is provided and maintained by Decision Technologies Limited. **This is indicative only and based on a 2-person household with multiple devices and simultaneous usage. Broadband performance is affected by multiple factors including number of occupants and devices, simultaneous usage, router range etc. For more information speak to your broadband provider.
Map data ©OpenStreetMap contributors.






