
Land for sale
Church Plain, Loddon
- PROPERTY TYPE
Land
- SIZE
Ask agent
Key features
- Development Opportunity
- Luxury Apartments
- Investment
- No Chain
- Added Commercial Unit
- Ready To Go
- Amenities Already Connected
- Village Location
- Full Planning Consent
- High Demand Location
Description
Please call the Pymm & Co office for further details.
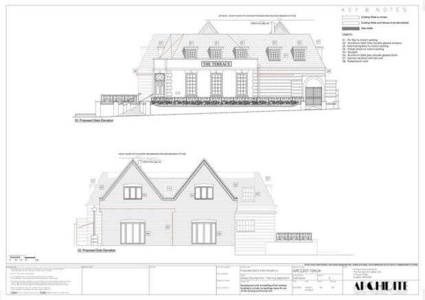
The site benefits from approved planning consent for the conversion and development of six luxury apartments together with a self-contained commercial unit, creating an attractive and versatile mixed-use scheme. All main services including water, sewage, gas, and electricity are already connected to the property, providing a significant advantage for developers and investors alike by reducing both cost and lead-in time for construction.
The proposed development has been thoughtfully designed to complement the character of the village while appealing to the strong demand for high-quality residential accommodation in the area. The six apartments are expected to command considerable interest from both local buyers and investors, with modern, efficient layouts and desirable specifications that cater perfectly to the growing need for stylish living within easy reach of Norwich and the Norfolk Broads.
In addition to the residential element, the scheme incorporates a ground floor commercial unit, approved for A3 use, making it suitable for a wide range of businesses such as estate agents, solicitors, boutique retail, or a café/restaurant. Its central location ensures excellent visibility and footfall, enhancing its appeal to prospective tenants or owner-occupiers.
Loddon itself is a vibrant and well-served village on the edge of the Southern Broads, popular with both residents and visitors. The property lies just a short walk from an extensive range of amenities including shops, restaurants, pubs, medical facilities, and schools. The River Chet, a gateway to the Norfolk Broads National Park, is nearby and provides a strong tourism draw. Norwich, with its mainline rail links to London Liverpool Street and Norwich International Airport, is approximately 12 miles away, while the Norfolk and Suffolk coastline can be reached in under 30 minutes.
This is a rare opportunity to acquire a freehold site with full planning in such a prime position. With all services connected, planning in place, and strong local demand for both luxury apartments and commercial premises, the development promises excellent prospects for capital growth and rental yield.
Key Highlights:
Freehold property and land (formerly a bank) with full planning approval.
Permission granted for six luxury residential apartments plus a separate commercial unit.
All main services connected (water, sewage, gas, electricity).
Commercial unit suitable for A3 use (retail, offices, restaurant, café, professional services).
Located in the centre of Loddon, a popular and well-served Broads village.
Strong demand locally for quality residential and commercial space.
Excellent transport links to Norwich, the Norfolk Broads, and the coast.
This freehold development site combines location, planning certainty, and demand in one compelling investment package. Opportunities of this calibre in such a prime setting are rare and highly sought after. Early viewing and registration for the auction are strongly advised.
Notice
Please note that we have not tested any apparatus, equipment, fixtures, fittings or services and as so cannot verify that they are in working order or fit for their purpose. Pymm & Co cannot guarantee the accuracy of the information provided. This is provided as a guide to the property and an inspection of the property is recommended.
Church Plain, Loddon
NEAREST STATIONS
Distances are straight line measurements from the centre of the postcode- Cantley Station3.2 miles
- Reedham (Norfolk) Station3.8 miles
- Buckenham Station4.3 miles
Notes
Disclaimer - Property reference 17055_PYMM. The information displayed about this property comprises a property advertisement. Rightmove.co.uk makes no warranty as to the accuracy or completeness of the advertisement or any linked or associated information, and Rightmove has no control over the content. This property advertisement does not constitute property particulars. The information is provided and maintained by Pymm & Co, Norwich. Please contact the selling agent or developer directly to obtain any information which may be available under the terms of The Energy Performance of Buildings (Certificates and Inspections) (England and Wales) Regulations 2007 or the Home Report if in relation to a residential property in Scotland.
Auction Fees: The purchase of this property may include associated fees not listed here, as it is to be sold via auction. To find out more about the fees associated with this property please call Pymm & Co, Norwich on 01603 361642.
*Guide Price: An indication of a seller's minimum expectation at auction and given as a Guide Price or a range of Guide Prices. This is not necessarily the figure a property will sell for and is subject to change prior to the auction.
Reserve Price: Each auction property will be subject to a Reserve Price below which the property cannot be sold at auction. Normally the Reserve Price will be set within the range of Guide Prices or no more than 10% above a single Guide Price.
Map data ©OpenStreetMap contributors.






