
Clifton Street, Failsworth

- PROPERTY TYPE
Semi-Detached
- BEDROOMS
3
- BATHROOMS
1
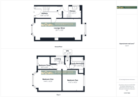
- SIZE
787 sq ft
73 sq m
Key features
- CHAIN FREE
- SEMI-DETACHED
- THREE BEDROOMS
- DRIVEWAY
- LOUNGE/DINER
- REAR GARDEN
- SEPERATE TOILET
- SOUGHT AFTER AREA
- CLOSE TO AMENITIES
Description
The property compromises of upvc double glazing entrance hallway, lounge/diner, kitchen, stairs to three bedroom and bathroom with separate WC.
Outside, you will find a drive to the front of the property, to the rear is an enclosed lawned garden, The location in Failsworth is particularly appealing, with local amenities, schools, and parks within easy reach, making it a desirable area for families and professionals alike.
This semi-detached house on Clifton Street presents an excellent opportunity for those looking to establish a comfortable home in a friendly community. With its spacious layout and prime location, it is sure to attract interest from a variety of potential buyers.
Entrance Hallway - Carpeted hallway, door leading to lounge/diner and kitchen with stairs to first floor. Radiator.
Lounge/Diner - Dual aspect room, carpeted, 2 radiators and electric fire, single light fitting and wall lights.
Kitchen - Side facing kitchen with a range of wall and base units in cream with grey work tops, stainless steel sink with drainer, integrated gas oven, gas hobs with over head extractor fan, fridge freezer, tiled flooring and side door leading to rear garden, under stairs storage.
Stairs And Landing - Carpeted stairs and leading, window at the top of stairs and loft access.
Bedroom One - Front facing bedroom with bay window, carpeted with fitted wardrobes, dressing table and cupboards with shelves. single light fitting with wall lights.
Bedroom Two - Rear facing bedroom, carpeted, neutral decor with radiator and single light fitting.
Bedroom Three - Front facing bedroom, carpeted with radiator and single light fitted.
Family Bathroom - Rear facing bathroom fully tiled with laminate flooring, comprising of white basin and bath with over head shower, storage cupboard and single light fitting.
Wc - Fully tiled WC with spotlight.
Externally - To the front is a tarmac driveway with lawned area to the side, to the rear of the property is an enclosed lawned garden with a shed and green house.
Tenure - We have been advised that the property is Leasehold for 999 years and ends 31st December 2898.
Stamp Duty - Residential property rates
You usually pay Stamp Duty Land Tax (SDLT) on increasing portions of the property price when you buy residential property, for example a house or flat.
The amount you pay depends on:
• when you bought the property
• how much you paid for it
• whether you’re eligible for relief or an exemption
Rates for a single property
You pay SDLT at these rates if, after buying the property, it is the only residential property you own.
You will usually pay 5% on top of these rates if you own another residential property.
Rates from 1 April 2025
Property or lease premium or transfer value SDLT rate
Up to £125,000 Zero
The next £125,000 (the portion from £125,001 to £250,000) 2%
The next £675,000 (the portion from £250,001 to £925,000) 5%
The next £575,000 (the portion from £925,001 to £1.5 million) 10%
The remaining amount (the portion above £1.5 million) 12%
Example
In April 2025 you buy a house for £295,000. The SDLT you owe will be calculated as follows:
• 0% on the first £125,000 = £0
• 2% on the second £125,000 = £2,500
• 5% on the final £45,000 = £2,250
• total SDLT = £4,750
Brochures
Clifton Street, FailsworthMcdermott & Co property link- COUNCIL TAXA payment made to your local authority in order to pay for local services like schools, libraries, and refuse collection. The amount you pay depends on the value of the property.Read more about council Tax in our glossary page.
- Band: B
- PARKINGDetails of how and where vehicles can be parked, and any associated costs.Read more about parking in our glossary page.
- Yes
- GARDENA property has access to an outdoor space, which could be private or shared.
- Yes
- ACCESSIBILITYHow a property has been adapted to meet the needs of vulnerable or disabled individuals.Read more about accessibility in our glossary page.
- Ask agent
Clifton Street, Failsworth
Add an important place to see how long it'd take to get there from our property listings.
__mins driving to your place
Get an instant, personalised result:
- Show sellers you’re serious
- Secure viewings faster with agents
- No impact on your credit score
Your mortgage
Notes
Staying secure when looking for property
Ensure you're up to date with our latest advice on how to avoid fraud or scams when looking for property online.
Visit our security centre to find out moreDisclaimer - Property reference 34184404. The information displayed about this property comprises a property advertisement. Rightmove.co.uk makes no warranty as to the accuracy or completeness of the advertisement or any linked or associated information, and Rightmove has no control over the content. This property advertisement does not constitute property particulars. The information is provided and maintained by Mcdermott & Co Property Agents, Failsworth. Please contact the selling agent or developer directly to obtain any information which may be available under the terms of The Energy Performance of Buildings (Certificates and Inspections) (England and Wales) Regulations 2007 or the Home Report if in relation to a residential property in Scotland.
*This is the average speed from the provider with the fastest broadband package available at this postcode. The average speed displayed is based on the download speeds of at least 50% of customers at peak time (8pm to 10pm). Fibre/cable services at the postcode are subject to availability and may differ between properties within a postcode. Speeds can be affected by a range of technical and environmental factors. The speed at the property may be lower than that listed above. You can check the estimated speed and confirm availability to a property prior to purchasing on the broadband provider's website. Providers may increase charges. The information is provided and maintained by Decision Technologies Limited. **This is indicative only and based on a 2-person household with multiple devices and simultaneous usage. Broadband performance is affected by multiple factors including number of occupants and devices, simultaneous usage, router range etc. For more information speak to your broadband provider.
Map data ©OpenStreetMap contributors.





