
2 bedroom end of terrace house for sale
Deerfield Close, Buckingham

- PROPERTY TYPE
End of Terrace
- BEDROOMS
2
- BATHROOMS
1
- SIZE
Ask agent
- TENUREDescribes how you own a property. There are different types of tenure - freehold, leasehold, and commonhold.Read more about tenure in our glossary page.
Freehold
Key features
- Two Good Sized Bedrooms
- Conservatory Addition
- Refitted Boiler
- Refitted Kitchen & Bathroom
- Two Allocated Parking Spaces
- Overlooking an Open Green
- Great Location
- EPC Rating D
Description
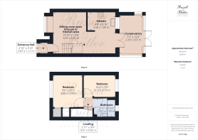
A well presented two bedroom property in a great location and overlooking an open green. The property is well situated on the popular Badgers development, in catchment for the Royal Latin Grammar School, Bourton Meadow Academy and within walking distance to Buckingham town and the local amenities. The property would make an ideal downsize, buy to let investment or first time purchase. The property further benefits from two allocated parking spaces located to the side of the property, refitted kitchen, refitted bathroom and refitted boiler, gas to radiator central heating and Upvc double glazing throughout. The accommodation fully comprises: Entrance porch, sitting room, kitchen, conservatory, first floor landing, two good size bedrooms and a refitted bathroom. There is a good sized enclosed garden to the rear with gated access leading to the two allocated parking spaces. EPC Rating D.
Entrance
Door to:
Entrance Hall
Radiator, door to:
Sitting Room
4.04m Max to rear of staircase x 3.27m Max Upvc double glazed window to front aspect, under stairs storage space, open through to:
Kitchen
2.63m x 1.91m A range of base and eyelevel units, sink unit with instant hot water and mixer tap, cupboard under, work tops over, space for fridge freezer, space for oven, extractor hood over, space for dishwasher, Upvc double glazed window to rear aspect.
Additional Kitchen Space
3.03m x 2.11m A range of built in base and eyelevel units with work tops over, space for washing machine, radiator, door to:
Conservatory
3.67m x 2.26m Upvc double glazed, power connected.
First Floor Landing
Access to loft space.
Bedroom One
3.07m x 2.89m Upvc double glazed window to front aspect, radiator, cupboard housing 'Viessmann' boiler with linen shelving as fitted and a further storage cupboard.
Bedroom Two
3.13m Max x 2.15m Max Upvc double glazed window to rear aspect, radiator.
Family Bathroom
Refitted to comprise white suite of bath with shower over, wash hand basin with mixer tap, cupboard under, low level wc, full and half height tiling, Upvc double glazed window to rear aspect, downlighters, heated towel rail.
Front Aspect
Gravel with steps leading to property entrance.
Rear Garden
Laid mainly to lawn with decked and gravel areas, gated side access to side and gate to additional storage space with storage shed.
Please Note
Council Tax Band: B
EPC Rating: D
Broadband - For Availability - Please visit ofcom
Mobile Phone Coverage and Availability - Please visit ofcom
Measurements on floor plan are approximately due to amongst
other things wall thickness etc. These are therefore not to be relied on. For
more accurate measurements, please see full property brochure when the
measurements are both shown in imperial and metric.
Mortgage Advice
If you require a mortgage we would highly recommend that you speak to our Independent Mortgage Adviser Clare Jarvis. Clare is associated with Mortgage Advice Bureau which is one of the largest and best broker firms in the country, having access to the whole of market and due to the volume of mortgages they place often get exclusive rates not available to others too. Please contact Clare on or .
Brochures
Brochure- COUNCIL TAXA payment made to your local authority in order to pay for local services like schools, libraries, and refuse collection. The amount you pay depends on the value of the property.Read more about council Tax in our glossary page.
- Band: B
- PARKINGDetails of how and where vehicles can be parked, and any associated costs.Read more about parking in our glossary page.
- Yes
- GARDENA property has access to an outdoor space, which could be private or shared.
- Yes
- ACCESSIBILITYHow a property has been adapted to meet the needs of vulnerable or disabled individuals.Read more about accessibility in our glossary page.
- Ask agent
Deerfield Close, Buckingham
Add an important place to see how long it'd take to get there from our property listings.
__mins driving to your place
Get an instant, personalised result:
- Show sellers you’re serious
- Secure viewings faster with agents
- No impact on your credit score
About Russell & Butler, Bucks, South Northants & North Oxon, Buckingham
1 West Street, Buckingham, MK18 1HL



Your mortgage
Notes
Staying secure when looking for property
Ensure you're up to date with our latest advice on how to avoid fraud or scams when looking for property online.
Visit our security centre to find out moreDisclaimer - Property reference 10410728. The information displayed about this property comprises a property advertisement. Rightmove.co.uk makes no warranty as to the accuracy or completeness of the advertisement or any linked or associated information, and Rightmove has no control over the content. This property advertisement does not constitute property particulars. The information is provided and maintained by Russell & Butler, Bucks, South Northants & North Oxon, Buckingham. Please contact the selling agent or developer directly to obtain any information which may be available under the terms of The Energy Performance of Buildings (Certificates and Inspections) (England and Wales) Regulations 2007 or the Home Report if in relation to a residential property in Scotland.
*This is the average speed from the provider with the fastest broadband package available at this postcode. The average speed displayed is based on the download speeds of at least 50% of customers at peak time (8pm to 10pm). Fibre/cable services at the postcode are subject to availability and may differ between properties within a postcode. Speeds can be affected by a range of technical and environmental factors. The speed at the property may be lower than that listed above. You can check the estimated speed and confirm availability to a property prior to purchasing on the broadband provider's website. Providers may increase charges. The information is provided and maintained by Decision Technologies Limited. **This is indicative only and based on a 2-person household with multiple devices and simultaneous usage. Broadband performance is affected by multiple factors including number of occupants and devices, simultaneous usage, router range etc. For more information speak to your broadband provider.
Map data ©OpenStreetMap contributors.





