Chelford Road, Macclesfield, SK10

- PROPERTY TYPE
Semi-Detached
- BEDROOMS
3
- BATHROOMS
1
- SIZE
Ask agent
- TENUREDescribes how you own a property. There are different types of tenure - freehold, leasehold, and commonhold.Read more about tenure in our glossary page.
Freehold
Key features
- No Chain
- Ideal Investment
- Ample Parking
- Prime Location
- Wood Burner
- Energy Efficiency Rating D
Description
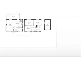
Entrance Hall
Wooden door, double glazed window to the front elevation, carpet flooring, central ceiling light, radiator, smoke alarm, stairs with wooden banisters to the first floor, under stairs storage cupboard.
Lounge
Double glazed window, fireplace with wood burner, carpet flooring, central ceiling lights, double glazed patio doors, radiator, power points.
Dining Kitchen
Double glazed window and door, tiled flooring, a range of wall and base units with double oven, hob, integrated fridge freezer and breakfast bar, inset spot lights, radiator, power points.
Conservatory
UPVC double glazed conservatory, laminate flooring, double glazed doors to the rear garden.
WC
Double glazed window, low level WC, central heating boiler, radiator, central light.
Master Bedroom
Double glazed window, central ceiling light, carpet flooring, bank of fitted wardrobes, radiator, power points.
Bedroom Two
Double glazed window, central light, carpet flooring, radiator, power points.
Bedroom Three
Double glazed window, central light, carpet flooring, radiator, power points.
Bathroom
Double glazed windows, tiled flooring, central ceiling light, vanity unit housing the wash hand basin, low level WC, bath with hand held shower, radiator.
Outside Space
To the front there is a large driveway with ample parking and garage, to the rear there is an delightful enclosed rear garden with decked area, garden shed and mature shrubs and trees.
Disclaimer
Rooftops Estate Agents give notice that these particulars, whilst believed to be accurate, are set out as a general outline only for guidance and do not constitute any part of an offer or contract - intending purchasers should not rely on them as a statements or representations of fact, but must satisfy themselves by inspection or otherwise as to their accuracy. No person in the employment of Rooftops Estate Agents has the authority to make or give representations or warranty in relation to the property.
Disclaimer.
We are not qualified to confirm that power points, showers, central heating systems, open fires/log burner's, gas and electrical equipment are in working order and we would advise prospective purchasers to satisfy themselves on these points prior to exchange of contracts.
Brochures
Brochure 1Brochure 2- COUNCIL TAXA payment made to your local authority in order to pay for local services like schools, libraries, and refuse collection. The amount you pay depends on the value of the property.Read more about council Tax in our glossary page.
- Band: C
- PARKINGDetails of how and where vehicles can be parked, and any associated costs.Read more about parking in our glossary page.
- Garage,Driveway
- GARDENA property has access to an outdoor space, which could be private or shared.
- Private garden
- ACCESSIBILITYHow a property has been adapted to meet the needs of vulnerable or disabled individuals.Read more about accessibility in our glossary page.
- Ask agent
Chelford Road, Macclesfield, SK10
Add an important place to see how long it'd take to get there from our property listings.
__mins driving to your place
Get an instant, personalised result:
- Show sellers you’re serious
- Secure viewings faster with agents
- No impact on your credit score
Your mortgage
Notes
Staying secure when looking for property
Ensure you're up to date with our latest advice on how to avoid fraud or scams when looking for property online.
Visit our security centre to find out moreDisclaimer - Property reference WIS-1JMN15Q0ZHZ. The information displayed about this property comprises a property advertisement. Rightmove.co.uk makes no warranty as to the accuracy or completeness of the advertisement or any linked or associated information, and Rightmove has no control over the content. This property advertisement does not constitute property particulars. The information is provided and maintained by Rooftops, Sales, Letting & Management, Wilmslow. Please contact the selling agent or developer directly to obtain any information which may be available under the terms of The Energy Performance of Buildings (Certificates and Inspections) (England and Wales) Regulations 2007 or the Home Report if in relation to a residential property in Scotland.
*This is the average speed from the provider with the fastest broadband package available at this postcode. The average speed displayed is based on the download speeds of at least 50% of customers at peak time (8pm to 10pm). Fibre/cable services at the postcode are subject to availability and may differ between properties within a postcode. Speeds can be affected by a range of technical and environmental factors. The speed at the property may be lower than that listed above. You can check the estimated speed and confirm availability to a property prior to purchasing on the broadband provider's website. Providers may increase charges. The information is provided and maintained by Decision Technologies Limited. **This is indicative only and based on a 2-person household with multiple devices and simultaneous usage. Broadband performance is affected by multiple factors including number of occupants and devices, simultaneous usage, router range etc. For more information speak to your broadband provider.
Map data ©OpenStreetMap contributors.




