
6 bedroom detached house for sale
Gayton Road, Gayton, Wirral

- PROPERTY TYPE
Detached
- BEDROOMS
6
- BATHROOMS
2
- SIZE
Ask agent
- TENUREDescribes how you own a property. There are different types of tenure - freehold, leasehold, and commonhold.Read more about tenure in our glossary page.
Freehold
Key features
- Six Bedroom Detached House
- Sought After Location
- Stunning Estuary Views
- Large Plot
- Huge Potential
- Create Your Forever Home
- Sold With No Chain
- Council Tax Band - G
- Must View
Description
Hewitt Adams is excited to showcase this truly UNIQUE property located on Gayton Road in Heswall - a short walk from the Lower Village, the Golf Club and Gayton Primary.
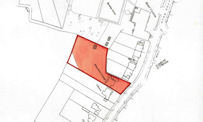
Occupying an INCREDIBLE PLOT - the property has one of the LARGEST GARDENS the agent has seen in Heswall, and it truly has to be seen to be believed.
Whether such a huge plot offers up POTENTIAL DEVELOPMENT OPPORTUNITIES can not be confirmed by the agents - interested parties are advised to make their own investigations.
In brief the accommodation affords: entrance hall, lounge, dining room, living room, kitchen diner, utility and w.c. Upstairs there are SIX bedrooms and a family bathroom. All of the rear bedrooms and rear reception rooms enjoy stunning ESTUARY VIEWS.
The gardens are SOUTH FACING and include SEVERAL LARGE LAWNED AREAS, mature trees, flowerbeds and hedging. With a large garage and ample off-road parking.
Sold with NO ONWARD CHAIN - Call Hewitt Adams on to view.
Front Entrance - Into:
Hall - Radiator, power points, stairs to first floor
Lounge - 3.87 x 4.46 (12'8" x 14'7") - Radiator, power points, bay window to front
Dining Room - 4.54 x 3.94 (14'10" x 12'11") - Window to rear, power points, radiator
Living Room - 5.82 x 4.27 (19'1" x 14'0") - Window to rear, radiator, power points, door to rear porch
Kitchen Diner - 3.06 x 4.54 (10'0" x 14'10") - Wall and base units, Arga, space for kitchen appliances
Utility - Space and plumbing for washing machine, wall and base units
W.C - W.C, wash hand basin
Upstairs -
Bedroom - 4.79 x 4.28 (15'8" x 14'0") - Bay window to rear, radiator, power points
Bedroom - 4.56 x 3.95 (14'11" x 12'11") - Window to rear, radiator, power points
Bedroom - 2.83 x 3.09 (9'3" x 10'1") - Window to rear, radiator, power points
Bedroom - 4.42 x 3.45 (14'6" x 11'3") - Window to front, radiator, power points
Bedroom - 1.96 x 2.79 (6'5" x 9'1") - Window to front, radiator, power points
Bedroom - 2.89 x 2.58 (9'5" x 8'5") - Window to front, radiator, power points
Bathroom - Comprising bath, shower, w.c, wash hand basin
Externally - The gardens are SOUTH FACING and include SEVERAL LARGE LAWNED AREAS, mature trees, flowerbeds and hedging. With a large garage and ample off-road parking.
Brochures
Gayton Road, Gayton, WirralBrochure- COUNCIL TAXA payment made to your local authority in order to pay for local services like schools, libraries, and refuse collection. The amount you pay depends on the value of the property.Read more about council Tax in our glossary page.
- Band: G
- PARKINGDetails of how and where vehicles can be parked, and any associated costs.Read more about parking in our glossary page.
- Yes
- GARDENA property has access to an outdoor space, which could be private or shared.
- Yes
- ACCESSIBILITYHow a property has been adapted to meet the needs of vulnerable or disabled individuals.Read more about accessibility in our glossary page.
- Ask agent
Energy performance certificate - ask agent
Gayton Road, Gayton, Wirral
Add an important place to see how long it'd take to get there from our property listings.
__mins driving to your place
Get an instant, personalised result:
- Show sellers you’re serious
- Secure viewings faster with agents
- No impact on your credit score
Your mortgage
Notes
Staying secure when looking for property
Ensure you're up to date with our latest advice on how to avoid fraud or scams when looking for property online.
Visit our security centre to find out moreDisclaimer - Property reference 34192992. The information displayed about this property comprises a property advertisement. Rightmove.co.uk makes no warranty as to the accuracy or completeness of the advertisement or any linked or associated information, and Rightmove has no control over the content. This property advertisement does not constitute property particulars. The information is provided and maintained by Hewitt Adams Ltd, Heswall. Please contact the selling agent or developer directly to obtain any information which may be available under the terms of The Energy Performance of Buildings (Certificates and Inspections) (England and Wales) Regulations 2007 or the Home Report if in relation to a residential property in Scotland.
*This is the average speed from the provider with the fastest broadband package available at this postcode. The average speed displayed is based on the download speeds of at least 50% of customers at peak time (8pm to 10pm). Fibre/cable services at the postcode are subject to availability and may differ between properties within a postcode. Speeds can be affected by a range of technical and environmental factors. The speed at the property may be lower than that listed above. You can check the estimated speed and confirm availability to a property prior to purchasing on the broadband provider's website. Providers may increase charges. The information is provided and maintained by Decision Technologies Limited. **This is indicative only and based on a 2-person household with multiple devices and simultaneous usage. Broadband performance is affected by multiple factors including number of occupants and devices, simultaneous usage, router range etc. For more information speak to your broadband provider.
Map data ©OpenStreetMap contributors.






